Buðlabryggja 29
01-0204 · 110 Reykjavík



30 dagar á sölu
73.200.000 kr
843.318 kr/m²
BÓKIÐ EINKASKOÐUN Í SÍMA 899-3335 EÐA LARA@FASTLIND.IS, ALLAR ÍBÚÐIR.
LIND fasteignasala og Lára Þyri, löggiltur fasteignasali, kynna nýjar og glæsilegar íbúðir í þriggja hæða húsi við Buðlabryggju 29 og 31 í Bryggjuhverfinu í Reykjavík. ALLAR ÍBÚÐIRNAR FALLA UNDIR HLUTDEILDARLÁN HMS. Vandaðar, sérsmíðaðar innréttingar frá Bræðrunum Ormsson, tæki frá AEG. Myndavéladyrasími í öllum íbúðum. Íbúðirnar afhendast fullbúnar án gólfefna en flísar verða á votrýmum. Húsið er steinsteypt, einangrað að utan og klætt með álklæðningu. Allir gluggar eru timbur-álgluggar frá Húsasmiðjunni. Glæsilegar íbúðir í nýjum húsum í Bryggjuhverfinu þaðan sem stutt er í alla helstu þjónustu. Fallegar gönguleiðir allt í kring. Afhending er áætluð í júlí 2026.
Forgang að kaupum á íbúðum á lóðinni hafa kaupendur á aldrinum 18-40 ára, sjá neðar.
Allir kaupendur og seljendur hjá LIND fasteignasölu fá Vildarkort Lindar sem veitir 30% afslátt hjá fjölmörgum fyrirtækjum.
NÁNARI UPPLÝSINGAR UM ALLAR ÍBÚÐIRNAR HJÁ:
Láru Þyri, löggiltum fasteignasala í síma 899-3335 eða lara@fastlind.is
SJÁ UPPLÝSINGAVEF VERKEFNISINS HÉR
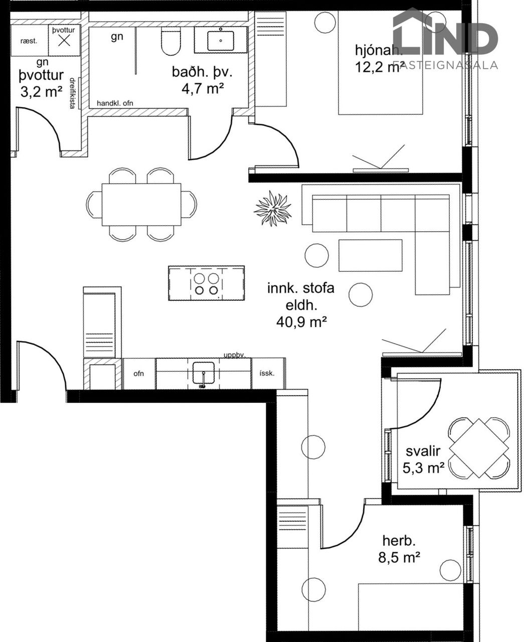
Íbúð 204, Buðlabryggja 29:
Þriggja herbergja íbúð á 2. hæð með svalir í austur.
Stærð: 86,8 fm, þar af geymsla 5,3 fm.
Stæði í bílageymslu merkt B-38 fylgir eigninni.
Forstofa: Fataskápur.
Eldhús: Vönduð innrétting frá Arens með eldunareyju, ljúflokubúnaður á skúffum og skápum.
Stofa: Eldhús og stofa eru í opnu rými. Útgengi úr stofu á svalir.
Tvö svefnherbergi, bæði með fataskápum.
Baðherbergi: Flísar á gólfi og hluta veggja, upphengt salerni, vönduð innrétting með ljúflokubúnaði.
Þvottahús: Innan íbúðar, flísar á gólfi.
Sérgeymsla (0023) í sameign ásamt sameiginlegri hjóla- og vagnageymslu.
ATH: Tölvuteiknaðar 2D myndir af íbúðum sýna myndir úr íbúðum 303 og 404.
ATH: Kaupendur á aldrinum 18-40 ára hafa forgang að kaupum á íbúðum á lóðinni. Við endursölu fylgir kaupverð meðalhækkun söluverðs fjölbýla í hverfinu, sbr. stefnu Reykjavíkurborgar um hagkvæmt húsnæði fyrir ungt fólk. Þetta á einnig við um endursölu íbúðanna. Sjá nánari upplýsingar um kvöð í lóðarleigusamningi.
Gjúkabryggja 10-12, Buðlabryggja 25-27 og 29-31 og Endilsbryggja 24 eru fjögur þriggja til fjögurra hæða hús sem ramma inn skjólgóðan garð. Húsin standa ofan á steyptum, sameiginlegum kjallara með geymslum og bílastæðum. Samtals eru 103 íbúðir í húsunum.
Húsin eru steinsteypt, eingangruð að utan með steinull og klædd með álklæðningu. Gluggar eru eftirá ísettir áltré gluggakerfi frá Húsasmiðjunni. Stigahús eru teppalögð en aðalanddyri flísalögð. Innréttingar og skápar eru frá Arens/Bræðrunum Ormsson og eru með ljúflokunarbúnaði. Eldhústæki eru frá AEG/Bræðrunum Ormsson.
Byggingaraðili er Dverghamrar ehf., traustur verktaki síðan 1986. Fyrirtækið hefur lagt áherslu á byggingu íbúðar- og iðnaðarhúsnæðis og hefur byggt upp yfir 40 ára reynslu á því sviði.
Byggingastjórar fyrirtækisins starfa eftir vottuðu gæðastjórnunarkerfi þar sem lögð er rík áhersla á fagleg vinnubrögð. Framkvæmdar eru reglulegar úttektir á verkþáttum framkvæmdarinnar þar sem tryggt er að unnið sé í samræmi við verklýsingar og að skilað sé traustri og góðri vöru á réttum tíma.
Arkitekt hússins er Guðmundur Gunnlaugsson hjá Archus Arkitektum. Raflagnahönnun er unnin af Agnari Sveinssyni. Lagnahönnun og burðarþolshönnun er unnin af verkfræðistofunni New Nordic Engineering.
Allar nánari upplýsingar veitir:
Lára Þyri Eggertsdóttir, löggiltur fasteignasali/B.A. í lögfræði í síma 899-3335 eða lara@fastlind.is
Gjöld sem kaupandi þarf að standa straum af vegna kaupanna:
1. Stimpilgjald af kaupsamningi - 0,8% af heildarfasteignamati, lögaðili greiðir 1,6%
2. Þinglýsingargjald af kaupsamningi, veðskuldabréfi, mögulegu veðleyfi o.fl. - kr. 3.800 af hverju skjali.
3. Lántökugjald lánastofnunar. Nánari upplýsingar á t.d. heimasíðu lánastofnana.
4. Umsýslugjald til fasteignasölu 74.900.- með vsk.
5. Kaupandi greiðir skipulagsgjald, 0,3% af brunabótamati, þegar það verður lagt á.

Dýpri greining á Húsasjá
- Verðmat fasteignar
- Sölusaga og verðþróun
- Samanburður sambærilegra eigna








