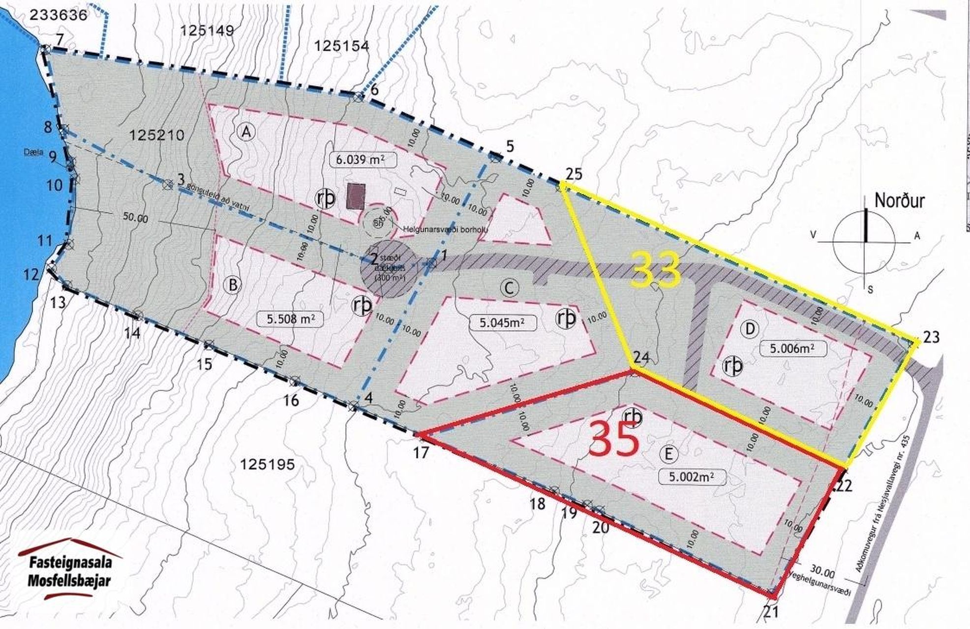
Krókavegur 35
Lóð · 271 Mosfellsbæ



154 dagar á sölu
24.900.000 kr
4.978 kr/m²
Fasteignasala Mosfellsbæjar kynnir: 5.002,4 m2 eignarlóð í sölu á Miðdalsheiði í sannkallaðri paradís. Lóðin er skógi vaxin og er staðsett austan megin við Krókatjörn. Hægt er að byggja allt að 130 m2 í heildar byggingarmagn. Getur verið eitt hús 130 m2 eða hús og gestahús eða geymsla, samtals 130 m2. Skógrækt hófst á lóðunum um 1992, en skógurinn er blanda af greni, ösp, birki og fleiri trjátegundum. Mikið fuglalíf er á svæðinu og er lítil umferð almennings þar um svæðið.
Heilsársbúseta er algeng á svæðinu og mikill kostur hve stutt er í Reykjavík, eða um 10-15 mínútna keyrsla. Aðeins um 9 km eru frá Olís í Norðlingaholti.
Landið er náttúrulegt og hrátt og hefur lítið verið gert við það á seinustu árum.
**Ath. einnig er lóðin við hliðina á til sölu - Krókavegur 33**
Verð kr. 24.900.000 - Allar nánari upplýsingar veitir Svanþór Einarsson, löggiltur fasteignasali - svanthor@fastmos.is eða 698-8555
Um skoðunar- og aðgæsluskyldu:
Í lögum um fasteignakaup nr. 40/2002 er kveðið á um ríka skoðunarskyldu kaupenda á fasteignum. Fasteignasala Mosfellsbæjar skorar því á væntanlega kaupendur að kynna sér vel ástand fasteigna fyrir kauptilboðsgerð og leita til þar til bærra sérfræðinga um nánari skoðun ef með þarf.
Forsendur söluyfirlits:
Söluyfirlit er samið af fasteignasala í samræmi við ákvæði laga nr. 70/2015. Þær upplýsingar sem fram koma í söluyfirliti þessu eru sóttar í opinberar skrár, til seljanda sjálfs og eftir atvikum til húsfélags. Seljandi veitir upplýsingar um eign í samræmi við upplýsingaskyldu laga um fasteignakaup nr. 40/2002. Fasteignasali sannreynir að þær upplýsingar séu réttar með sjónskoðun á eigninni.
Fasteignasali getur ekki fullyrt um ástand og eiginleika þeirra hluta fasteigna sem ekki eru aðgengilegir og sjást ekki berum augum, t.d. lagnir, dren, skólp og þak.
Gjöld sem kaupandi þarf að greiða vegna kaupa:
1. Stimpilgjald af kaupsamningi sem er hlutfall af fasteignamati. Stimpilgjald er 0,8% fyrir einstaklinga (0,4% við fyrstu kaup) og 1,6% fyrir lögaðila.
2. Þinglýsingargjald af kaupsamningi, veðskuldabréfum, veðleyfum o.fl. Þinglýsingargjald er kr. 2.700,- fyrir hvert skjal.
3. Lántökugjald lánastofnunar - er skv. gjaldskrá viðkomandi lánastofnunar.
4. Umsýslugjald til fasteignasölu skv. kauptilboði.
5. Þegar um nýbyggingu er að ræða greiðir kaupandi skipulagsgjald, 0,3% af endanlegu brunabótamáti, þegar það er lagt á af viðkomandi sveitarfélagi.

Fáðu nýja innsýn á Húsasjá
- Verðmat fasteignar
- Sölusaga og verðþróun
- Samanburður sambærilegra eigna

















