Móavellir 6
01-0402 · 260 Reykjanesbæ



59 dagar á sölu
73.500.000 kr
764.033 kr/m²
PRODOMO fasteignasala kynnir glæsilegar tveggja og þriggja herbergja íbúðir í nýbyggingu að Móavöllum 6 í Reykjanesbæ.
Frábær staðsetning á grónum stað miðsvæðis í Reykjanesbæ þar sem stutt er verslun og flesta þjónustu. Góðar flísalagðar svalir fylgja íbúðum á efri hæðum hússins þar sem mögulegt er að setja svalalokun. Við íbúðir á jarðhæð er sérafnotareitur og verönd. Lyfta er í húsinu.
Íbúðirnar eru frá 79 upp í 108 fermetrar. Fullbúnar með gæða innréttingum og fataskápum frá HTH. Tæki í eldhúsi eru frá AEG, span helluborð með innbyggðri viftu, innbyggð uppþvottavél og ísskápur/frystir. Parket frá Parka. Baðinnrétting og fataskápar eru í ljósum lit. Eldhúsinnrétting er í hlýlegum viðarlit í bland við ljósa litinn sem er í öðrum innréttingum. Inni hurðar eru hvítar. Gólfhiti er í eignunum og ofnakerfi í sameign. Dyrasímakerfi með myndavél. Hjóla/vagnageymsla er við inngang hússins. Gluggar eru ál/tré og eru frá Byko. Húsið er klætt með álklæðningu. Stétt og bílastæði fyrir hreyfihamlaða eru hellulögð, þar er snjóbræðsla. Lagnaleið fyrir hleðslustöðvar er við bílastæði. Við eignina eru djúpgámar fyrir sorp.
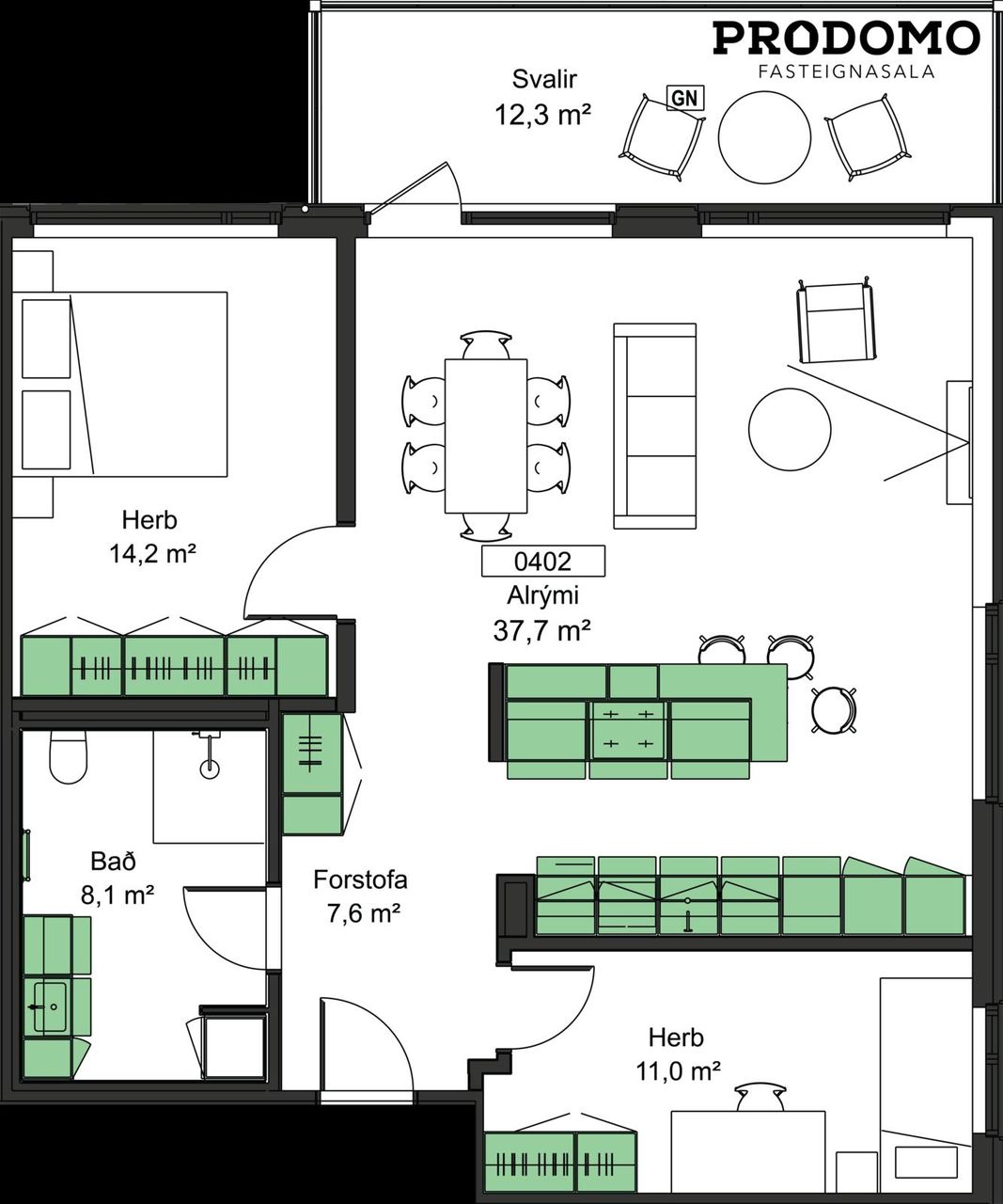
Íbúð 402:
Þriggja herbergja enda íbúð á fjórðu hæð. 96,2 fm og þar af er geymsla 5,2 fm. Alrými eignarinnar er opið og bjart.
Svalir eru 12,3 fm.
Heimasíðu verkefnisins má sjá með því að smella HÉR
Sérstök handbók fylgir húsinu með öllum helstu upplýsingum.
Allar nánari upplýsingar veita:
Lilja Valþórsdóttir
Löggiltur fasteignasali
420-4030 / 860-6886
lilja@prodomo.is
Hákon Ó. Hákonarson
Löggiltur fasteignasali
899-1298 / 420-4030
hakon@prodomo.is
Um skoðunar- og aðgæsluskyldu:
Í lögum um fasteignakaup nr. 40/2002 er kveðið á um ríka skoðunarskyldu kaupenda á fasteignum. PRODOMO fasteignasala bendir væntanlegum kaupendum á að kynna sér vel ástand fasteigna við skoðun og fyrir tilboðsgerð og ef þurfa þykir að leita til sérfræðinga um nánari ástandsskoðun.
Forsendur söluyfirlits:
Söluyfirlitið er samið af fasteignasala í samræmi við ákvæði laga nr. 70/2015. Þær upplýsingar sem fram koma í söluyfirliti þessu eru sóttar í opinberar skrár, til seljanda sjálfs og eftir atvikum til húsfélags. Seljandi veitir upplýsingar um eign í samræmi við upplýsingaskyldu laga um fasteignakaup nr. 40/2002. Fasteignasali sannreynir að þær upplýsingar séu réttar með sjónskoðun á eigninni. Fasteignasali getur ekki fullyrt um ástand og eiginleika þeirra hluta fasteigna sem ekki eru aðgengilegir og sjást ekki berum augum, t.d. lagnir, dren skólp og þak.
Gjöld sem kaupandi þarf að standa straum af vegna kaupanna:
* Stimpilgjald af kaupsamningi sem er hlutfall af fasteignamati. Stimpilgjald er 0,8% fyrir einstaklinga.
* Þinglýsingargjald af kaupsamningi, veðskuldabréfum, veðleyfum o.fl. Þinglýsingargjald er kr. 2.700,- fyrir hvert skjal.
* Lántökugjald lánastofnunar. Um lántökugjald vísast í gjaldskrá viðkomandi lánveitanda.
* Umsýsluþóknun fasteignasölu skv. gjaldskrá.
* Kaupandi greiðir skipulagsgjald af hinum selda eignarhluta þegar það verður lagt á, nú 0,3% af brunabótamati.

Dýpri greining á Húsasjá
- Verðmat fasteignar
- Sölusaga og verðþróun
- Samanburður sambærilegra eigna






