Vallargata 6A
01-0102 · 710 Seyðisfirði



170 dagar á sölu
66.040.000 kr
635.611 kr/m²
INNI fasteignasala s. 580 7905 - inni@inni.is
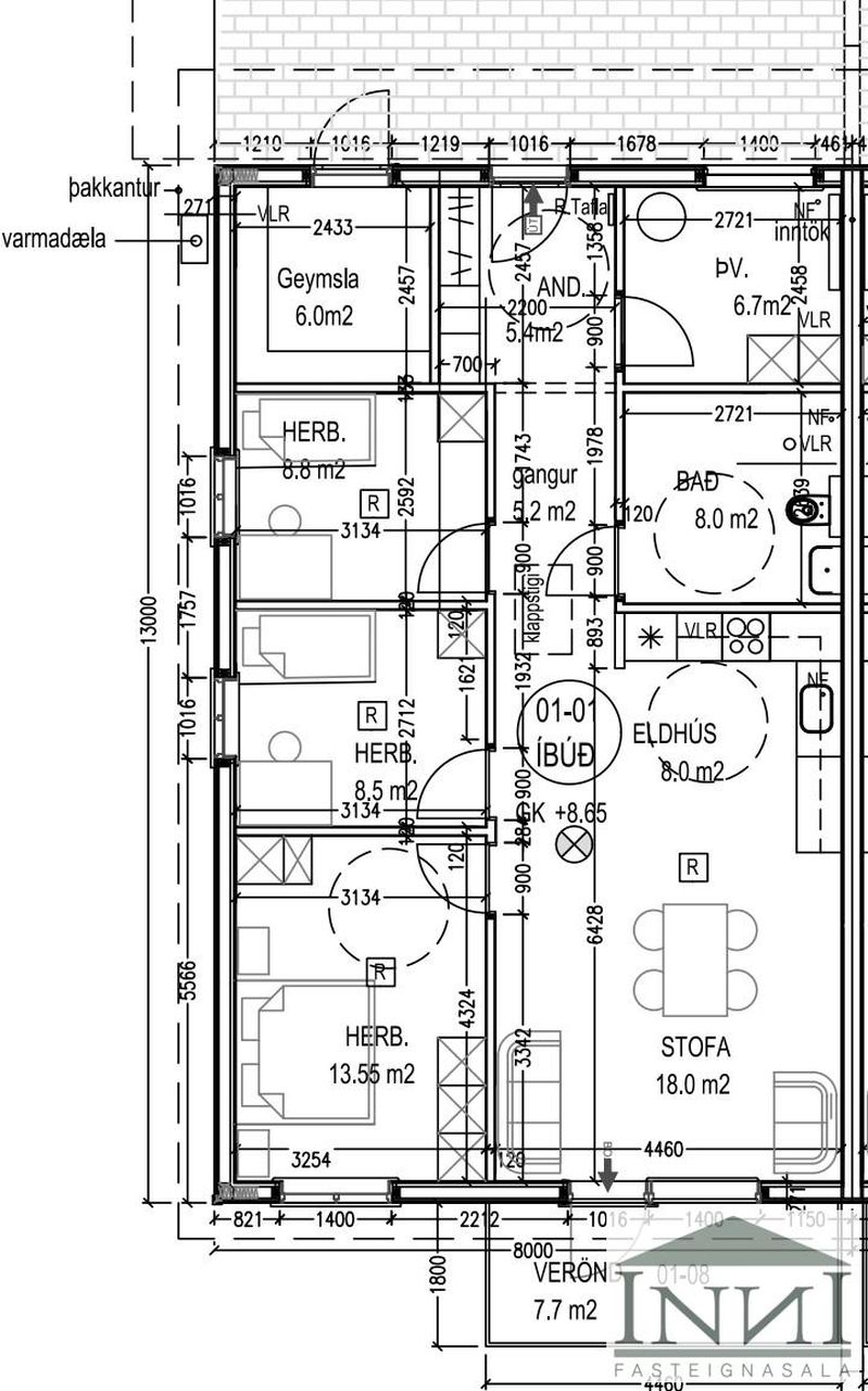
Vel staðsett fjögurra herbergja parhúsaíbúð í hjarta Seyðisfjarðar. Húsið er í byggingu og verður afhent fullbúið að utan sem innan með timburverönd í garði.
Fjögurra herbergja og fullbúnar íbúðir með stofu og eldhúsi í opnu og björtu rými með útgengt á timburverönd.
Húsinu verður skilað fullbúinni með gólfefnum. Flísar verða á forstofu, baðherbergi og þvottahúsi og allt annað parketlagt. Veggir eru málaðir. Reykskynjarar, slökkvitæki og læstur lyfjaskápur fylgja. Forstofan er með fataskáp og flísum á gólfi. Eldhús með KVIK innréttingu. Spanhelluborð og ofn í vinnuhæð og stálvaskur með einnar handar blöndunartækjum. Innbyggð uppþvottavél í innréttingu. Kæli og frystiskápur. Háfur yfir eldavél og ljós (fylgja ekki). Svefnherbergin eru þrjú og öll með fataskápum. Björgunarop eru í öllum svefnherbergjum. Baðherbergi með flísum á gólfi, sturta, vask innrétting og speglaskápur og vegghengt salerni. Veggir baðherbergis eru flísalagðir. Þvottaherbergi er með flísum á gólfi og klætt rakavörðum gipsplötum og innrétting fyrir 2 vélar og vask. Gólfhiti er í öllum rýmum. Geymsla sem er með flísum á gólfi og gips klætt að innan. Veggir eru málaðir. Aðgengi að geymslunni er að utan og hentar því vel fyrir hjóla- og vagnageymslu. Útgengt er frá stofu út á timburverönd.
Gangstétt framan við húsið er steypt, aðrir hlutar lóðar eru þökulagðir. Plan við inngang verður frágengið. Tvö bílastæði og annað fyrir hreyfihamlaða og möguleika á tengingu við rafmagn fyrir bíla.
● Gott aðgengi fyrir alla - hentar jafnt fjölskyldum, öldruðum og hreyfihömluðum.
● Orkusparandi - nýbygging með gólfhitakerfi sem stýrir hverju herbergi, ofnlaus hönnun.
● Staðsetning - miðsvæðis á gamla fótboltavellinum og með aðgangi að bænum á jafnsléttu.
● Sólpallur og útsýni - beint útgengt á pall og garð með fjallasýn á rólegum stað.
● Rúmgóð bílastæði - tvö bílastæði fylgja hverri íbúð, þar af eitt stórt fyrir hreyfihamlaða.
● Tilbúið fyrir hleðslustöð - 3 fasa lagnir tilbúnar á bílastæði fyrir hleðslustöð rafbíla.
● Geymsla með aðgengi að utan - einfalt að komast í útibúnað án þess að fara inn í húsið.
● Nýbygging – eina nýja íbúðarhúsnæðið í boði á Seyðisfirði.
SKILALÝSING:
UTANHÚSSFRÁGANGUR:
• Húsið er timburhús, með forsteypta sökkla og staðsteypta botnplötu.
• Burðargrind: 45×145 mm U24 timbur, C/C 600 mm, með styrkingum við glugga- og dyragöt.
• Klæðning: Láréttur timburpanell, ljósgrænn að lit.
• Þak: Hefðbundið risþak með 45×200 mm U24-sperrum, 12 mm OSB-plötum, þakdúk og bárujárnsklæðningu. Þakið er einangrað með 200 mm steinull.
• Fellistigi í gangi leiðir upp í óupphitað risrými sem hentar sem geymsla.
• Gluggar og útihurðir úr timbri, hvítmálaðar, með tvöföldu einangrunargleri (K-gleri).
• Útihurð á palli opnast út, aðrar inn.
• Rafmagnstafla er útbúin með tengimöguleika fyrir hleðslustöð rafbíla (ekki fullbúin lögn).
Lóð:
• Heildarstærð: 760 m² leigulóð, sameiginleg fyrir húsið.
• Yfirborð: Frágengið með torfi. Leiksvæði barna aftan við húsið.
• Aftan við íbúð: Timburverönd til suðurs með skjólveggjum milli íbúða.
• Aðalinngangur og bílastæði: Hellulögn.
• Sorptunnuskýli með fjögurra tunna flokkunarkerfi (samræmist reglugerð Múlaþings).
INNANHÚSSFRÁGANGUR:
• Gólfefni:
o Parket: Gangur, alrými og svefnherbergi.
o Flísar: Anddyri, baðherbergi, þvottahús og geymsla.
o Veggir á baðherbergi eru flísalagðir.
• Veggir og loft:
o Innveggir: 95 mm, klæddir gipsi og steinullareinangraðir.
o Veggir: Sparslaðir, grunnaðir og málaðir í tveimur umferðum (hvítur litur, gljástig 7).
o Loft: Spörtluð, grunuð og máluð tveimur umferðum (hvít, gljástig 2–5).
o Votrými: Rakaþolnar plötur, votrýmismálning.
• Innréttingar og tæki:
o Eldhús, baðherbergi, þvottahús og fataskápar frá Brúnás.
o Eldhústæki: Spanhelluborð, ofn í vinnuhæð, undirskápavifta.
o Undirbúningur fyrir innbyggða uppþvottavél (framhlið fylgir).
o Vaskur úr stáli með einnar handar blöndunartæki.
o Fataskápar eru í forstofu og öllum herbergjum.
o Þvottahús: Innrétting með plássi fyrir tvær vélar og vask í borðplötu.
o Gert er ráð fyrir barkalausum þurrkara.
• Hurðir:
o Innihurðir: Hvítar, yfirfelldar og með hurðarhúnum úr málmi.
o Allar hurðir án þröskulda, fallþröskuldar í votrýmum.
• Hreinlætistæki:
o Baðherbergi: Upphengd wc-skál með innbyggðu kerfi og hæglokandi setu.
o Handlaug í innréttingu með einnar handar blöndunartæki.
o Sturtutæki: Utanáliggjandi blöndunartæki.
• Lagnir:
o Gólfhiti með stýringu fyrir hvert herbergi.
o Tengt HEF veitukerfi fyrir neysluvatn og gólfhita.
o Inntök í þvottahúsi við útvegg.
o Rafmagn: Rofar, tenglar og tafla í samræmi við teikningar. Tafla í þvottahúsi.
o Undirbúningur fyrir ljósleiðara (ídráttarrör er komið). Kaupandi sér sjálfur um tengingu.
o Loftnet- og tölvutengill í alrými.
o Innfelld lýsing í alrými, loftadósir víðar.
• Loftræsting og brunavarnir:
o Náttúruleg loftræsting með opnanlegum gluggum.
o Vélræn loftræsting er í eldhúsi, þvottahúsi, geymslu og baðherbergi.
o Reykskynjarar í öllum rýmum stærri en 6 m².
o Slökkvitæki eru við allar útidyr.
o Eldvarnarteppi og læstur lyfjaskápur fylgja.
ALMENNT:
• Kynningarefni (teikningar, myndir o.fl.) er aðeins leiðbeinandi.
• Laus búnaður sem sýndur er á myndum en ekki tilgreindur í þessari lýsingu fylgir ekki.
• Seljandi áskilur sér rétt til breytinga á útliti, efni og aðaluppdráttum meðan á framkvæmdum stendur.
• Breytingar á íbúð skulu gerðar af kaupanda eftir afhendingu og í samræmi við byggingarreglugerð

Dýpri greining á Húsasjá
- Verðmat fasteignar
- Sölusaga og verðþróun
- Samanburður sambærilegra eigna

