Grímsskjól 1
Lóð · 803 Selfossi



264 dagar á sölu
20.000.000 kr
****Lóð með lögbýlisrétti - mikill byggingaréttur****
Sælulíf í sveitinni í aðeins 5 mín akstursfjarlægð frá Selfossi.
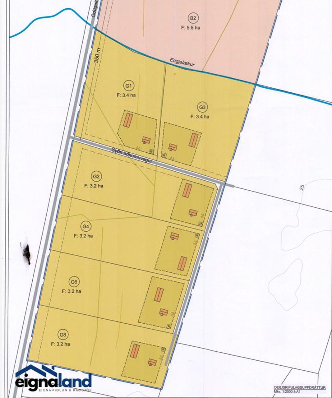
Um er að ræða 6 eignalóðir, í Flóahreppi. Þrjár lóðanna eru 3,2ha að stærð en tvær eru 3,4að stærð.
Rafmagn, kalt vatn og ljósleiðari afhendast í lóðamörkum.
Samkvæmt samþykktu deiliskipulagi má byggja neðangreint:
Innan hverrar lóðar má byggja lögbýli. Heimilt er að byggja tvö íbúðarhús ásamt bílskúr allt að 400m2 á einni eða tveimur hæðum. Auk þess má byggja minni hús, (t.d. Gestahús, vinnustofu eða geymslu) í tengslum við íbúðarhúsin.
Einnig er heimilt að byggja fjölnotahús til atvinnureksturs allt að 700m2.
Lóðarhöfum er skylt að halda lóðum sínum þrifalegum og forðast geymslu lausamuna til lengri tíma.
Á MANNAMÁLI: Þá er hér gríðarlega áhugavert kauptækifæri fyrir aðila sem vilja búa rétt utan við SELFOSS, á friðsælum og fallegum stað. Búa við alla þá þjónustu sem lögbýli njóta, svo sem sorphirðu, snjómokstur og tæming rotþróa.
Hér getur stórfjölskyldan komið sér upp sælureit, eða framtakssamir einstaklingar byggt og starfrækt atvinnurekstur eða bara átt sælureit í sveitinni.
Heimild fyrir heildarbyggingamagn upp á 1.500fm. (þar af 800 fm íbúðarhús og að auki 700 fm atvinnuhúsnæði/hesthús/gripahús.)
Staðsetning:
c.a 6 km eða 6mín akstur frá bæjarmörkum í austurhluta Selfoss (BÓNUS). Keyrt er inn Langholtsafleggjara og eru lóðirnar c.a. 3 km inn þann veg (malbikaður vegur) og þar á hægri hönd. Fallegt og víðsýnt svæði, yfir flatlendi Flóans, og Ingólfsfjall í vesturátt.
(Sjá í myndum)
Verð lóða:
Grímsskjól 1 – 3,4ha – 20mkr.
Grímsskjól 3 – 3,4ha – 20mkr.
Grímsskjól 2 – 3,2ha – 20mkr.
Grímsskjól 4 – 3,4ha – 20mkr.
Grímsskjól 6 – 3,4ha – 20mkr.
Grímsskjól 8 – 3,4ha – 20mkr.
Fyrir framtakssama einstaklinga – fjárfesta eða verktaka er áhugaverður kostur að kaupa allar lóðirnar í einum pakka og teikna heildstæðar og samhverfar byggingar á lóðirnar og búa til sannkallaðan „Lúxuspakka“ fyrir þá sem kjósa sveitalíf, í bæjarmörkum Selfoss og Flóahrepps.
Allar nánari upplýsingar veitir Sigurður Fannar Guðmundsson lögg.fasteignasali í síma 897-5930 eða siggifannar@eignaland.is
Ertu hugsa um að flytja í Flóahrepp?
SMELLTU ÞÁ HÉR
Um skoðunar- og aðgæsluskyldu:
Í lögum um fasteignakaup nr. 40/2002 er kveðið á um ríka skoðunarskyldu kaupenda á fasteignum. Eignaland fasteignasla bendir væntanlegum kaupendum á að kynna sér vel ástand fasteigna við skoðun og fyrir tilboðsgerð og ef þurfa þykir að leita til sérfræðinga um nánari ástandsskoðun.
Forsendur söluyfirlits:
Söluyfirlit er samið af fasteignasala í samræmi við ákvæði laga nr. 70/2015. Þær upplýsingar sem fram koma í söluyfirliti þessu eru sóttar í opinberar skrár, til seljanda sjálfs og eftir atvikum til húsfélags. Seljandi veitir upplýsingar um eign í samræmi við upplýsingaskyldu laga um fasteignakaup nr. 40/2002. Fasteignasali sannreynir að þær upplýsingar séu réttar með sjónskoðun á eigninni.
Fasteignasali getur ekki fullyrt um ástand og eiginleika þeirra hluta fasteigna sem ekki eru aðgengilegir og sjást ekki berum augum, t.d. lagnir, dren, skólp og þak.
Gjöld sem kaupandi þarf að standa straum af vegna kaupanna:
1.Stimpilgjald af kaupsamningi sem er hlutfall af fasteignamati. Stimpilgjald er 0,8% fyrir einstaklinga (0,4% við fyrstu kaup) og 1,6% fyrir lögaðila.
2. Þinglýsingargjald af kaupsamningi, veðskuldabréfum, veðleyfum o.fl. Þinglýsingargjald er kr. 2.700,- fyrir hvert skjal.
3. Lántökugjald lánastofnunar. Um lántökugjald vísast í gjaldskrá viðkomandi lánveitanda.
4. Umsýslugjald kaupanda samkvæmt gjaldskrá.
5. Þegar um nýbyggingu er að ræða greiðir kaupandi skipulagsgjald, 0,3% af endanlegu brunabótamáti, þegar það er lagt á.

Dýpri greining á Húsasjá
- Verðmat fasteignar
- Sölusaga og verðþróun
- Samanburður við sambærilegar eignir






