Borgartún 53
01-0214 · 105 Reykjavík



117 dagar á sölu
117.900.000 kr
1.000.849 kr/m²
Trausti fasteignasala kynnir Laugaborg vandað og glæsilegt nýtt lyftufjölbýli við Kirkjusand. Íbúðir er fjölbreyttar að skipulagi frá 2ja til 4ra herbergja á 3 – 6 hæðum. Skjólgóður inngarður og sameiginlegur þakgarður bjóða upp á skemmtilegar stundir utandyra og útsýni til fjalla og sjávar. Íbúðirnar bjóða upp á vandaðar innréttingar, gólfhita, svalir eða sérafnotareiti og sjálfstætt loftræstikerfi er í þeim öllum. Svalalokun, samkvæmt íslenskum stöðlum, er á öllum svölum í úthring hússins.
Hlekkur á ítarlegar upplýsingar er hér.
Bílakjallari undir húsinu er stór og rúmgóður og verða rúmlega þúsund stæði og gott aðgengi að rafhleðslustöðvum. Íbúar hússins hafa aðgang að stæði í bílakjallara gegn hóflegu gjaldi.
115 íbúðir í íbúðakjarnanum á 3 til 6 hæðum og afhendast í 4 áföngum. Húsið er vel hannað þegar kemur að birtustigi og hverfist um skjólgóðan inngarð. Frábær staðsetning í nýju hverfi á Kirkjusandi, þar sem líflegur Laugardalurinn er í göngufæri með allt það sem hann hefur upp á að bjóða og örstutt í miðbæ Reykjavíkur.
Afhending á 2. áfanga er júlí/ágúst 2025.
NÁNARI LÝSING:
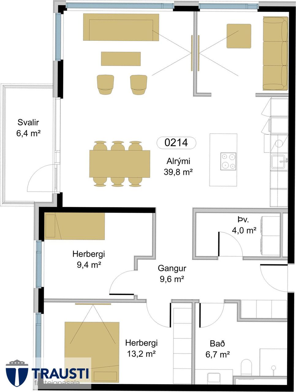
Laugaborg (íbúð 214) er björt horníbúð með stórri stofu og suð-vestur svalir með svalaskjóli.
Forstofa er með með fataskáp sem nær upp í loft.
Stofa/alrými er björt og rúmgóð með útgengi á suður svalir með gustlokun.
Sjónvarpshol sem hægt er að breyta í herbergi.
Eldhús með fallegri sérsmíðaðri innréttingu með quartz plötu á borði og skilast með Span helluborði með innbyggðum gufugleyp og bakaraofn með kjöthitamæli og sjálfhreinsibúnaði
Svefnherbergi eru tvö (möguleiki á að bæta við einu herbergi) og er annað með fataskáp sem nær upp í loft.
Baðherbergi er með vönduðum sérsmíðuðum innréttingum frá Egger, quartz borðplötu og sturtu með Unidrain gólfrennupakka.
Þvottahús er innan íbúðar með flísum á gólfum og upphengdum innréttingum.
Geymsla er 12,6 fm
(Myndir á vef eru dæmi um útlit eignar en endurspegla ekki alltaf nákvæmlega auglýsta eign).
Bókið skoðun eða fáið nánari upplýsingar hjá:
Aðalsteinn Jón Bergdal lgf. í síma 767-0777 eða á netfanginu alli@trausti.is
Auðun Ólafsson lgf. í síma 894-1976 eða á netfanginu audun@trausti.is
Guðbjörg Sveinbjörnsdóttir lgf. í síma 899-5949 eða á netfanginu gudbjorg@trausti.is
Hallgrímur Hólmsteinsson lgf. í síma 896-6020 eða á netfanginu hallgrimur@trausti.is
Kristín María Stefánsdóttir lgf. í síma 837-1177 eða á netfanginu kristin@trausti.is
Kristján Baldursson lgf. í síma 867-3040 eða á netfanginu kristjan@trausti.is
Sólveig Regína Biard lgf. í síma 869-4879 eða á netfanginu solveig@trausti.isForsendur söluyfirlits:
Söluyfirlit er samið af fasteignasala í samræmi við ákvæði laga nr. 70/2015. Þær upplýsingar sem fram koma í söluyfirliti þessu eru sóttar í opinberar skrár, til seljanda sjálfs og eftir atvikum til húsfélags. Seljandi veitir upplýsingar um eign í samræmi við upplýsingaskyldu laga um fasteignakaup nr. 40/2002. Fasteignasali sannreynir að þær upplýsingar séu réttar með sjónskoðun á eigninni. Fasteignasali getur ekki fullyrt um ástand og eiginleika þeirra hluta fasteigna sem ekki eru aðgengilegir og sjást ekki berum augum, t.d. lagnir, dren, skólp og þak.
Skoðunarskylda:
Í lögum um fasteignakaup nr. 40/2002 er kveðið á um ríka skoðunarskyldu kaupenda á fasteignum. Vill Trausti fasteignasala því benda væntanlegum kaupendum á að kynna sér vel ástand fasteigna fyrir kauptilboðsgerð og leita til þar til bærra sérfræðinga um nánari skoðun ef þurfa þykir.
Gjöld sem kaupandi þarf að standa straum af vegna kaupanna:
1. Stimpilgjald af kaupsamningi, fyrstu kaup (0,4%), almenn kaup (0,8%), lögaðilar (1,6%) af heildarfasteignamati.
2. Þinglýsingargjald af kaupsamningi, veðskuldabréfi, mögulegu veðleyfi o.fl. - kr. 3.800 af hverju skjali.
3. Lántökugjald lánastofnunar er skv. verðskrá viðkomandi lánastofnunar. Nánari upplýsingar á t.d. heimasíðu lánastofnana.
4. Umsýslugjald til fasteignasölu skv. kauptilboði.

Dýpri greining á Húsasjá
- Verðmat fasteignar
- Sölusaga og verðþróun
- Samanburður sambærilegra eigna






