Grásteinn 5A
01-0101 · 816 Ölfusi



239 dagar á sölu
85.000.000 kr
500.294 kr/m²
VALBORG fasteignasala kynnir í einkasölu Grástein 5A, Ölfusi.
Nýtt parhús með tveimur svefnherbergjum og þremur baðherbergjum, staðsett rétt utan við Hveragerði.
Eignin er samtals 169,9 m² að stærð samkvæmt skráningu Þjóðskrár Íslands.
Þar af er íbúðin 123,2m² og bílskúrinn 46,7m².
Eignin verður seld á byggingarstigi 2, matstigi 2 (fokheld)
Hægt er að fá eignina lengra komna.
Eigninni verður skilað með fullfrágenginni lóð og steyptu bílaplani.
Steypt upphituð stétt er í kringum alla eignina.
Eignin er á 1.500 m2 eignarlóð.
Hægt er að skoða fullfrágengna íbúð sem er spegilmynd þessara eignar.
Auglýst verð miðast við byggingastig 2, en hægt er að fá eignina lengra komna:
Tilbúin til spörslunar að innan, fullfrágengin að utan og með fullfrágenginni lóð er kr. 95.000.000,-
Sjá staðsetningu hér.
Nánari upplýsingar veita:
Elínborg María Ólafsdóttir, löggiltur fasteignasali, í síma 861-6866, tölvupóstur elinborg@valborgfs.is.
Gunnar Biering Agnarsson, löggiltur fasteignasali, í síma 823-3300, tölvupóstur gunnar@valborgfs.is.
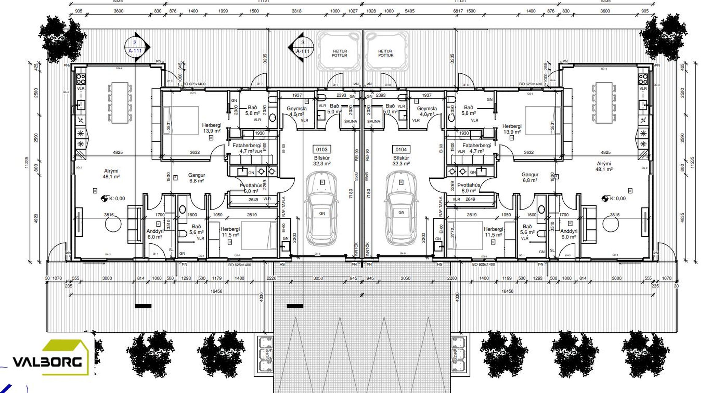
Skipulag eignar samkvæmt teikningu:
Anddyri, stofa, eldhús, þrjú baðherbergi, tvö svefnherbergi, fataherbergi, þvottahús, bílskúr og geymsla.
Útgengt á steypta verönd er frá stofu, eldhúsi og baðherbergi í hjónasvítunni.
Innangengt er í bílskúr og þar er einnig gönguhurð út.
Um er að ræða vandað timburhús í Ölfusi, þó örstutt frá Hveragerði.
Allur frágangur er snyrtilegur en húsið er klætt með Canexel klæðningu og gluggar eru einnig úr plasti og því viðhaldsþörf í lágmarki.
Þakkantar klæddir með sléttu svörtu áli, með svörtum þakrennum og þak klætt með aluzink.
Steypt er í kringum eignina og bílaplan. Þar eru ísteyptar hitalagnir.
Nánari upplýsingar veita:
Elínborg María Ólafsdóttir, löggiltur fasteignasali, í síma 861-6866, tölvupóstur elinborg@valborgfs.is.
Gunnar Biering Agnarsson, löggiltur fasteignasali, í síma 823-3300, tölvupóstur gunnar@valborgfs.is.
Forsendur söluyfirlits:
Söluyfirlit er samið af fasteignasala í samræmi við ákvæði laga nr. 70/2015. Þær upplýsingar sem fram koma í söluyfirliti þessu eru sóttar í opinberar skrár, til seljanda sjálfs og eftir atvikum til húsfélags. Seljandi veitir upplýsingar um eign í samræmi við upplýsingaskyldu laga um fasteignakaup nr. 40/2002. Fasteignasali sannreynir að þær upplýsingar séu réttar með sjónskoðun á eigninni. Fasteignasali getur ekki fullyrt um ástand og eiginleika þeirra hluta fasteigna sem ekki eru aðgengilegir og sjást ekki berum augum, t.d. lagnir, dren, skólp og þak.
Um skoðunar- og aðgæsluskyldu:
Í lögum um fasteignakaup nr. 40/2002 er kveðið á um ríka skoðunarskyldu kaupenda á fasteignum. Valborg ehf. fasteignasala bendir væntanlegum kaupendum á að kynna sér vel ástand fasteigna við skoðun og fyrir tilboðsgerð og ef þurfa þykir að leita til sérfræðinga um nánari ástandsskoðun.
Gjöld sem kaupandi þarf að standa straum af vegna kaupanna:
1. Stimpilgjald af kaupsamningi sem er hlutfall af fasteignamati. Stimpilgjald er 0,8% fyrir einstaklinga (0,4% við fyrstu kaup) og 1,6% fyrir lögaðila.
2. Þinglýsingargjald af kaupsamningi, veðskuldabréfum, veðleyfum o.fl. Þinglýsingargjald er kr. 3.800,- fyrir hvert skjal.
3. Lántökugjald lánastofnunar. Um lántökugjald vísast í gjaldskrá viðkomandi lánveitanda.
4. Umsýsluþóknun fasteignasölu skv. gjaldskrá.
5. Ef um nýbyggingu er að ræða greiðir kaupandi skipulagsgjald, 0,3% af brunabótamáti, þegar það er lagt á.

Fáðu nýja innsýn á Húsasjá
- Verðmat fasteignar
- Sölusaga og verðþróun
- Samanburður sambærilegra eigna






















