Lyngmói 1
01-0204 · 603 Akureyri



13 dagar á sölu
75.500.000 kr
848.315 kr/m²
Fasteignasalan Byggð 464-9955
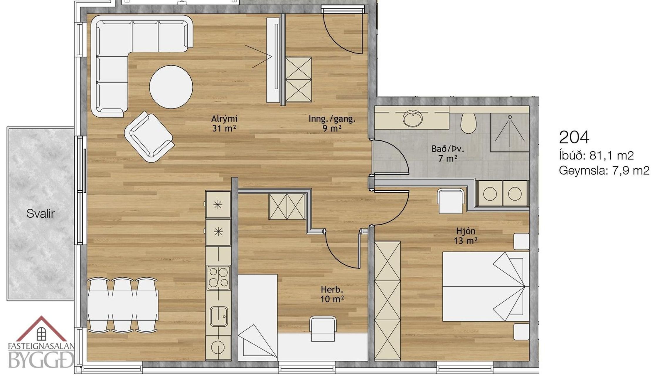
Lyngmói 1-204
Ný glæsileg þriggja herbergja íbúð á 2.hæð í fjölbýlishúsi með lyftu, svalir snúa til suðurs
Eigninni fylgir sérstæði í sameiginlegum bílakjallara auk sérgeymslu í sameign. Samtals er hún 89 fm., þar af er geymsla 7,9 fm. Gólfhiti og loftskiptikerfi er í íbúð, hvítar innihurðir og allar innréttingar koma frá Brúnás. Eignin afhendist fullbúin með gólfefnum.
Íbúðin skiptist í anddyri, eldhús og stofu í opnu rými, baðherbergi með þvottaaðstöðu og svefnherbergi.
Anddyri með parketi á gólfi og fataskáp.
Eldhús og stofa í opnu rými, útgengt út á svalir til suðurs úr stofu. Góð innrétting í eldhúsi, þar eru skúffur og helluborð. Stæði fyrir ísskáp, uppþvottavél og bakaraofn í vinnuhæð.
Baðherbergi með flísum á gólfi og á veggjum í sturtu. Sturta með glerskilrúmi og upphengt wc. Góð innrétting við vask ásamt speglaskápum og stæði fyrir þvottavél og þurrkara í innréttingu í vinnuhæð. Loftræstistokkur/stýrikerfi er í skáp fyrir ofan þvottavél og þurrkara og í honum er því ekkert bak eða hillur.
Svefnherbergin eru tvö með parketi á gólfi og fataskápum.
Laus til afhendingar haust 2026
Kaupandi greiðir skipulagsgjald
Verktaki: Trétak ehf.
Gjöld sem kaupandi þarf að standa straum af vegna kaupanna:
1. Stimpilgjald af kaupsamningi - 0.8% af heildarfasteignamati / 1.6% fyrir lögaðila. (0.4% við fyrstu kaup einstaklinga m.v. að lágmarki 50% eignarhlut).
2. Þinglýsingagjald af kaupsamningi, veðskuldabréfi, veðleyfi o.fl.- kr. 2.700 af hverju skjali.
3. Lántökugjald lánastofnunar -almennt 0,5-1,0% af höfuðstól skuldabréfs (nánari upplýsingar m.a. á heimasíðum lánastofnanna).
4. Umsýsluþóknun til fasteignasölu, sbr.kauptilboð.
Frekari upplýsingar:
bjorn@byggd.is
greta@byggd.is
berglind@byggd.is
olafur@byggd.is
Skipagötu 16 á 2. hæð.
S:464 9955

Dýpri greining á Húsasjá
- Verðmat fasteignar
- Sölusaga og verðþróun
- Samanburður við sambærilegar eignir






