Tryggvagata 10B
01-0410 · 800 Selfossi



204 dagar á sölu
71.900.000 kr
880.049 kr/m²
Eignamiðlun kynnir:
Eignamiðlun og JÁVERK kynna með stolti glæsilegar, vandaðar nýjar íbúðir, frábærlega staðsettar í þriggja til fjögurra hæða staðsteyptum húsum alveg við hinn nýja miðbæ á Selfossi, þar sem finna má fjölda veitingastaða, kaffihúsa og verslana. Stutt í sundlaug Selfoss og umferðaræðar. Vandaðar og bjartar íbúðir með stórum gluggum, steini á borðum, lýsingarhönnun frá Lumex, flísum á böðum og lyftu í öllum húsum þar sem allt efni er svans-vottað. Loftskiptikerfi er í öllum íbúðum. Geymsla og bílastæði í bílakjallara fylgir öllum íbúðum. Byggingaraðili er JÁVERK sem er þekkt er fyrir frábæra hönnun og vönduð vinnubrögð.
Vakin er athygli á því að Eignamiðlun er með til sölumeðferðar allar íbúðirnar í húsunum Tryggvagata 10 og Tryggvagötu 12. Hafið samband við sölumenn fyrir frekari upplýsingar.
***Heimasíða verkefnisins***
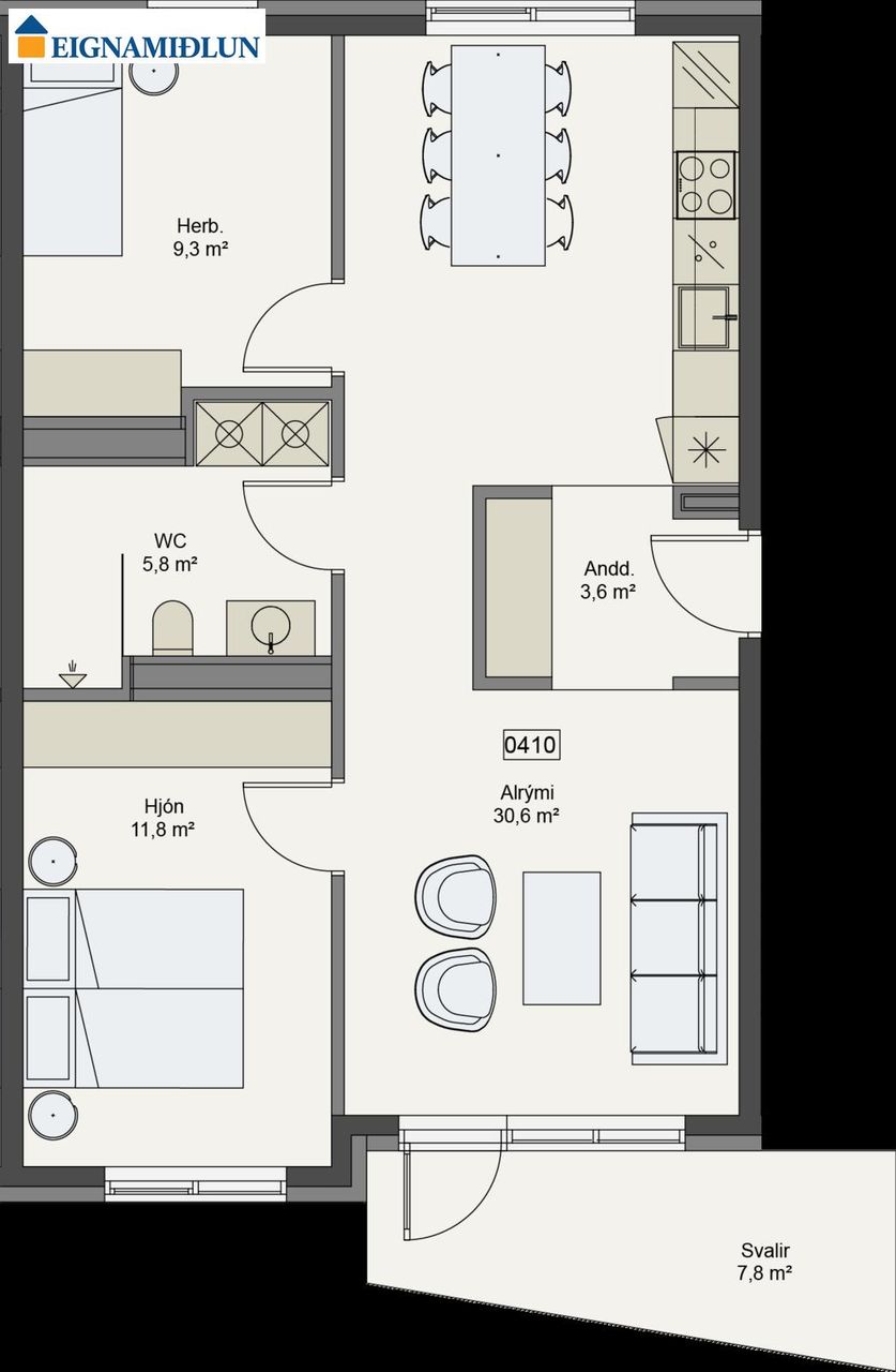
Íbúð 410 í Tryggvagötu 10, merkt 01-0410, er skráð samtals 81,7 fermetrar í fasteignaskráningu, sem skiptist í 71,4 fermetra íbúð og 10,3 fermetra geymslu í kjallara merkt 01-0041. Einnig fylgir bílastæði í bílakjallara merkt 05-B024. Fastanúmer eignarinnar er F253-5188. Íbúðin er skemmtilega hönnuð þriggja herbergja með stórri eldhúsinnréttingu á heilum vegg, en anddyri skiptir alrými í tvennt þar sem eldhús/borðstofa er öðru megin og setustofa hinu megin. Gengið er úr setustofu út á svalir. Rými fyrir þvottavél og þurrkara inná baðherbergi.
Allar upplýsingar veita:
· Rögnvaldur Örn Jónsson, löggiltur fasteignasali í síma 660-3452 eða rognvaldur@eignamidlun.is
· Alfreð Valencia, viðskiptafræðingur, aðstoðarmaður fasteignasala í síma 776-2150 eða alfred@eignamidlun.is
· Ólafur H. Guðgeirsson, MBA, löggiltur fasteignsali í síma 663-2508 eða olafur@eignamidlun.is
· Daði Hafþórsson, löggiltur fasteignasali í síma 824-9096 eða dadi@eignamidlun.is
Tryggvagata 10 til 12 eru fjögur staðsteypt hús, einangruð að utan og klædd með báruáli. Þök eru hallandi risþök, klædd ásoðnum tjörupappa og báruáli. Svalir eru staðsteyptar, svalahandrið eru úr galvaníseruðu stáli og pólýhúðuð. Sérafnotareytir íbúða á jarhæð eru timburklæddir. Allir gluggar og hurðir eru úr timbur-álkerfi frá IdealCombi. Húsin hafa farið í gegnum hljóðhönnun og er allt gler framleitt miðað við kröfur hljóðvistar, byggt á staðsetningu í húsunum.
Íbúðir verða afhentar með ljósum flísum á baðherbergjum en án megin gólfefna. Innveggir eru hlaðnir, sandsparslaðir og málaðir. Veggir á baðherbergjum eru flísalagðir að hluta með ljósum flísum en að öðru leiti sandsparslaðir og málaðir með Svans-vottaðri votrýmismálningu. Loft eru slípuð, sandspörsluð og máluð, en loft íbúða á efstu hæðum eru klædd með hvítum hljóðsogsdúk.
Hurðir íbúða eru hvítar, yfirfelldar með svörtum hurðarhúnum.
Fataskápar eru frá Selós ehf, sérsmíðaðir í fullri lofthæð og felldir að lofti með listum. Lamir og skúffubrautir eru með ljúflokun, ljós í skápum.
Eldhúsinnréttingar eru sömuleiðis sérsmíðaðar af Selós ehf. Á borðum eru Dekton steinborðplötur, ljúflokun á hurðum og skúffum, höldur úr stáli og lýsing undir efri skápum. Kæliskápar og uppþvottavélar eru innbyggðar í innréttingar. Span-helluborð eru innfeld í borðplötur, og í íbúðum með eldunareyju er gufugleypir innbyggður í helluborðið. Þar sem helluborð er ekki í eyju er hefðbundin vifta undir efri skáp. Eldhústæki eru flest frá AEG og blöndunartæki frá Grohe.
Innréttingar á böðum og þvottahúsum eru sömuleiðis sérsmíðaðar hjá Selós ehf. Silestone steinborðplötur á baði með undirlímdri hvítri handlaug, plastlagðar borðplötur undir þvottavél og þurrkara. Vönduð Grohe blöndunartæki og 25 sentimetra sturtuhaus í sturtum.
Í öllum íbúðum er hefðbundið ofnakerfi nema á baðherbergjum þar sem er gólfhiti. Jafnvægisstillt loftræstikerfi með varmaendurvinnslu er í öllum íbúðum.
Frekari upplýsingar um frágang húsanna má finna í skilalýsingu.
Kaupandi greiðir skipulagsgjald, 0,3% af brunabótamati, þegar það verður lagt í eftir fullnaðarfrágan verkefnisins.
Eignamiðlun fasteignasala | Grensásvegur 11 | 108 Reykjavík | Sími 588 9090 |
www.eignamidlun.is***
Ábyrg þjónusta í áratugi. Eignamiðlun var stofnuð 1957 og er elsta starfandi fasteignasala á Íslandi. Reynsla, heiðarleiki og þekking á fasteignamarkaðnum eru grunnur að farsælum viðskiptum.
Eignamiðlun Grensásvegi 11, 108 Reykjavík - Opið frá kl. 9-17 mánudaga til fimmtudaga og 9-16 á föstudögum.
Heimasíða Eignamiðlunar
Eignamiðlun á Facebook

Dýpri greining á Húsasjá
- Verðmat fasteignar
- Sölusaga og verðþróun
- Samanburður sambærilegra eigna













