Tryggvagata 10B
01-0110 · 800 Selfossi



205 dagar á sölu
78.900.000 kr
857.609 kr/m²
LÖGMENN SUÐURLANDI S: 480 2900
Tryggvagata 10 íb 110, Selfossi.
Tryggvagata í hjarta Selfoss.
Lögmenn Suðurlandi fasteignasala og JÁVERK ehf. kynna 78 nýjar og glæsilegar íbúðir, örfáum skrefum frá hrífandi miðbæ Selfoss, þar sem finna má úrval listagallería, verslana og veitingastaða.
Smelltu hér til sjá heimasíðuna hjá JÁVERK til að skoða fleiri íbúðir við Tryggvagötu 10-12
Staðsetning:
Frábær staðsetning með alla helstu þjónustu í göngufæri. Stutt er í skóla, sundlaug og íþróttaaðstöðu.
Um húsið:
Tryggvagata 10 er 51. íbúða fjölbýlishús upp á fjórar hæðir ásamt kjallara. Húsið er staðsteypt, einangrað og klætt að utan með swisspearl steinklæðningu. Á svalagöngum og sumsstaðar við svalir er standandi bambusklæðning. Þök eru hallandi, risþök úr léttu burðarvirki klædd með soðnum tjörupappa. Allir gluggar og hurðir í húsinu eru úr timburálkerfi frá Idealcombi.
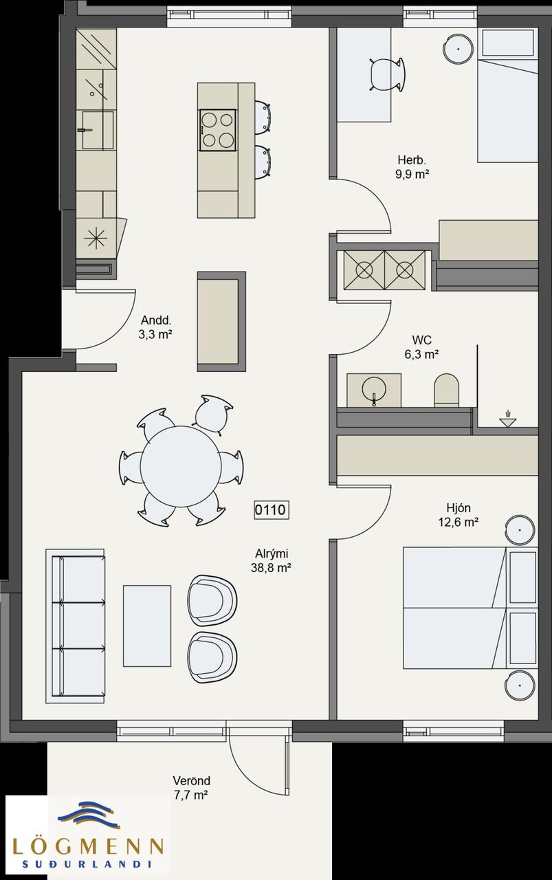
Íbúðin:Stærð: 92 fm.Herbergi: 2Staðsetning: Jarðhæð / 1. hæð (lyfta í húsinu)Fylgir: Einkabílastæði í bílakjallara (B055) og sér geymsla (nr. 0025).Smelltu hér til að sjá teikningu af kjallara.Afhending: Fullbúin án gólfefnaJarðhæð: SérafnotareiturNánari lýsing á íbúðum er í skilalýsingu. Smelltu hér til að sjá skilalýsingu
Innra skipulag:Forstofa: FataskápurHjónaherbergi: FataskápurHerbergi: FataskápurEldhús: Sérsmíðar frá Selós úr slitsterku melaminefni. Dekton steinborðplötur, mjúklokun á skúffum, stálhöldur, innbyggð AEG tæki (kælir/frystir, uppþvottavél), spanhelluborð með gufugleypi, vaskur frá Contura, blöndunartæki frá Grohe.Stofa: Útgengt á verönd.Baðherbergi: Baðinnrétting úr slitsterku melaminefni, Silestone steinborðplötur, Grohe hreinlætistæki, sturta með 250 mm. haus, undirlímd hvít handlaug, innfelld LED lýsing í speglaskápum. Innrétting fyrir þvottavél/þurrkara.Annað:Vönduð ljósahönnun frá LumexMynddyrasími í öllum íbúðumSnjóbræðsla á helstu gönguleiðumLóð frágengin með hellum, grasi, gróðurbeðum og lýsinguSvansvottun: Loftræsi- og varmaskiptakerfi til að draga úr varmatapi og rykmyndun, góð birtuskilyrði og hljóðvist.Framkvæmdaraðili:
JÁVERK ehf., með yfir 30 ára reynslu í mannvirkjagerð, leggur áherslu á gæði, hagkvæmni og lágmarks umhverfisáhrif. Frekari upplýsingar: www.javerk.isNánari upplýsingar veita
Sigurður Sigurðsson, löggiltur fasteignasali í síma 690-6166, sigurdur@log.is
Hallgrímur Óskarsson , löggiltur fasteignasali Skjalavinnsla í síma 845-9900, halli@log.is

Fáðu nýja innsýn á Húsasjá
- Verðmat fasteignar
- Sölusaga og verðþróun
- Samanburður sambærilegra eigna













