Ugluflöt 1
01-0101 · 311 Borgarnesi



32 dagar á sölu
69.900.000 kr
504.693 kr/m²
Nes fasteignasala kynnir í einkasölu fasteignina:
Ugluflöt 1 Hvanneyri, 311 Borgarnes.
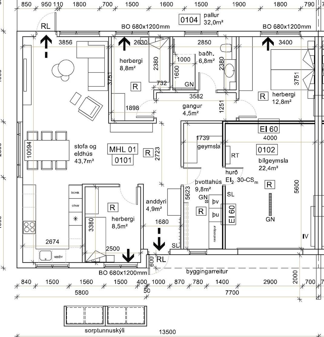
Um er að ræða vandaða nýbyggingu, parhús á einni hæð með innbyggðum bílskúr, timburhús klætt með bárustáli og timbri.
Heildarstærð fasteignarinnar er 138,5 fm Þar af er bílskúr í séreign 25 fm.
Eignin skilast fullkláruð, lóð jöfnuð í rétta hæð og plan malarborið með ruslatunnuskýlum. 30 fm sólpallur fylgir eigninni.
Eignin er í byggingu og er áætluð verklok í maí /júní 2026.
Nánari lýsing:
Úr forstofu er gengið inn í alrými sem er samliggjandi stofa og eldhús. Á svefnherbergisgangi eru 2 svefnherbergi og baðherbergi og gengið er inn í þriðja svefnherbergið frá alrými. Þvottahús og geymsla eru samliggjandi. Þaðan er innangengt er úr þvottahúsi í bílageymslu.
Væntanlegir kaupendur geta haft val um gólfefni og innréttingar. Einnig er möguleiki að kaupa eingina tilbúna til innréttinga.
Forstofa harðparket og fataskápur.
Stofa og borðstofa harðparket á gólfi og loft klætt með hljóðvistardúk. Gengið er úr stofu út á sólpall.
Eldhús harðparket á gólfum. Innrétting og tæki frá Ikea.
Svefnherbergi parket á gólfum, fataskápar í hjónaherbergi.
Baðherbergi flísar í hólf og gólf. Innrétting, vegghengt salerni og walk-in sturta með innbyggðum blöndunartækjum
Þvottahús flísar á gólfi.
Geymsla flísar á gólfi.
Bílskúr með epoxy á gólfi. Rafdrifin innaksturhurð.
Hér er um góða eign að ræða í barnvænu umhverfi.
Hvanneyri er vaxandi þéttbýliskjarni. Þar eru leikskóli og grunnskóli upp að 5. bekk á staðnum. Skólabíll gengur á Kleppjárnsreyki en þar er 6-10 bekkur grunnskólans.
Nánari upplýsingar veitir Þórarinn Halldór Óðinsson Lögg. fasteignasali, í síma 497-0040 eða 865-0350, tölvupóstur thorarinn@fastnes.is.

Fáðu nýja innsýn á Húsasjá
- Verðmat fasteignar
- Sölusaga og verðþróun
- Samanburður sambærilegra eigna


