Vesturbakki 13C
01-0110 · 815 Þorlákshöfn



169 dagar á sölu
24.900.000 kr
345.833 kr/m²
Bjarni Blöndal löggiltur fasteignasali (s:662-6163 netfang: bjarni@remax.is) kynnir geymsluhúsnæði að Vesturbakka 13 á besta stað við höfnina í Þorlákshöfn. Mikil lofthæð - einfalt að útbúa milliloft - einfalt að opna á milli samliggjandi bila - 4,35 metra iðnaðarhurð frá Héðni með rafmótoropnun.
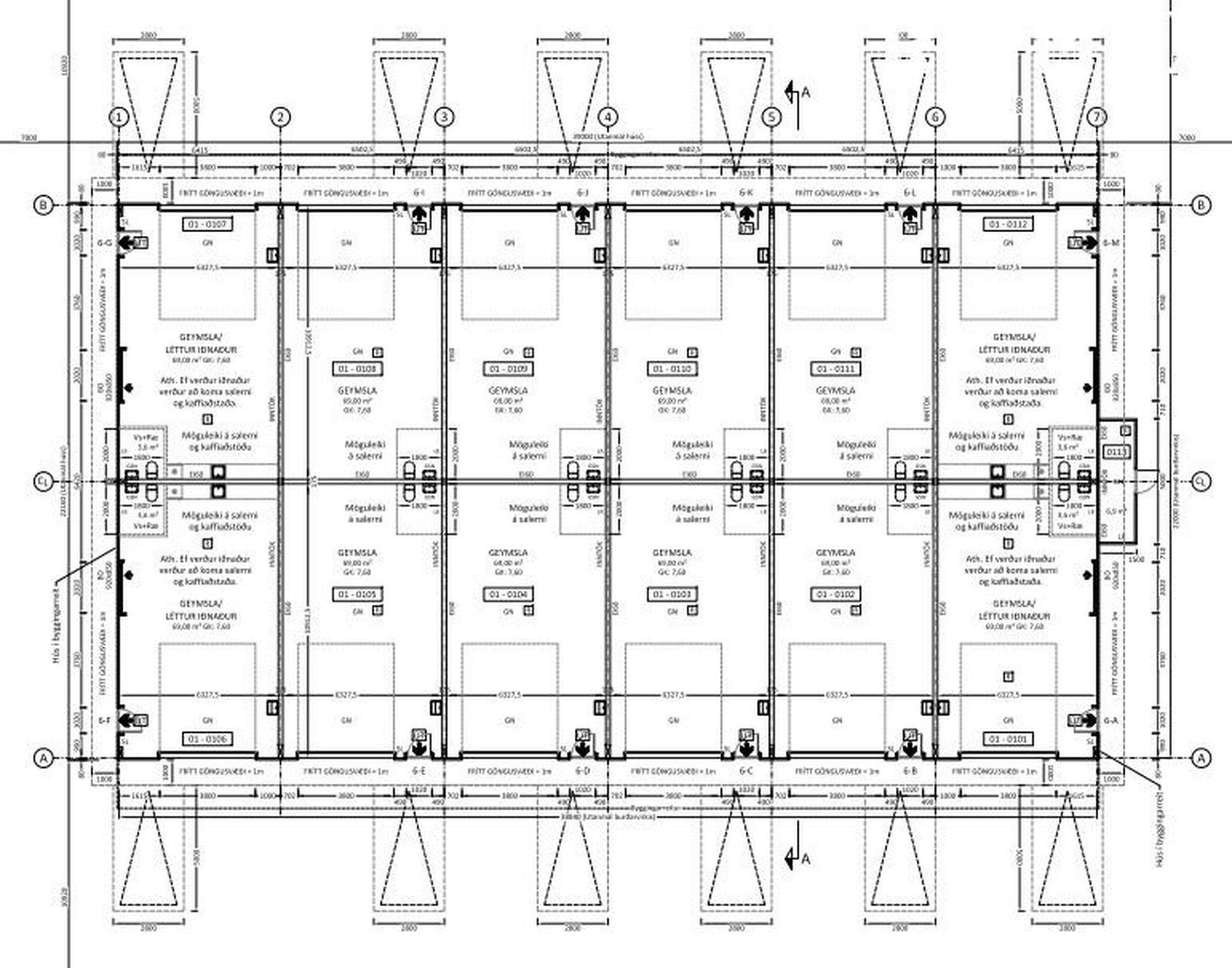
Nánari lýsing: Húsið er á einni hæð og skiptist í 12 einingar sem allar eru geymsla eða geymsla/léttur iðnaður, hver eining er 72m2 að birtu flatarmáli. Lóðin verður malbikuð, gert ráð fyrir einu bílastæði fyrir framan hverja starfseiningu.
Uppbygging húss: Húsið er byggt ofan á steypta sökkla.
Gólfplata: Hefðbundin staðsteypt plata, einangruð að innan með gólfhita. Neysluvatnslagnir eru lagðar samkv. verkfræðiteikningum, rör í rör. Útveggir/ þak / þakkantur / burðarvirki: Allir útveggir og þak hússins eru úr yleiningum, samlokueiningar frá Kingspan. Burðarvirki er límtré. Litur klæðninga að utanverðu er RAL7016 og að innan RAL 9010. Þakkantur er einfaldur, stálklæddur í sama lit og þakefni með utanáliggjandi álrennum og niðurfallsrörum í sama lit. Mænishæð er yfir 7 metrar. Gluggar og hurðir: Iðnaðarhurðir eru frá Héðni og er hæðin 4,35, litur RAL 7016 og rafmótoropnun. Gönguhurðir og gluggar eru úr viðhaldsfríu PVC plasti með tvöföldu einangrunargleri. Litur RAL 7016. Frárennslis og neysluvatnslagnir: Skólp‐ og regnvatnslagnir eru fullfrágengnar og tengdar fráveitukerfi í götu. Gólfniðurfall er fyrir innan allar innkeyrsluhurðir. Deilikistur fyrir neysluvatn frágengnar í hverri starfseiningu. Niðurföll af malbikuðum plönum frágengin og tengd fráveitukerfi. Hitakerfi: Gólfhitakerfi sem er innsteypt í botnplötuna á járnagrind komið í hverja starfseiningu, deilikista með hringrásarkerfi tengd í hverri einingu. Kerfi stjórnað með handvirkum ofnloka. Slökkvitæki fylgir. Sér frádráttamælir fylgir hverju bili og er staðsett í inntaksrými. Rafmagn: Aðaltafla með mælum fyrir hverja starfseiningu frágengin í inntaksrými. Greinatafla frágengin í hverri starfseiningu með einum þriggja fasa tengli við hliðina. Tenglar á nokkrum stöðum í hverri starfseiningu skv. grunnhönnun raflagnahönnuðar. Full lýsing (LED) í hverri starfseiningu skv. grunnhönnun raflagnahönnuðar sem uppfyllir viðkomandi reglur. Raflagnir lagðar í aðgengilegum kapalstigum, auðvelt að breyta ljósum, slökkvurum, tenglum og slíku ef þurfa þykir. Útiljós við hurðir á hverri starfseiningu sem hægt er að stjórna frá viðkomandi einingu og tengist viðkomandi mæli (ekki sameign). Lóð: Afhendist malbikuð. Virðisaukakvöð hvílir á húsinu. Skipulagsgjald: Kaupandi greiðir skipulagsgjald þegar það verður lagt á sem er 0,3% af væntanlegu brunabótamati.
Byggingin verður í notkunarflokki 1. samkv. byggingareglugerð en um er að ræða geymslur í þeim flokki. Skil hússins miðast við ÍST51:2021 BS4 – Fullgerð bygging. A:T:H þetta er nýr staðall um skil á byggingarstigum húsa.
Allar nánari upplýsingar veitir Bjarni Blöndal, löggiltur fasteignasali í síma: 662-6163 eða á email: bjarni@remax.is

Dýpri greining á Húsasjá
- Verðmat fasteignar
- Sölusaga og verðþróun
- Samanburður sambærilegra eigna



