Grásteinsmýri 2
01-0209 · 225 Garðabæ



112 dagar á sölu
110.500.000 kr
902.778 kr/m²
Háborg fasteignasala kynnir Grásteinsmýri 1, Garðabæ. Nýbyggingin er staðsteypt, einangruð að utan og klædd með ál- og bambus klæðningu. Góðar 2ja, 3ja 4ra og 5 herbergja íbúðir í litlu fjölbýli með lyftu. Útsýni er úr flestum íbúðum og timbur-verönd fylgir íbúðum á 1. hæð. Íbúðirnar afhendast án megin gólfefna en baðherbergi eru flísalögð að hluta. Næg bílastæði á lóð. Áætluð afhending íbúða er í mars-apríl 2026.
Sölusíða Grásteinsmýri
Nýr valkostur í fjármögnun. Kaupendur geta nýtt sér nýjan sjóð Öxar 20 sem styður þá með því að fjárfesta með þeim allt að 20% af kaupverði. Kynntu þér málið hér Öxar.is
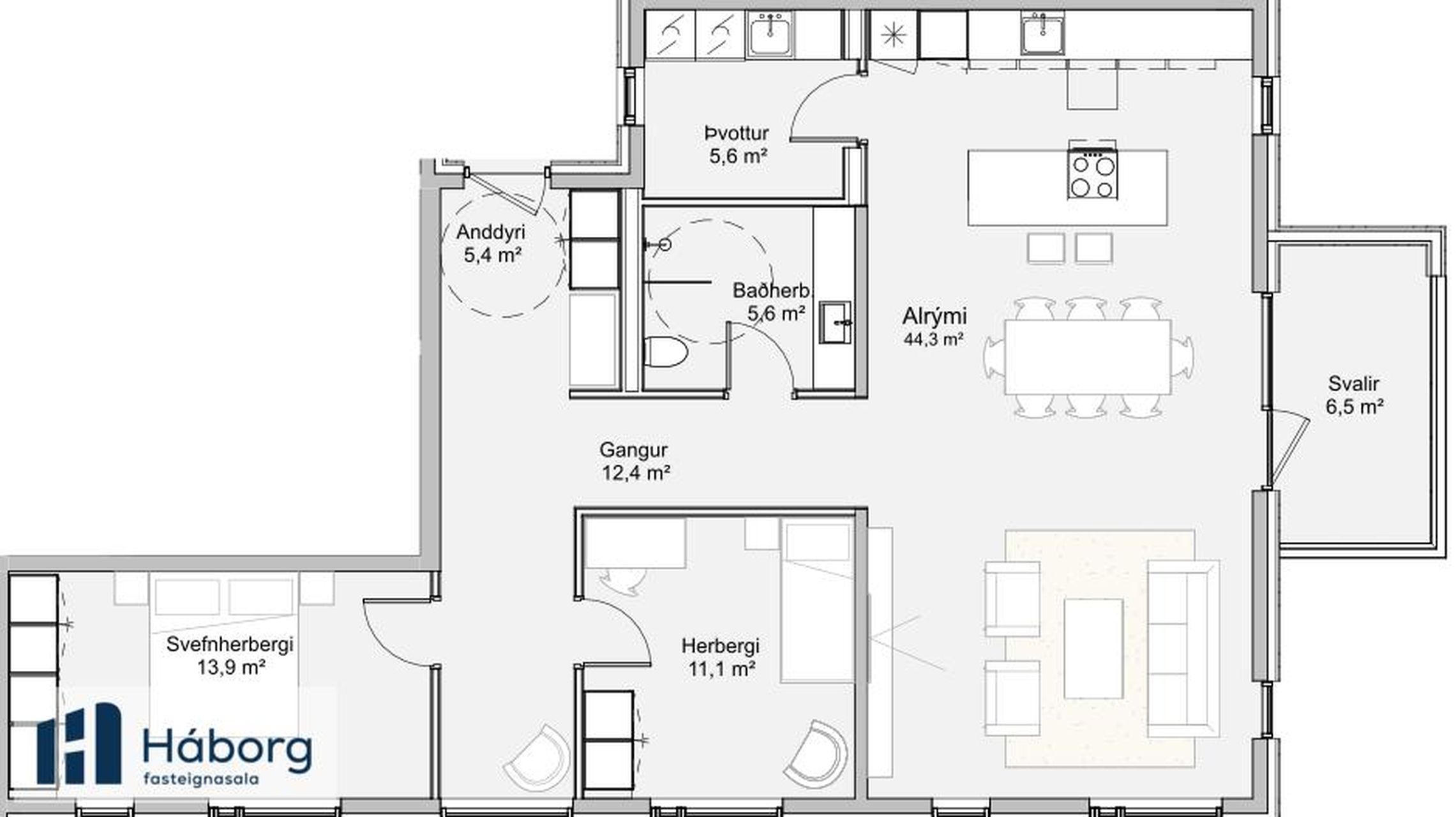
Nánari lýsing á íbúð 209 3ja herbergja: Stærð 122,4 fm. Sérinngangur af svölum. Þegar komið er í forstofu eru góðir fataskápar. Barnaherbergi er rúmgott og bjart með góðum fataskápum. Hjónaherbergi er einnig rúmgott og bjart með góðum fataskápum. Baðherbergi er með góðri snyrtiaðstöðu. Sér þvottahús innaf eldhúsi með góðri vinnuaðstöðu. Alrými er mjög rúmgott og bjart með opið eldhús með eyju sem hægt er að sitja við. Stofur eru rúmgóðar og bjartar. Úr alrými og stofu er útgengt á svalir 6,5 fm að stærð. Eigninni fylgir stæði í bílakjallara merkt B23 og geymsla að stærð 8,3 fm.
Nýjar, bjartar og vandaðar íbúðir með góðri lofthæð, þar sem náttúra, ró og nútímaleg hönnun mætast.
Nánari upplýsingar veitir Þórunn Pálsdóttir lögg. fasteignasali, í síma 773-6000, eða tölvupóstur thorunn@haborg.is
Innréttingar í íbúðum: AXIS innréttingar í litnum CashmereGrey. AEG innbyggð heimilistæki, ísskápur, uppþvottavél, helluborð og bakarofn. Baðherbergi eru flísalögð að hluta með 60×60 Patch Beige flísum (Ragno). Grohe blöndunartæki eða sambærileg. Egill Árnason hurðir, lamir og hurðabúnaður.
Sérmerkt bílastæði í bílageymslu fylgir hverri íbúð auk sérgeymslu í kjallara. Sameiginleg opin reiðhjóla- og vagnageymsla í inngarði á milli húsa.
Kristín Rós Magnadóttir lögg. fasteignasali, í síma 860-2078, eða tölvupóstur kristin@haborg.is
Þórunn Pálsdóttir lögg. fasteignasali, í síma 773-6000, eða tölvupóstur thorunn@haborg.is
Þórir Helgi Sigvaldason lögg. Fasteignasali og lögmaður, í síma 823-7170, eða tölvupóstur thorir@haborg.is
Reynir Þór Garðarsson Lögmaður, í síma 847-0577, eða tölvupóstur reynir@haborg.is
Birkir Már Árnason Lögmaður, í síma 867-3388, eða tölvupóstur birkir@haborg.is
Staðsetning og nærumhverfi: Frábær staðsetning, þar sem skóli, leikskóli, sundlaug og íþróttahús eru í göngufæri. Ekkert skutl og engar götur sem þarf að fara yfir. Rólegt og fallegt umhverfi. Frábær aðstaða fyrir fjölskyldufólk. Einnig eru frábær útivistasvæði við strandlengjuna. Hestamannfélagið Sóti og fallegar reiðleiðir eru á svæðinu.
ATH: kaupandi greiðir skipulagsgjald, 0,3% af brunabótamáti, þegar það verður lagt á.
Aðeins 4 mínútna akstur frá ljósunum við Actavis.
Nánari upplýsingar veitir Katla Hanna Steed lögg. fasteignasali, í síma 822-1661, eða tölvupóstur katla@haborg.is
Gjöld sem kaupandi þarf að standa straum af vegna kaupanna:
Stimpilgjald af kaupsamningi sem er hlutfall af fasteignamati. Stimpilgjald er 0,8% fyrir einstaklinga (0,4% við fyrstu kaup) og 1,6% fyrir lögaðila.
Þinglýsingargjald af kaupsamningi, veðskuldabréfum, veðleyfum o.fl. Þinglýsingargjald er kr. 2.500,- fyrir hvert skjal. Lántökugjald lánastofnunar. Um lántökugjald vísast í gjaldskrá viðkomandi lánveitanda. Umsýsluþóknun fasteignasölu skv. gjaldskrá.

Fáðu nýja innsýn á Húsasjá
- Verðmat fasteignar
- Sölusaga og verðþróun
- Samanburður sambærilegra eigna













