Grásteinsmýri 1
01-0104 · 225 Garðabæ



112 dagar á sölu
67.500.000 kr
997.046 kr/m²
Sýnum daglega!!!
RE/MAX, Garðar Hólm lgf., Guðlaug Jóna lgf. og Bjarný Björg lgf kynna:: Nýjan íbúðaklasa á Álftanesi, 225 Garðabæ, við Grásteinsmýri 1-6. Byggingaraðili Öxar ehf.
Uppbygging á 102 íbúðum í þremur lágreistum íbúðarkjörnum ásamt bílastæðahúsi undir einum kjarnanum. Í heidina eru 153 bílastæði, 30 í bílageymslu og 123 á lóð. Hönnun svæðisins einkennist af því að birta nái í allar íbúðir og andi vel um allt svæðið.
Kaupendur geta nýtt sér nýjan sjóð Öxar 20 sem styður kaupendur með því að fjárfesta með kaupanda allt að 20% af kaupverði. Kynntu þér málið.
Vel skipulagðar og rúmgóðar tveggja til fimm herbergja íbúðir með aukinni lofthæð. Með öllum íbúðum í húsunum fylgir stæði í bílageymslu, með sumum íbúðum fylgir svo auk þess annað sér merkt stæði utandyra. Allar íbúðir eru með hefðbundnar svalir eða verönd þar sem á við. Flestar íbúðir eru með sér þvottahús.
Sjá má skilalýsingu, verðlista og nánari upplýsingar inn á heimasíðu verkefnisins: grasteinsmyri.is
Nánari upplýsingar veita Guðlaug Jóna lgf. í síma 661-2363 eða gulla@remax.is, Garðar Hólm lgf. í síma 899-8811 eða gardar@remax.is og Bjarný Björg lgf. í síma 694-2526 eða bjarny@remax.is
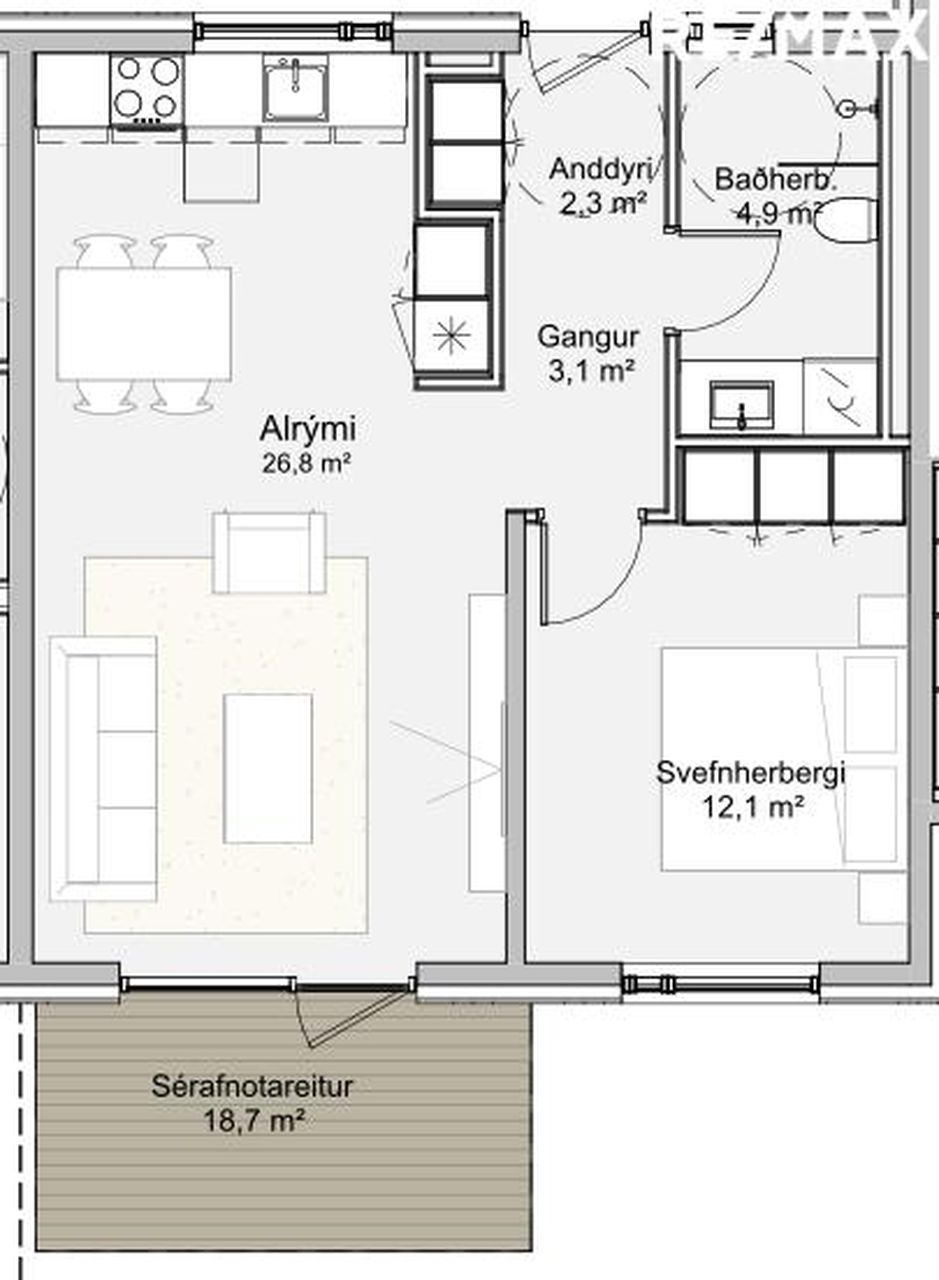
Íbúð 104 er glæsileg 2ja herbergja íbúð á 1. hæð með sérinngangi og stæði í bílakjallara. Samkvæmt Þjóðskrá Íslands er eignin 67,7 fm, þar af er geymsla í kjallara 9,2 fm. Útgengt á 18,7 fm sérafnotarétt.
Einstaklega vönduð og falleg 2ja herbergja íbúð, merkt: 104 (Hæð 1). Íbúðin er fullbúin án gólfefna að undanskildum votrýmum, sem verða flísalögð. Sérstæði í bílageymslu fylgir með. Húsið er úr staðsteypt, einangrað að utan og klætt með áli og timbri. Allar innréttingar eru frá Axis og eldhústæki frá AEG.
Íbúð: 0104
Hæð: 1
Tegund: 2ja herbergja
Stærð: 67,7 m²
Geymsla: 9,2 m²
Stæði í bílageymslu: Merkt B12
Nánari lýsing:
Forstofa: Með góðum fataskápum.
Eldhús: Falleg innrétting frá Axis með 60 cm helluborði, bakarofni, innbyggðum ísskáp og uppþvottavél.
Stofa/borðstofa: Í samliggjandi rými með eldhúsi. Opið og bjart rými. Útgengt út á 18,7 fm sérafnotarétt.
Hjónaherbergi: Rúmgott með góðum fataskápum.
Baðherbergi: Flísar á gólfi og að hluta til veggjum, upphengt salerni, sturta með glerskilrúmi, innrétting undir og við handlaug, handklæðaofn. Aðstaða fyrir þvottavél og þurkkara.
Geymsla: Er í sameign í kjallara og er 9,2 fm.
Sameign: Í sameign í kjallara er hjóla- og vagnageymsla.
Bílastæði: Bílastæði í lokuðum bílakjallara merk B12.
Helstu eiginleikar:Gólfsíðir gluggar við svalir.Sérmerkt stæði í bílageymslu.Mikið skápapláss.Innréttingar frá Axis.Aukin lofthæð.
Húsið:
Grásteinsmýri 1-6 er glæsilegt og vandað fjölbýlishús byggt af Öxar ehf.
Húsið er á 3 hæðum auk bílakjallara, alls 102 íbúðir. Húsið er gert staðsteypt og klætt að utan. Gluggar eru álklæddir viðargluggar með tvöföldu gleri.
*Myndirnar sem birtast á auglýsingu íbúðarinnar eru ekki endilega myndir af íbúðinni sjálfri heldur einungis til þess að gefa sýn á útlit eignanna þegar þær eru tilbúnar.
Kaupendur hafa verið upplýstir um að lóðin verður byggingasvæði í einhvern tíma eftir að eignir kunna að vera afhentar og að lokaúttekt kannað tefjast þangað til öll lóðin og mannvirki innan lóðar eru fullkláruð. Röskun getur orðið á stæðum í bílgeymslu og gætu kaupendur þurft að nota annað stæði en það sem þinglýst er á þeirra eign á meðan enn er unnið að því að klára heildareign og lóð. Seljandi mun ábyrgjast lokaúttekt á eigninni en afsal kann að fara fram áður en lokaúttekt á eigninni/heildareigninni fæst.
Nánari upplýsingar veita:
Garðar Hólm löggiltur fasteignasali í síma 899-8811 / gardar@remax.is
Guðlaug Jóna löggiltur fasteignasali í síma 661-2363 / gulla@remax.is
​​​​​​​Bjarný Björg löggiltur fasteignasali í síma 694-2526 / bjarny@remax.is
Gjöld sem kaupandi þarf að standa straum af vegna kaupanna:
1. Stimpilgjald af kaupsamningi 0,8%, ( 0,4% ef um fyrstu kaup er að ræða ) og 1.6% (ef um lögaðila er að ræða) af heildar fasteignamati.
2. Þinglýsingargjald af kaupsamningi, veðskuldabréfi, mögulegu veðleyfi o.fl. - kr. 2.700 af hverju skjali.
3. Lántökugjald lánastofnunar - Nánari upplýsingar á heimasíðum lánastofnana.
4. Umsýslugjald til fasteignasölu kr. 69.900.-

Fáðu nýja innsýn á Húsasjá
- Verðmat fasteignar
- Sölusaga og verðþróun
- Samanburður sambærilegra eigna













