Lautargata 5
01-0002 · 210 Garðabæ



100 dagar á sölu
131.900.000 kr
946.877 kr/m²
BÓKIÐ SKOÐUN - SÝNUM SAMDÆGURS - Einar s 888-7979, Hlynur s. 698-2603, Glódís s. 659-0510, Helgi s. 893-2233.
Hraunhamar fasteignasala kynnir: Glæsilegar nýjar íbúðir í vönduðu 10 íbúða lyftuhúsi í Urriðaholtinu í Garðabæ. Íbúðirnar skilast fullbúnar. Einstök staðsetning í jaðri hverfisins, frábært útsýni.
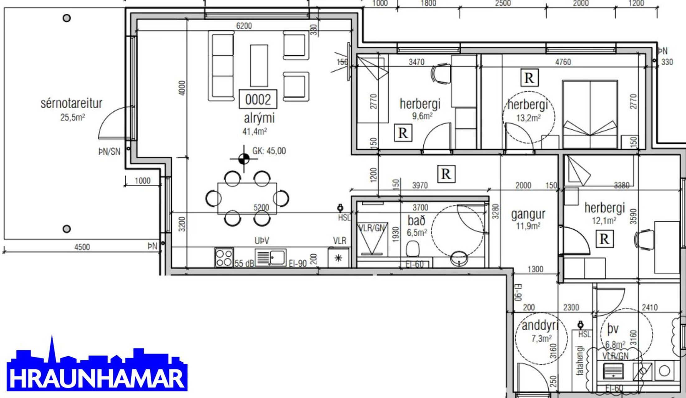
Íbúð 002 er fjögurra herbergja 139,3 fm íbúð á jarðhæð með 25,5 fm sérafnotaflöt.
Smelltu hér til að skoða sölusíðu verkefnisins.
Smelltu hér til að skoða skilalýsingu verktakans.
- Innréttingar eru frá HTH og kvartsteinplata í eldhúsi frá HQ Steinsmíði.
- Vönduð heimilistæki frá AEG.
- Aukin lofthæð
- 10 íbúðir í stigaganginum.
- Loftskiptakerfi í öllum íbúðum
- Allar íbúðir með suðvestur svölum.
- Snjóbræðsla er á göngusvæði
Nánari lýsing skv. teikningu:
Forstofa með fatahengi.
Björt og rúmgóð stofa/borðstofa útgengt á rúmgóðan 25,5fm sérafnotaflöt.
Stofa/eldhús í opnu rými, falleg innrétting frá HTH og vönduð eldunartæki frá AEG.
Hjónaherbergi með góðum fataskápum.
Svefnherbergi með fataskáp.
Svefnherbergi með fataskáp.
Rúmgott flísalagt baðherbergi með upphengdu salerni, handklæðaofn og HTH innnréttingu. ,,Walk in'' sturta með innfeldum blöndunartækjum.
Sér þvottahebergi með innréttingu frá HTH.
Geymsla á fyrstu hæð er 9,9fm.
Húsið er klætt að utan með álklæðningu og ál/tré gluggum þannig að húsið er viðhaldslétt.
Gott aðgengi er að íbúðunum, lyfta er í húsinu.
Geymslur eru ýmist innan íbúðar eða á 1. hæð, sameigninleg hjóla- og vagnageymsla.
_____________________________________________________________________________________
Bókið skoðun hjá sölumönnum Hraunhamars:
Hlynur Halldórsson, löggiltur fasteignasali, s. 698-2603, hlynur@hraunhamar.is
Glódís Helgadóttir, löggiltur fasteignasali, s. 659-0510, glodis@hraunhamar.is
Helgi Jón Harðarson, sölustj. s. 893-2233, helgi@hraunhamar.is
Einar Örn Ágústsson, löggiltur fasteignasali, s. 888-7979, einar@hraunhamar.is
Skoðunarskylda:
Í lögum um fasteignakaup nr. 40/2002 er kveðið á um ríka skoðunarskyldu kaupenda á fasteignum. Hraunhamar fasteignasala vill benda væntanlegum kaupendum á að kynna sér vel ástand fasteigna fyrir kauptilboðsgerð og ef þurfa þykir að leita til sérfræðinga fyrir nánari ástandsskoðun.
Gjöld sem kaupandi þarf að standa straum af vegna kaupanna:
1. Stimpilgjald af kaupsamningi, fyrstu kaup (0,4%), almenn kaup (0,8%), lögaðilar (1,6%) af heildarfasteignamati.
2. Þinglýsingargjald af kaupsamningi, veðskuldabréfi, mögulegu veðleyfi o.fl. – kr. 3,800 kr. af hverju skjali.
3. Lántökugjald lánastofnunar er skv. verðskrá viðkomandi lánastofnunar.
4. Umsýslugjald til fasteignasölu skv. þjónustusamningi
Hraunhamar er ein af elstu fasteignasölum landsins, stofnuð 1983.
Hraunhamar, í fararbroddi í rúm 40 ár. – Hraunhamar.is

Fáðu nýja innsýn á Húsasjá
- Verðmat fasteignar
- Sölusaga og verðþróun
- Samanburður sambærilegra eigna
























