Hnjúkamói 16
01-0403 · 815 Þorlákshöfn



212 dagar á sölu
46.900.000 kr
921.415 kr/m²
Nýtt á skrá! LIND Fasteignasala og Stofnhús kynna með stolti Hnjúkamói 16 í Þorlákshöfn.
Nýjar, glæsilegar og vel skipulagðar 2ja – 4ra herbergja íbúðir í álklæddu og viðhaldslitlu 22 íbúða lyftuhúsi. Rúmgóðar svalir eða verandir fylgir öllum íbúðum. Íbúðirnar afhendast fullbúnar með vönduðum Voké-III innréttingum, gólfefnum og öllu eldhústækjum (m.a. innbyggðum kæliskáp/frysti og uppþvottavél). Frábær staðsetning miðsvæðis í Þorlákshöfn þar sem stutt er í alla þjónustu og fallega náttúru með ýmiss konar útivistarmöguleikum.
Nánari upplýsingar veita:
Hrafnkell P. Pálmason lögg. fasteignasali / 6908236 / HRAFNKELL@FASTLIND.IS
Heimir F. Hallgrímsson lögg. fasteignasali / 849 0672 / HEIMIR@FASTLIND.IS
Arinbjörn Marinósson lögg. fasteignasali / 822 8574 / ARINBJORN@FASTLIND.IS
Andri Freyr Halldórsson lögg. fasteignasali / 762-6162 / ANDRI@FASTLIND.IS
--- HLUTDEILDARLÁN Í BOÐI ---
***Möguleiki á geymslu***
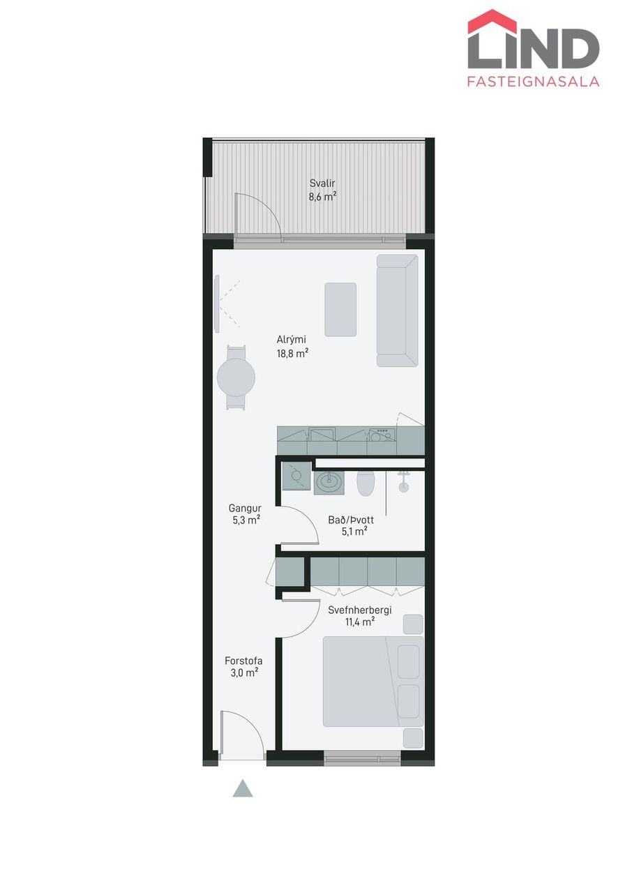
Íbúð 403 er glæsileg 50,9 fm. 2ja herbergja íbúð á 4. hæð. með góðum 8,6 fm. svölum. Sjá nánar sölubækling íbúða.
Íbúðin skiptist í forstofu, gang, alrými sem er opið við eldhús með útgengi á svalir, svefnherbergi, baðherbergi með þvottaaðstöðu inn af.
Afhending: febrúar - mars 2026 með fyrirvara um að öryggisúttekt sé komin á húsið.
--- Allir viðskiptavinir Lindar fasteignasölu fá Vildarkort Lindar sem veitir 30% afslátt hjá fjölda fyrirtækja ---
Nánari lýsing:
Forstofa: Með fataskápum.
Stofa: Með harðparketi á gólfi og opin við eldhús. Útgengi á góðar 8,6 fm. svalir.
Eldhús: Með vandaðri Voké-III innréttingum. Öll eldhústæki fylgja frá Rafha (innbyggður kæliskápur með frysti, innbyggð uppþvottavél, spansuðu helluborð, sjálfshreinsandi bakaraofn).
Svefnherbergi: Með harðparketi á gólfi og góðu skápaplássi.
Baðherbergi: Er fullfrágengið með flísalögðu gólfi og tveimur veggjum. Flísalögð sturta með glerþili, upphengt salerni og innrétting við vask (með speglaskáp).
Þvottaaðstaða: Er staðsett inn af baðherbergi. Gert ráð fyrir þvottavél og þurrkara (barkalausum).
Innréttingar og innra skipulag.
- Innréttingar: Ljósar innréttingar í bland við dökka viðaráferð, sérsmíðaðar af Voké-III.
- Heimilistæki: Vönduð AEG tæki frá Rafha, sjálfhreinsandi ofn, spanhelluborð, innbyggð uppþvottavél og kæli-/frystiskápur
- Flísar á baðherbergi: Ljósar ítalskar 60x60 Panaria Surround flísar frá Álfaborg
- Gólfefni: Vandað BerryAlloc Cadenza harðparket frá Álfaborg
- Innihurðir: Stílhreinar hvítlakkaðar yfirfeldar hurðir Dana SAX frá Parki
- Hreinlætistæki: Falleg og endingargóð tæki frá Grohe
- Lýsing: LED-ljós frá Ískraft fylgja öllum rýmum íbúða
- Rofar og tenglar: Hvítur rofabúnaður af gerðinni Jung, frá Reykjafell
- Lagnaefni: Vandað pípulagnu- og raflagnaefni frá traustum framleiðendum
Nánari upplýsingar má finna á heimasíðu verkefnisins: Stofnhús - Hnjúkamói 16
Hnjúkamói 16 er fimm hæða fjölbýlishús, 22 íbúðir eru í húsinu. Húsið er staðsteypt, einangrað að utan og klætt smábáru frá Áltak. Gluggar og hurðar úr ál/tré frá BYKO. Lóð verður fullfrágengin samkvæmt leiðbeinandi teikningum arkitekts. Lyfta er í húsinu, Gengið er inn í íbúðir af svalagöngum. Íbúðum á jarðhæð fylgir sérnotareitur með timburverönd, svalir eru á íbúðum á efri hæðum.
Stéttar næst húsi og gangstígar á lóð verða steypt eða hellulagt, snjóbræðslulögn í gangstíg framan við húsið og að sorpgeymslu að öðru leyti verður lóð frágengin með þökum. Á lóðinni eru 25 bílastæði í óskiptri sameign, þar af 2 fyrir hreyfihamlaða. Möguleiki er á að koma upp hleðslustöðvum rafbíla næst húsi.
Stofnhús er byggingaraðili og arkitekt hússins er Teikna ehf. Raflagnahönnun er í höndum Voltorka ehf. Burðarþols, lagnir og loftræsting NNE ehf. Landlagshönnun Lilium ehf. Byggingastjóri Goðhús ehf. Verkefnastjórn JTV ehf.
Kaupandi greiðir skipulagsgjald sem nemur 0,3% af brunabótamati þegar það er lagt á.
Seljandi áskilur sér allan rétt til að gera efnis-, tæknilegar- og útlits breytingar meðan á byggingaframkvæmd stendur. Heimild seljanda til að breyta eignaskiptasamningi og reyndarteikningum án samþykkis kaupanda, sé þess þörf án þess þó að rýra eignarrétt kaupanda. Seljandi áskilur sér einnig rétt til nauðsynlegra breytinga á teikningum á byggingartíma vegna tæknilegra útfærslna í samráði við arkitekta, hönnuði og byggingaryfirvöld. Innréttingateikningar eru þær sem gilda ef misræmi er milli arkitektateikninga og innréttingateikninga og eru þær áritaðar og hluti samningsins.
Allt auglýsinga- og kynningarefni, eins og tölvugerðar myndir og teikningar, eru eingöngu til hliðsjónar. Laus búnaður og annað sem kann að vera sýnt á teikningum eða þrívíddar myndum en er ekki talið upp í skilalýsingu fylgir þannig ekki íbúðum.
Eignin afhendist skv. meðfylgjandi skilalýsingu.
-----------------------------------------------------------------------
Gjöld sem kaupandi þarf að standa straum af vegna kaupanna:
1. Stimpilgjald af kaupsamningi - 0.8% af heildarfasteignamati / 1.6% fyrir lögaðila
Fyrstu kaup - 0,4% af heildarfasteignamati
2. Þinglýsingagjald af kaupsamningi, veðskuldabréfi, veðleyfi o.fl.- kr. 2.500 af hverju skjali.
3. Lántökugjald lánastofnunar
4. Umsýsluþóknun til fasteignasölu, sbr.kauptilboð.

Dýpri greining á Húsasjá
- Verðmat fasteignar
- Sölusaga og verðþróun
- Samanburður sambærilegra eigna






















