Áshamar 7
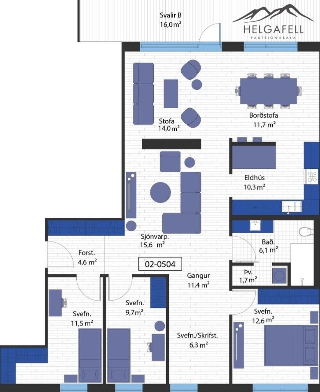
02-0504 · 221 Hafnarfirði



285 dagar á sölu
99.400.000 kr
715.108 kr/m²
Helgafell fasteignasala kynnir nýja fjögurra herbergja fullbúna íbúð á þriðju hæð merkt 0504 við Áshamar 5-7 í Hafnarfirði.
Birt stærð: 139fm., þar af er sér geymsla 8,1fm.
Verktaki: JE Skjanni ehf.
Lýsing:
Anddyri: Harðparket á gólfi og skápur.
Eldhús: Opið við stofu - L laga eldhúsinnrétting frá Kappa með góðu skápaplássi. Ísskápur, uppþvottavél, helluborð, gufugleypir og bakaraofn í vinnuhæð frá Smith&Norland.
Stofa: Rúmgóð stofa með útgengi á suðvestur 16,0 fm. svalir.
Svefnherbergi: Harðparket á gólfi. Mikið skápapláss. Rennihurð inn í svefnherbergi.
Baðherbergi: Rúmgott og flísalagt í hólf og gólf (flísar frá Agli Árnasyni), upphengt salerni, "Walk-in" sturta og pláss fyrir þvottavél og þurrkara á baðherbergi.
8,1 fm. sérgeymsla í sameign á neðstu hæð.
Íbúðin er með gólfhita og er afhent fullbúin með gólfefnum, harðparket á gólfi og flísar í blautrýmum.
Einangrun undir gólfhitalagnirnar og anhýdrít ílögn yfir gólfhitalagnirnar.
Endanlegur frágangur gólfefna er hluti af heildarhljóðvist hússins sem tryggir hljóðvist, vandað undirlag og réttan frágang gólfefna.
Hvítar 90 cm. yfirfelldar hurðir frá Parka með 90 cm. ljósopi.
Dyrasímakerfi með myndavél uppsett.
Ljósleiðari kominn í hús og inn í smáspennutöflu hverrar íbúðar.
RJ45 nettengi eru uppsett og tengd inn í smáspennutöflu. Loftnet er komið inn í smáspennutöflu.
Í sameign er hjóla- og vagnageymsla.
Teppalagðir stigagangar með góðri lýsingu. Glerlokun með hurð frá stigagangi inn á íbúðarpalla á hverri hæð.
Lyfta gengur inn í íbúðarpallana á hverri hæð.
Vandaðar brunahurðir frá Parka inn í íbúðirnar.
Sameiginleg 95 stæði á lóðinni.
Búið er að leggja rafmagnslagnir að hluta af stæðunum án tengingar, sem hugsaðar eru fyrir rafmagnsbíla.
ATH: Myndir af íbúðinni geta verið úr samskonar eða svipaðri íbúð.
ATH: Svalalokanir sem sjást á tölvugerðri mynd eru ekki afhentar með íbúðunum.
Barnvænt hverfi, undirgöng nálægt húsinu og er því góð gönguleið í skóla- og leikskóla. Ekki þörf að fara yfir umferðargötu á leið í skólann. Nýr leikskóli í sömu götu.
Fyrir nánari upplýsingar hafið samband við sölumenn Helgafells fasteignasölu.----------------------------------------------------------
Heimasíða Helgafells fasteignasölu
Facebook síða Helgafells
- Hafðu samband og við gerum söluverðmat á eign þinni, þér að kostnaðarlausu -
Gjöld sem kaupandi þarf að standa straum af vegna kaupa á fasteign:
1. Stimpilgjald af kaupsamningi - 0,8% af fasteignamati fyrir einstaklinga (0,4% fyrir fyrstu kaupendur) og 1,6% fyrir lögaðila.
2. Þinglýsingargjald af kaupsamningi, veðskuldabréfi, mögulegu veðleyfi o.fl. - 3.800 kr. af hverju skjali.
3. Lántökugjald lánastofnunar - almennt í kringum 50þ., oft lægra eða ekkert lántökugjald fyrir fyrstu kaup. Nánari upplýsingar á heimasíðum lánastofnana.
4. Þjónustusamningur milli kaupanda og fasteignasölu - Kr. 92.380,- m/vsk.
Helgafell fasteignasala bendir kaupendum á ríka skoðunarskyldu sem kveðið er á í lögum um fasteignakaup nr.40/2002. Skorað er á kaupendur að kynna sér vandlega ástand fasteigna og nýta til þess aðstoð sérfræðinga. Sömuleiðis er bent á upplýsingaskyldu seljanda samanber 26.gr. Laga nr.40/2002 um fasteignakaup og 25.gr. laga nr.26/1994 um fjöleignarhús. Seljanda er bent á að kynna sér tilvitnaðar lagagreinar.

Dýpri greining á Húsasjá
- Verðmat fasteignar
- Sölusaga og verðþróun
- Samanburður sambærilegra eigna

















