Láland 21
01-0101 · 800 Selfossi



120 dagar á sölu
92.900.000 kr
409.793 kr/m²
ÁRBORGIR SELFOSSI S 482 4800 kynna í sölu:
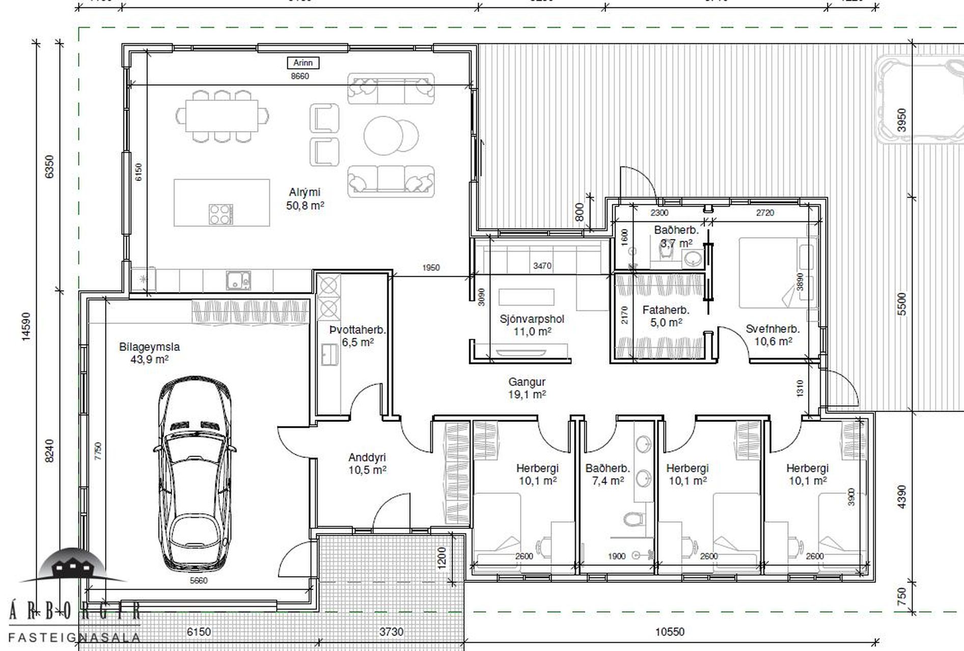
Glæsilegt og vel skipulagt einbýlishús í nýju hverfi á Selfossi.
Húsið er timburhús, klætt að utan með litaðri álkassettuklæðningu og smábáru í bland, soðinn dúkur er á þaki.
Heildarstærð hússins er 226,7m2 og er sambyggður bílskúr 49m2 þar af.
Innra skipulag er mjög skemmtilegt en það telur anddyri, þvottahús, baðherbergi, stofu og eldhús sem eru í 50 m2 alrými, sjónvarpshol, 3 barnaherbergi, hjónaherbergi með sérbaðherbergi og fataherbergi auk rúmgóðs bílskúrs.
Eignin afhendist tilbúin að utan og að innan skilast húsið fulleinangrað, rakasperra frágengin og inntök rafmagns og hita eru greidd.
Lóðin skilast þökulögð og mulningur er í innkeyrslu, sorptunnuskýli fyrir 3 tunnur fylgir með.
Hægt er að fá húsið lengra komið eftir nánara samkomulagi.
Nánari upplýsingar og bókið skoðun á skrifstofu Árborga.
arborgir@arborgir.is eða í síma 482-4800.
Gjöld sem kaupandi þarf að standa straum af vegna kaupanna:
1. Stimpilgjald af kaupsamningi sem er: 0,8% af fasteignamati fyrir einstaklinga. 0,4% fyrir fyrstu kaupendur og 1,6% fyrir lögaðila.
2. Þinglýsingargjald af kaupsamningi, veðskuldabréfum, veðleyfum o.fl. kr. 3.800,- hvert skjal.
3. Lántökugjald lánastofnunar. Skv. gjaldskrá viðkomandi lánveitanda.
4. Umsýslugjald kaupanda skv. gjaldskrá.
5. Þegar um nýbyggingu er að ræða greiðir kaupandi skipulagsgjald, 0,3% af brunabótamáti, þegar það er lagt á.

Fáðu nýja innsýn á Húsasjá
- Verðmat fasteignar
- Sölusaga og verðþróun
- Samanburður sambærilegra eigna







