Kleppsmýrarvegur 6
01-0210 · 104 Reykjavík



396 dagar á sölu
95.900.000 kr
805.882 kr/m²
Íbúðir með kaupleigurétti!!!
Þú festir verðið núna með leigusamningi til 18 mánaða. Að leigutíma liðnum klárar þú kaupin og 25% af þeirri leigu sem greidd var á tímabilinu kemur til baka og gengur upp í kaupin.
SÝNUM DAGLEGA!!
RE/MAX fasteignasala, Guðlaug Jóna lgf. í síma 661-2363 eða gulla@remax.is, Garðar Hólm lgf. í síma 899-8811 eða gardar@remax.is og Bjarný Björg lgf. í síma 694-2526 eða bjarny@remax.is kynna:
Til sölu nýjar íbúðir við Kleppsmýrarveg 6, Dugguvog 1 og Arkarvog 1 í Reykjavík. 51 íbúð eru í húsunum frá 62,8 fm – 141,8 fm. Verð frá 67,9 - 149,9 mkr.
Allar íbúðir eru með sér loftræstikerfi sem stuðlar að heilbrigði húss og íbúa, auk orkusparnaðar sem skilar allt að 80% endurnýting á varma. Svalir með rennihurð. Sérmerkt bílastæði í bílakjallara fylgja hverri íbúð. Eignirnar eru lausar til afhendingar.
Við hönnun hússins er tekið mið af því að lágmarka viðhald. Húsið er einingahús frá BM Vallá og það því steypt við bestu skilyrði og gluggar eru úr ál-tré.
Smelltu hér fyrir heimasíðu verkefnisins og skilalýsingu.
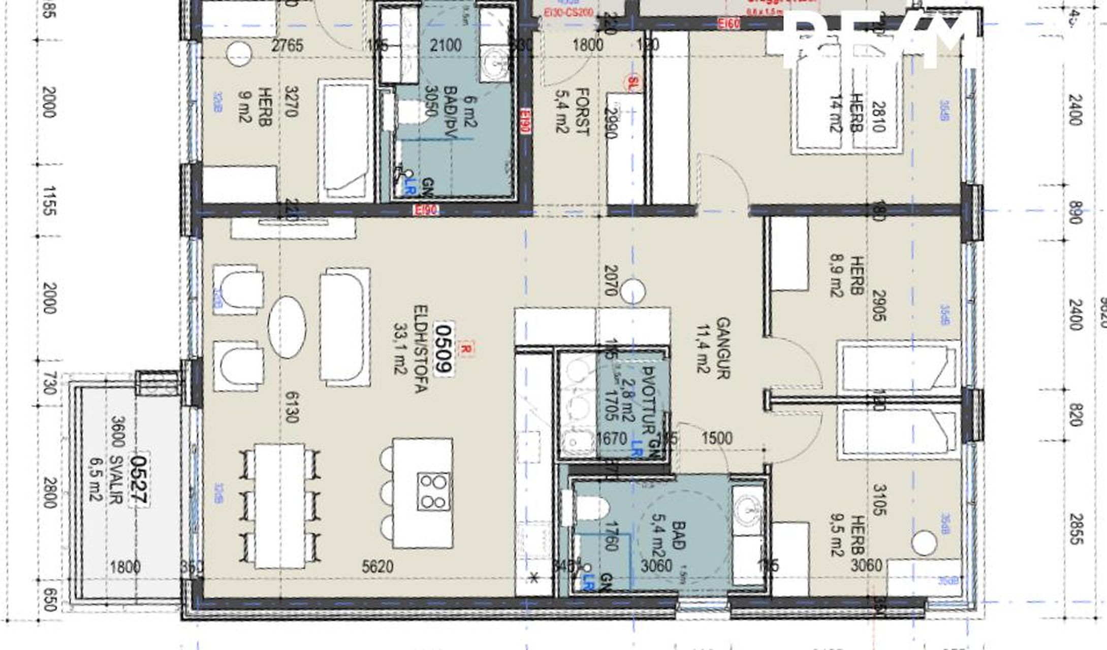
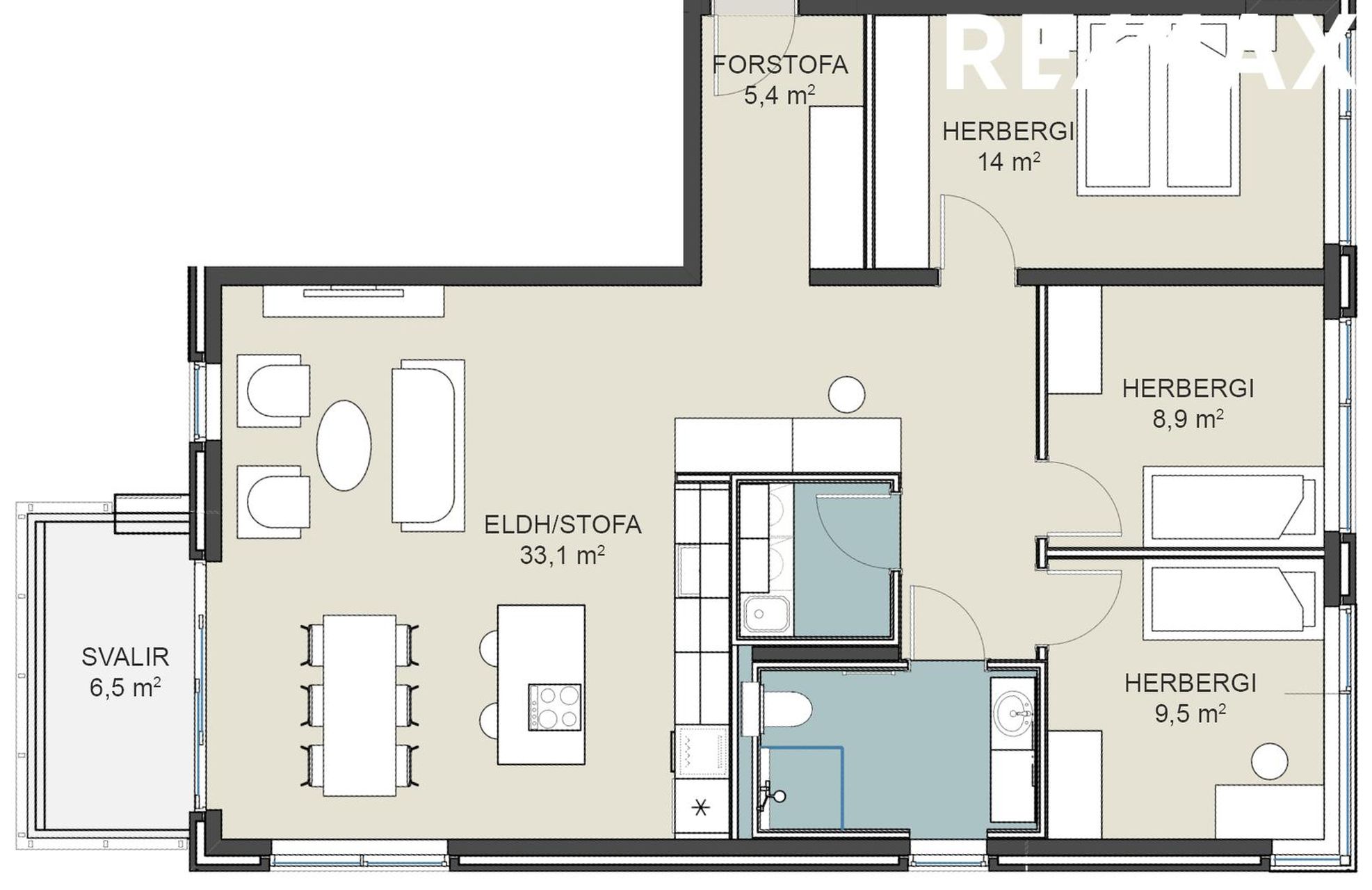
Íbúð 210 er glæsileg 4ra herbergja íbúð á 2. hæð með stæði í bílakjallara. Samkvæmt Þjóðskrá Íslands er eignin 119 fm, þar af er geymsla í kjallara 11,8 fm. Útgengt á 6,5 fm svalir um góða rennihurð.
Einstaklega vönduð og falleg 4ra herbergja íbúð, merkt: 210 (Hæð 2). Íbúðin er fullbúin án gólfefna að undanskildum votrýmum, sem verða flísalögð. Sérstæði í bílageymslu fylgir með. Húsið er úr steyptum eininum og málað að utan. Loftræstikerfi með varmaskipti er í íbúðinni sem sér til þess að alltaf séu góð loftgæði, kostnaður við kyndingu minnkar og líkur á myglu verða mun minni. Allar innréttingar eru frá Axis.
Íbúð: 0210
Hæð: 2
Tegund: 4ra herbergja
Stærð: 119 m²
Geymsla: 11,8 m²
Stæði í bílageymslu: Merkt B31
Nánari lýsing:
Forstofa: Góður fataskápur.
Eldhús: Falleg innrétting frá Axis með helluborði, bakarofni og gufugleypi. Eyja er í eldhúsi og er eldavélin þar.
Stofa/borðstofa: Í samliggjandi rými með eldhúsi. Opið og bjart rými. Útgengt út á 6,5 fm svalir um góða rennihurð.
Hjónaherbergi: Rúmgott með góðum fataskápum.
Herbergi II og III: Rúmgóð með góðum fataskápum.
Baðherbergi: Flísar á gólfi og að hluta til veggjum, upphengt salerni, sturta með glerskilrúmi, innrétting undir og við handlaug, handklæðaofn.
Þvottahús: Innrétting fyrir þvottavél og þurrkara með skúffum undir og skápum yfir vélum. Flísar á gólfum.
Geymsla: Er í sameign í kjallara 11,8 fm.
Sameign: Í sameign í kjallara er hjóla- og vagnageymsla.
Bílastæði: Bílastæði í lokuðum bílakjallara merk B31.
Helstu eiginleikar:
Loftræstikerfi með varmaskipti
Rennihurðar út á svalir
Gólfsíðir gluggar við svalir
Stæði í bílageymslu
Mikið skápapláss
Innréttingar frá Axis
Húsið:
Kleppsmýrarvegur 6, Dugguvogur 1 og Arkarvogur 1 er glæsilegt og vandað fjölbýlishús byggt af Öxar ehf.
Húsið er á 6 hæðum auk bílakjallara, alls 51 íbúðir. Húsið er gert úr forsteyptum einingum frá BM Vallá sem eru framleiddar við. úrvals skilyrði. Gluggar eru álklæddir viðargluggar með tvöföldu gleri.
*Myndirnar sem birtast á auglýsingu íbúðarinnar eru ekki endilega myndir af íbúðinni sjálfri heldur einungis til þess að gefa sýn á útlit eignanna þegar þær eru tilbúnar.
Nánari upplýsingar veita:
Garðar Hólm löggiltur fasteignasali í síma 899-8811 / gardar@remax.is
Guðlaug Jóna löggiltur fasteignasali í síma 661-2363 / gulla@remax.is
Bjarný Björg löggiltur fasteignasali í síma 694-2526 / bjarny@remax.is

Dýpri greining á Húsasjá
- Verðmat fasteignar
- Sölusaga og verðþróun
- Samanburður sambærilegra eigna














































