Tjarnabraut 2
01-0208 · 260 Reykjanesbæ



620 dagar á sölu
69.400.000 kr
760.131 kr/m²
PRODOMO fasteignasala kynnir nýtt og glæsilegt 23 íbúða fjölbýlishús á góðum stað að Tjarnabraut 2 í Innri Njarðvík.
Vel skipulagðar þriggja og fjögurra herbergja íbúðir sem skilast fullfrágengnar með gólfefnum. Innréttingar eru sérsmíðaðar með innbyggðum ísskáp og uppþvottavél. Alrými íbúðinna er bjart, þar eru stofa og eldhús í opnu rými. Gólfhiti er í eignunum. Lagt verður fyrir rafhleðslu við öll stæði auk þess sem tvær hleðslustöðvar verða uppsettar á lóð. Eignirnar eru tilbúnar til afhendingar.
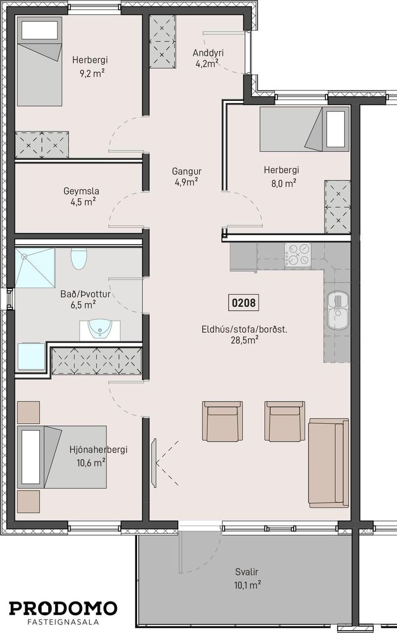
Nánari lýsing íbúðar 208:
Glæsileg fjögurra herbergja endaíbúð á annarri hæð með sér inngangi. Íbúðin skiptist í anddyri með fataskáp. Stofu og eldhús í opnu rými, þrjú svefnherbergi með fataskápum. Frá stofu er útgengt á svalir. Baðherbergi með sturtu, þar er aðstaða fyrir þvottavél og þurrkara. Geymsla er innan íbúðar.
Tjarnabraut 2
Glæsilegt staðsteypt hús sem er einangrað að utan og klætt með báruðu áli. Svalahurðir og gluggar úr álklæddu timbri. Eignirnar skilast fullfrágengnar að utan sem innan. Íbúðirnar eru með sérsmíðuðum innréttingum og faskápum frá Parka. Litasamsetning er hnota með svörtum höldum. Vönduð tæki í eldhúsi frá Electrolux, span helluborð. Á baðherbergjum eru flísar á gólfi og tveimur veggjum. Eignirnar eru vel skipulagðar. Stétt við innganga er hellulögð og gönguleiðir með snjóbræðslukerfi. Bílastæði verða malbikuð og á lóð verður hjólaskýli.
Frábær staðsetning í nálægð við skóla og leikskóla ásamt verslun og þjónustu. Samgöngur til og frá svæðinu eru auðveldar og örstutt er á Reykjanesbraut.
Nánari upplýsingar veita Lilja Valþórsdóttir löggiltur fasteignasali s: 860-6886, lilja@prodomo.is
Hákon Ó. Hákonarson löggiltur fasteignasali s: 899-1298, hakon@prodomo.is eða á skrifstofu Prodomo að Hafnargötu 15, Reykjanesbæ
Um skoðunar- og aðgæsluskyldu:
Í lögum um fasteignakaup nr. 40/2002 er kveðið á um ríka skoðunarskyldu kaupenda á fasteignum. PRODOMO fasteignasala bendir væntanlegum kaupendum á að kynna sér vel ástand fasteigna við skoðun og fyrir tilboðsgerð og ef þurfa þykir að leita til sérfræðinga um nánari ástandsskoðun.
Forsendur söluyfirlits:
Söluyfirlitið er samið af fasteignasala í samræmi við ákvæði laga nr. 70/2015. Þær upplýsingar sem fram koma í söluyfirliti þessu eru sóttar í opinberar skrár, til seljanda sjálfs og eftir atvikum til húsfélags. Seljandi veitir upplýsingar um eign í samræmi við upplýsingaskyldu laga um fasteignakaup nr. 40/2002. Fasteignasali sannreynir að þær upplýsingar séu réttar með sjónskoðun á eigninni. Fasteignasali getur ekki fullyrt um ástand og eiginleika þeirra hluta fasteigna sem ekki eru aðgengilegir og sjást ekki berum augum, t.d. lagnir, dren skólp og þak.
Gjöld sem kaupandi þarf að standa straum af vegna kaupanna:
* Stimpilgjald af kaupsamningi sem er hlutfall af fasteignamati. Stimpilgjald er 0,8% fyrir einstaklinga.
* Þinglýsingargjald af kaupsamningi, veðskuldabréfum, veðleyfum o.fl. Þinglýsingargjald er kr. 2.700,- fyrir hvert skjal.
* Lántökugjald lánastofnunar. Um lántökugjald vísast í gjaldskrá viðkomandi lánveitanda.
* Umsýsluþóknun fasteignasölu skv. gjaldskrá.
* Kaupandi greiðir skipulagsgjald af hinum selda eignarhluta þegar það verður lagt á, nú 0,3% af brunabótamati.

Fáðu nýja innsýn á Húsasjá
- Verðmat fasteignar
- Sölusaga og verðþróun
- Samanburður sambærilegra eigna











