Litli-Nátthagi 4
Lóð · 805 Selfossi



634 dagar á sölu
8.000.000 kr
1.186 kr/m²
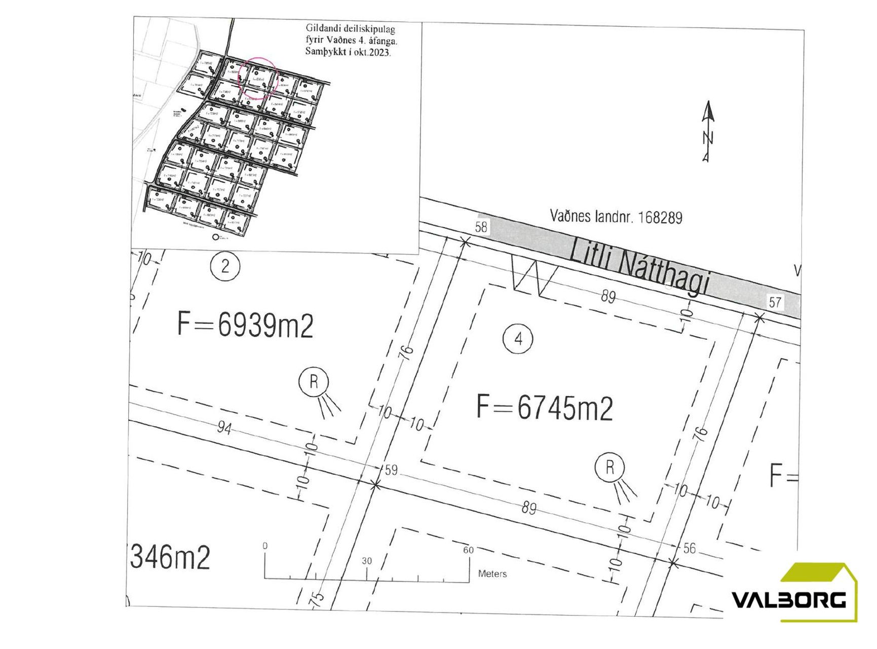
VALBORG fasteignasala kynnir í einkasölu sumarhúsalóð í landi Vaðness, LITLI-NÁTTHAGI 4, 805 Selfossi.
Lóðin er einkalóð, samtals 6.745 m2 að stærð samkvæmt skráningu Þjóðskrár Íslands.
Samkvæmt deiliskipulagi fyrir svæðið er heimilt að byggja 2 íveruhús (sumarhús og gestahús) og þar skal gestahús vera að hámarki 40 m2. Að auki er heimilt að byggja aukahús s.s. geymslu eða gróðurhús. Samkvæmt aðalskipulagi er nýtingarhlutfall lóðar 0.03.
Aðgengi að lóðinni er um Vaðnesbraut, Mosabraut og Efri-Mosabraut.
Sjá staðsetningu og skráningu fasteignaskrár HMS hér.
Sjá deiliskipulag fyrir svæðið hér.
Upplýsingar um tengigjöld og fleira
Nánari upplýsingar veita:
Gunnar Biering Agnarsson, löggiltur fasteignasali, í síma 823-3300, tölvupóstur gunnar@valborgfs.is.
Fyrir skoðun hafið samband við Pál Helga í síma 840-2723 eða Guðjón í síma 864-3770.
Forsendur söluyfirlits:
Söluyfirlit er samið af fasteignasala í samræmi við ákvæði laga nr. 70/2015. Þær upplýsingar sem fram koma í söluyfirliti þessu eru sóttar í opinberar skrár, til seljanda sjálfs og eftir atvikum til húsfélags. Seljandi veitir upplýsingar um eign í samræmi við upplýsingaskyldu laga um fasteignakaup nr. 40/2002. Fasteignasali sannreynir að þær upplýsingar séu réttar með sjónskoðun á eigninni. Fasteignasali getur ekki fullyrt um ástand og eiginleika þeirra hluta fasteigna sem ekki eru aðgengilegir og sjást ekki berum augum, t.d. lagnir, dren, skólp og þak.
Um skoðunar- og aðgæsluskyldu:
Í lögum um fasteignakaup nr. 40/2002 er kveðið á um ríka skoðunarskyldu kaupenda á fasteignum. Valborg ehf. fasteignasala bendir væntanlegum kaupendum á að kynna sér vel ástand fasteigna við skoðun og fyrir tilboðsgerð og ef þurfa þykir að leita til sérfræðinga um nánari ástandsskoðun.
Gjöld sem kaupandi þarf að standa straum af vegna kaupanna:
1. Stimpilgjald af kaupsamningi sem er hlutfall af fasteignamati. Stimpilgjald er 0,8% fyrir einstaklinga (0,4% við fyrstu kaup) og 1,6% fyrir lögaðila.
2. Þinglýsingargjald af kaupsamningi, veðskuldabréfum, veðleyfum o.fl. Þinglýsingargjald er kr. 2.700,- fyrir hvert skjal.
3. Lántökugjald lánastofnunar. Um lántökugjald vísast í gjaldskrá viðkomandi lánveitanda.
4. Umsýsluþóknun fasteignasölu skv. gjaldskrá.
5. Ef um nýbyggingu er að ræða greiðir kaupandi skipulagsgjald, 0,3% af brunabótamati, þegar það er lagt á.

Dýpri greining á Húsasjá
- Verðmat fasteignar
- Sölusaga og verðþróun
- Samanburður sambærilegra eigna







