Elsugata 17
01-0103 · 815 Þorlákshöfn



296 dagar á sölu
78.900.000 kr
563.571 kr/m²
Pétur Ásgeirsson löggiltur fasteignasali hjá RE/MAX fasteignasölu kynnir : Fallegt og smekklega innréttað 5 herbergja fullbúið enda raðhús með innbyggðum bílskúr. Samkvæmt fasteignaskrá er birt stærð 140 fm. og þar af er íbúðarhluti 109,6 fm. og bílskúr 30,4 fm. Húsið er vel staðsett við Elsugötu 17 í nýju hverfi í Þorlákshöfn. Húsið er er klætt að utan með álklæðningu og timbur í þakkanti . Eignin er laus við kaupsamning
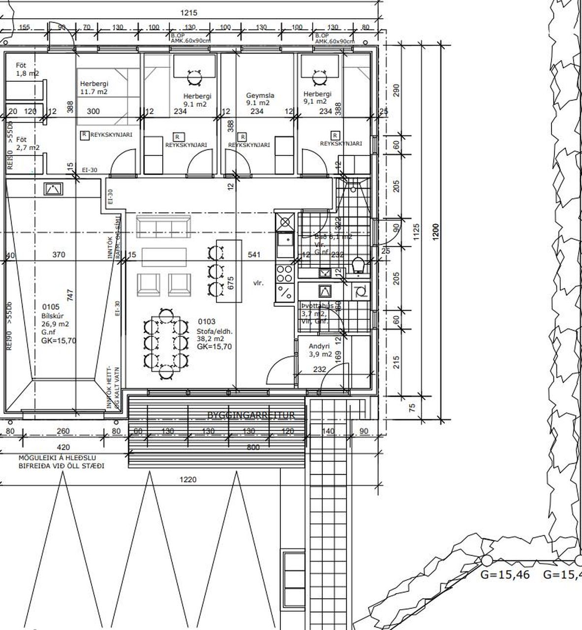
Eignin skiptist í forstofu, í alrými er eldhús og stofa / borðstofa, fjögur svefnherbergi, baðherbergi, þvottahús og bílskúr.
-Stór svefnherbergi.
-4 herbergi
-Stórt alrými.
-Innangengt inn í bílskúr.
-Sér afnotaflötur.
-Hægt að setja heitan pott.
Nánari lýsing:
Forstofa: Er með flísar á gólfi og hvítum fataskáp.
Þvottahús: Er innangengt úr forstofu og er með flísar á gólfi.
Eldhús: Í alrými er fallegt eldhús með hvítri innréttingu, eyja með góðum skúffum og borðplötu sem nær út fyrir innréttinguna sem hægt er að sitja við, innbyggður ísskápur, uppþvottavél, bakarofn í vinnuhæð, spanhelluborð, parket á gólfi.
Stofa / borðstofa: Í alrými er stór og björt stofa, parket á gólfi.
Hjónaherbergi: Rúmgott með hvítum fataskápum, parket á gólfi. Innaf hjónaherbergi er fataherbergi.
Svefnherbergi 2: Rúmgott með hvítum fataskáp, parket á gólfi.
Svefnherbergi 3: Rúmgott með hvítum fataskáp, parket á gólfi.
Svefnherbergi 4: Er teiknað sem geymsla og hægt að nýta sem herbergi. Er með hvítum fataskáp, parket á gólfi.
Baðherbergi: Með fallegri innréttingu, vaskur, ljósaspegill, upphengt salerni, walk in sturta , útgengi út á verönd, flísar á gólfi og á veggjum Þvottahús: Rúmgott, með góðri innréttingu, vinnuborð og vaskur, flísar á gólfi.
Bílskúr: Stærð 30,4fm. rafmagnstafla og hitastýringar fyrir gólfhita, flekahurð, akríl málað gólf
Gólfefni, innréttingar og tæki: Gólf eru klædd með fallegu parketi frá Byko og flísar eru frá Álfaborg. Hvítar innihurðir eru frá Birgisson. Innréttingar og tæki eru frá Ikea.
Lóð: Verður grófjöfnuð og fín möl í bílaplani, sorptunnuskýli verða komin.
Húsið: Húsið er byggt 2024 og er úr úr timbri og klætt með svartri álklæðningu og svört timbri þakkanti, járn er á þaki. Innfelld lýsing er í flestum rýmum. Gólfhiti er í húsinu og salus hitastýringarkerfi er í öllum rýmum. Veggir og loft verða klæddir með wallstopaint frá þ.þorgríms. Ídráttarrör er komið fyrir heitan pott á baklóð.
Nýr leikskóli verður opnaður í Ágúst 2025 og er staðsettur í næstu götu
Nánari upplýsingar gefur Pétur Ásgeirsson löggiltur fasteignasali í síma 893-6513 / petur@remax.is
Gjöld sem kaupandi þarf að standa straum af vegna kaupanna:
1. Stimpilgjald af kaupsamningi - 0,8%(einstaklingar) 1.6% (lögaðilar) af heildarfasteignamati.
2. Þinglýsingargjald af kaupsamningi, veðskuldabréfi, mögulegu veðleyfi o.fl. - kr. 2.700 af hverju skjali.
3. Lántökugjald lánastofnunar - almennt 45-75 þús.kr. Nánari upplýsingar á heimasíðu lánastofnana.
4. Umsýslugjald til fasteignasölu kr. 69.900 mvsk.

Dýpri greining á Húsasjá
- Verðmat fasteignar
- Sölusaga og verðþróun
- Samanburður sambærilegra eigna




















