Dísardalur 2B
01-0102 · 260 Reykjanesbæ



212 dagar á sölu
57.500.000 kr
814.448 kr/m²
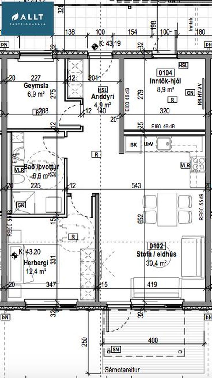
ALLT fasteignasala kynnir í einkasölu eignina Dísardalur 2B, 2 eign merkt 01-02, birt stærð 70.6 fm.
Nýja 2ja herbergja íbúð á jarðhæð í sex íbúða, tveggja hæða fjölbýli við Dísardal 2. Geymsla er innan íbúðar með glugga og er annað svefnherbergið. Eignin skiptist í forstofu, eldhús, stofu, 2 svefnherbergi, ásamt baðherberg / þvottahúsi og sameiginlegri hjólageymslu.
Eignin er tilbúin til afhendingar við kaupsamning.
Nánari upplýsingar veita:
Páll Þorbjörnsson Löggiltur fasteignasali, í síma 698-6655, tölvupóstur pall@allt.is.
Sigurjón Rúnarsson Löggiltur fasteignasali, í síma 560-5524, tölvupóstur sigurjon@allt.is
Um er að ræða nýjar fullgerðar íbúðir úr forsteyptum einingum frá Einingaverksmiðjunni. Úveggir eru með 7 cm veðurkápu. Gluggar eru frá Byko, ál/timbur. Bílastæði skv hönnunargögnum. Bílastæði eru malbikuð. Lóð tyrfð. Sérafnotarými íbúða jarðhæðar (verönd) er frágengin skv skilalýsingu.
Innréttingar vandaðar, eldhúsinnrétting með ljúflokubúnaði, bakarofni, helluborð og háfi. Borðplata úr plastefni.
Baðherbergi er flísalagt að hluta skv skilalýsingu. Salerni eru upphengt og innbyggð í vegg. Handklæðaofn og struta með flisalögðum sturtubotn.
Yfirfelldar inni-hurðar.
Gólfefni er parket á herbergjum og alrýmum. Votrými eru flísalögð.
Pípu og raflagnir skv hönnun. Milliveggir eru úr Y-Tong gipshleðslusteinum. Út og innveggir eru sandsparslaðir og fullmálaðir í ljósri málningu.
Vélrænloftræsting á baðherbergi og eldúsi. Öðru leiti er miðast við skilalýsingu á eign sé hún ekki sýnd fullkláruð.
Vertu tilbúin(n) þegar rétta eignin birtist – skráðu eignina þín í dag og tryggðu þér forskotið.
ALLT fasteignasala er staðsett á eftirfarandi stöðum:
Hafnargötu 91, 230 Reykjanesbæ - Reykjavíkurveg 66, 220 Hafnarfirði
Kostnaður kaupanda:
1. Af gjaldskyldum skjölum skal greiða 0,8% af fasteignamati ef kaupandi er einstaklingur, fyrstukaupendur 0,4% og 1,6% af fasteignamati ef kaupandi er lögaðili.
2. Þinglýsingargjald á hvert skjal er kr. 2.700.
3. Lántökugjald fer eftir verðskrá lánastofnunar hverju sinni.
4. Umsýslugjald til ALLT fasteignasölu er kr. 69.440 m/vsk.
5. Sé um nýbyggingu um að ræða greiðir kaupandi skipulagsgjald, 0,3% af brunabótamati, þegar það er lagt á.
Skoðunar- og aðgæsluskylda kaupanda:
Í lögum um fasteignakaup nr. 40/2002 er kveðið á um ríka skoðunarskyldu kaupenda á fasteignum. ALLT fasteignasala vill beina því til væntanlegs kaupanda að kynna sér ástand fasteignar vel við skoðun og fyrir tilboðsgerð. Ef þurfa þykir er ráðlagt að leita til sérfræðifróðra aðila. Forsendur söluyfirlits: Söluyfirlit þetta er samið af fasteignasala til samræmis við lög um sölu fasteigna og skipa nr. 70/2015. Upplýsingar þær sem koma fram í söluyfirliti þessu eru sóttar í opinberar skrár, frá seljanda og eftir atvikum til húsfélags. Seljandi veitir upplýsingar um eignina til samræmis við upplýsingaskyldu sína sbr. lög um fasteignakaup nr. 40/2002. Fasteignasali sannreynir að upplýsingar séu réttar með sjónskoðun á eigninni. Fasteignasali getur ekki fullyrt um ástand og eiginleika þeirra hluta fasteignar sem ekki eru aðgengilegir og sjást ekki með berum augum, eins og t.d. lagnir, dren, skólp og þak.
Vertu tilbúin(n) þegar rétta eignin birtist – Fáðu tilboð í söluferlið - Skráðu eignina þína í dag og tryggðu þér forskotið.

Dýpri greining á Húsasjá
- Verðmat fasteignar
- Sölusaga og verðþróun
- Samanburður við sambærilegar eignir
























