Lækjarvellir 15B
01-0104 · 610 Grenivík



272 dagar á sölu
43.900.000 kr
457.292 kr/m²
101 Reykjavík Fasteignasala kynnir í einkasölu: Raðhús á einni hæð í byggingu, afhending samkomulag. Vel staðsett á Grenivík.
Hlutdeildarlán í boði.
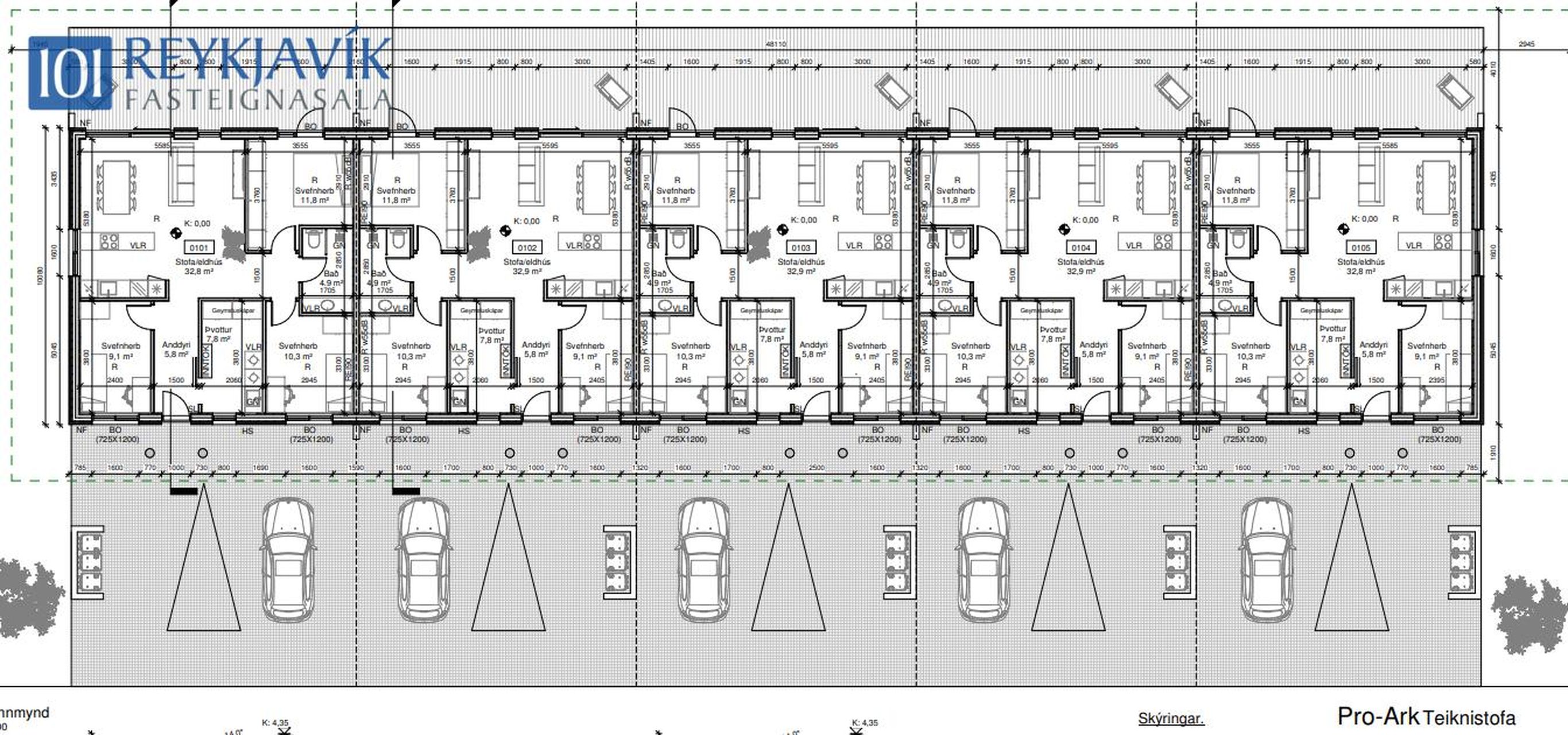
3 herbergja raðhúsaíbúðir á einni hæð. Möguleiki er á að nýta geymslu sem auka svefnherbergi.
Íbúðirnar seljast tilbúnar undir tréverk eða fullbúnar eða eftir samkomulagi.
Lóð verður skilað grófjafnaðri og hús fullbúið að utan.
Miðjuíbúðir í raðhúsi eru um 96 fm. Endaíbúðir í lengju um 98,5 fm.
Raðhús með fimm íbúðum.
Stærð lóðar: 828 fm.
Fjöldi bílastæða á lóð 2 fyrir hverja íbúð.
Samtals 10 bílastæði.
Endaíbúðir í lengju 98,5 fm Íbúðin selst á því stigi þegar búið er að einangra upp í loft og plasta, einnig verður kominn hiti í gólf.
Verð 44,9 milljónir
Miðjueignir í lengju 96,0 fm tilÍbúðin selst á því stigi þegar búið er að einangra upp í loft og plasta, einnig verður kominn hiti í gólf.
Verð 43,9 milljónir
Nánari upplýsingar veittar á skrifstofu.
Allar upplýsingar veita: Björg Kristín Sigþórsdóttir s.771-5501 bjorgkristin@101.is og Kristín Sigurey Sigurðardóttir lgf. s.820-8101 kristin@101.is
Bókið skoðun á bjorgkristin@101.is eða í síma 771-5501.
Stimpilgjald af kaupsamningi - 0.8% af fasteignamati (eða 0,4% við fyrstu-kaup kaupanda) eða 1.6% fyrir lögaðila.
1. Þinglýsingagjald af hverju skjali kr. 2.700,-
2. Gjöld sem kaupandi þarf að standa straum af vegna kaupanna:
3. Lántökugjald lánastofnunar - almennt um 1,0% af höfuðstól skuldabréfs.
4. Umsýsluþóknun til fasteignasölu kr. 89.900,- með vsk.
5. Ef um nýbyggingu er að ræða greiðir kaupandi skipulagsgjald. 0,3 af brunabótamati, þegar það er lagt á.
Í lögum um fasteignakaup nr. 40/2002 er kveðið á um ríka skoðunarskyldu kaupenda á fasteignum. 101 Reykjavík Fasteignasala hvetur væntanlega kaupendur til að kynna sér vel ástand fasteigna við skoðun og fyrir tilboðsgerð og ef þurfa þykir að leita til sérfræðinga um nánari ástandsskoðun.
Söluyfirlit er samið af fasteignasala í samræmi við ákvæði laga nr. 70/2015 um sölu fasteigna og skipa. Þær upplýsingar sem fram koma í söluyfirliti þessu eru sóttar í opinberar skrár, til seljanda sjálfs og eftir atvikum húsfélags. Seljandi veitir upplýsingar um eign í samræmi við upplýsingaskyldu laga um fasteignakaup nr. 40/2002. Fasteignasali sannreynir að þær upplýsingar séu réttar með sjónskoðun á eigninni en getur ekki fullyrt um ástand og eiginleika þeirra hluta fasteigna sem eru ekki aðgengilegir og sjást ekki berum augum, t.d. lagnir, dren, skólp, þak osfrv.

Fáðu nýja innsýn á Húsasjá
- Verðmat fasteignar
- Sölusaga og verðþróun
- Samanburður sambærilegra eigna




















