Austurbrú 18
01-0118 · 600 Akureyri



329 dagar á sölu
102.000.000 kr
971.429 kr/m²
Helgafell fasteignasala kynnir til sölu - þriggja herbergja endaíbúð með svölum til suðurs á fyrstu hæð merkt 0118 ásamt stæði merkt B14 í lokaðri bílageymslu í nýbyggingu við Austurbrú 18, Akureyri.
Arkitektar: THG arkitektar
Verktaki: JE Skjanni ehf.
Skoða heimasíðu verkefnisins við Pollinn
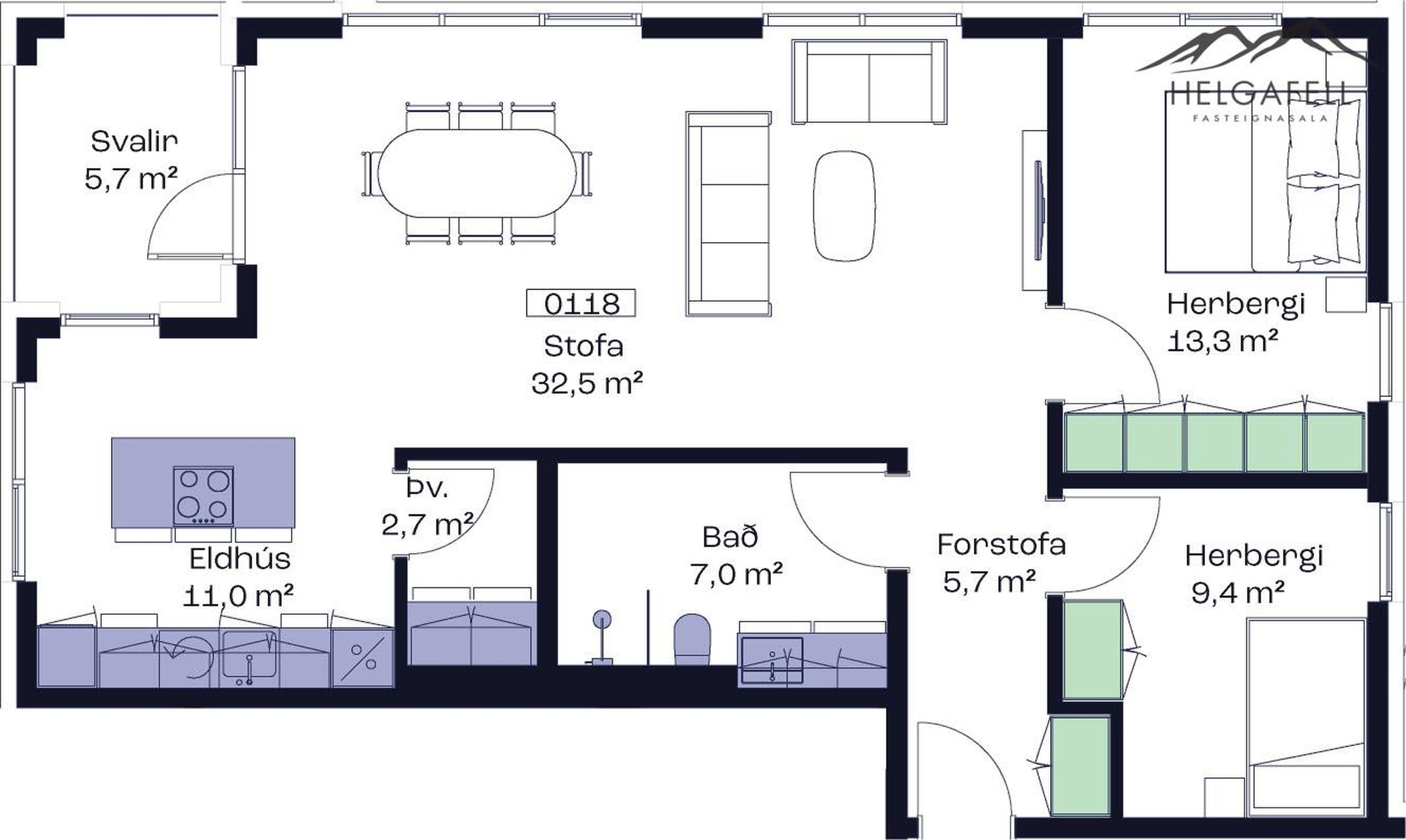
Íbúðin er samtals 105fm., þar af er geymsla 7fm.
Íbúðin:
Komið er inn í forstofu með skáp.
Barnaherbergi á hægri hönd með skáp.
Baðherbergi á vinstri hönd sem er flísalagt í hólf og gólf. Sturta með glerskili. Falleg innrétting frá Parka, kvarts steinn á borðplötu. Upphengt salerni.
Hjónaherbergi með góðum skáp.
Stofa/borðstofa er björt með glugga til vesturs. Útgengt út á skjólgóðar svalir til suðurs.
Eldhús með eyju, kvarts steinn á borðplötu og span helluborð. Skúffur og skápar í eldhúsinu eru allar með ljúflokum. Eldhúsinnrétting með kvarts stein, bakaraofn í vinnuhæð, innfelldur vaskur. Innfelld lýsing frá Lumex.
Þvotthús inn af eldhúsi með skáp fyrir þvottavél og þurrkara, borðplata úr kvarts stein.
Stæði í lokaðri bílageymslu.
Geymsla í sameign.
Allar innréttingar, innihurðir, skápar og Electrolux eldhústæki eru frá Parka. Blöndunar- og hreinlætistæki eru frá Tengi.
Íbúðinni er skilað fullbúinni en án gólfefna.
Sameign er með glæsilegra móti.
Komið er inn í rúmgott anddyri. Stórar ljósakrónur og lýsing frá Lumex gefa fallega birtu.
Flísar á gólfi frá kjallara og upp á pall fyrstu hæðar. Frá fyrstu hæð eru stigagangarnir teppalagðir.
Innangengt úr hverjum stigagangi niður í lokaða bílageymslu og þaðan inn á hótelið sem verður opnað 2026.
Inngangur um bílageymslu í hótelið er einungis fyrir íbúðareigendur og hótelgesti.
Lokuð hjóla- og vagnageymsla í bílageymslu.
Eigninni er skilað skv. skilalýsingu verktaka.
Kaupandi greiðir skipulagsgjald 0,3% af brunabótamati þegar það leggst á eignina.
Fyrir nánari upplýsingar hafið samband við:
Helgafell fasteignasala - sími 566 0000 eða einn af fasteignasölum Helgafells.----------------------------------------------------------
Heimasíða Helgafells fasteignasölu
Facebook síða Helgafells
- Hafðu samband og við gerum söluverðmat á eign þinni, þér að kostnaðarlausu -
Gjöld sem kaupandi þarf að standa straum af vegna kaupa á fasteign:
1. Stimpilgjald af kaupsamningi - 0,8% af fasteignamati fyrir einstaklinga (0,4% fyrir fyrstu kaupendur) og 1,6% fyrir lögaðila.
2. Þinglýsingargjald af kaupsamningi, veðskuldabréfi, mögulegu veðleyfi o.fl. - 3.800 kr. af hverju skjali.
3. Lántökugjald lánastofnunar - almennt í kringum 50þ., oft lægra eða ekkert lántökugjald fyrir fyrstu kaup. Nánari upplýsingar á heimasíðum lánastofnana.
4. Þjónustusamningur milli kaupanda og fasteignasölu - Kr. 92.380,- m/vsk.
Helgafell fasteignasala bendir kaupendum á ríka skoðunarskyldu sem kveðið er á í lögum um fasteignakaup nr.40/2002. Skorað er á kaupendur að kynna sér vandlega ástand fasteigna og nýta til þess aðstoð sérfræðinga. Sömuleiðis er bent á upplýsingaskyldu seljanda samanber 26.gr. Laga nr.40/2002 um fasteignakaup og 25.gr. laga nr.26/1994 um fjöleignarhús. Seljanda er bent á að kynna sér tilvitnaðar lagagreinar.

Fáðu nýja innsýn á Húsasjá
- Verðmat fasteignar
- Sölusaga og verðþróun
- Samanburður sambærilegra eigna
