Hrafnaborg 3
01-0105 · 190 Vogum



241 dagar á sölu
88.800.000 kr
584.595 kr/m²
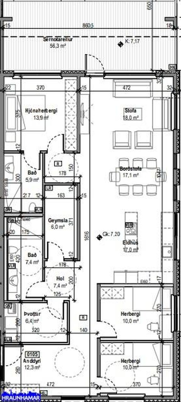
Hraunhamar fasteignasala kynna í einkasölu fallega og vel skipulagða 151,9 fm 4 herbergja íbúð með stórum og sólríkum sérafnotareit sem snýr í suður merkt 0105 í nýbyggingu í Hrafnaborg 3 í Vogum á Vatnsleysuströnd.
Eignin veður afhent fullbúin með gólfefnum. Húsið er 10 íbúðahús með ráðgerðum 20 bílastæðum og rafhleðslustöðvum við hvert stæði. Lóð og bílastæði verða frágengin.
Grænabyggð er einstaklega vel staðsett hverfi sem mun byggjast upp á næstu árum í fallegu, fjölskylduvænu og rólegu umhverfi við sjávarsíðuna. Hverfið er tengt núverandi byggð og því er stutt í alla helstu þjónustu. Stutt er í grunn og leikskóla og er áformað síðar að reisa grunn og leikskóla í hverfinu. Einnig er stutt í Sundlaug og íþróttasvæði Þróttar í Vogum.
Frágangur utanhúss: Útveggir eru steyptir með sterkum og vönduðum Bewi einagrunarplastkubbum þ.a útveggir eru eingangraðir að utan og innan sem bæði lækkar kyndingarkostnað og íbúðin heldur betur hita. Baðherbergin verða með flísum á gólfum og veggjum og á gólfi í þvottahúsi. Þak verður rakavarið og með 200 mm einangrun með PVC dúk yfir sem verður festu með harpaðri þakmöl. Vatnshalli verður að niðurföllum og eldhústæki frá AEG.
Frágangur innanhúss: gangur innanhúss verður þannig að milliveggir verða með tvöföldri gifsklæðningu með einangrun á milli nátturulegri loftun og í gluggalausum rýmum er loftræsting. Vélknúnin loftræsting í eldhúsi og baðherbergjum. Íbúðirnar skilast allar með innréttingum frá VOKE III og eldunartæki frá AEG og Electrolux. Á gólfum eru harðparket frá Agli Árnasyni en baðherbergi og þvottahús skilast með flísum.
Skipulag íbúðar: Anddyri, stofa og eldhús í alrými, hjónaherbergi með sérbaðherbergi, 2 svefnherbergi, baðherbergi, þvottahús og geymsla.
Afhending við kaupsamning
Kaupendur greiða skipulagsgjald 0,3% af brunabótamati þegar það liggur fyrir.
Hönnun: KRark Kristinn Ragnarsson arkitekt.
Byggingaraðili: Icework ehf.
Glódís Helgadóttir, löggiltur fasteignasali, s. 659-0510, glodis@hraunhamar.is
Helgi Jón Harðarson, sölustjóri, s. 893-2233, helgi@hraunhamar.is
Gjöld sem kaupandi þarf að standa straum af vegna kaupanna:
1. Stimpilgjald af kaupsamningi - 0,8%(einstaklingar) 1.6% (lögaðilar) af heildarfasteignamati.
2. Stimpilgjald af veðskuldabréfi - 0% af höfuðstól skuldabréfs.
3. Þinglýsingargjald af kaupsamningi, veðskuldabréfi, mögulegu veðleyfi o.fl. - kr. 2.700 af hverju skjali.
4. Lántökugjald lánastofnunar - almennt 0,5 - 1,0% af höfuðstól skuldabréfs. Nánari upplýsingar á t.d. heimasíðu lánastofnana.
5. Umsýslugjald til fasteignasölu kr.68.200.-m.vsk.
Hraunhamar er elsta fasteignasala Hafnarfjarðar, stofnuð 1983.
Hraunhamar, í fararbroddi í 41 ár. – Hraunhamar.is
Smelltu hér til að fá frítt söluverðmat.

Dýpri greining á Húsasjá
- Verðmat fasteignar
- Sölusaga og verðþróun
- Samanburður við sambærilegar eignir


























