Fríðugata 7
01-0102 · 815 Þorlákshöfn



56 dagar á sölu
79.900.000 kr
562.676 kr/m²
Pétur Ásgeirsson löggiltur fasteignasali hjá RE/MAX fasteignasölu kynnir : Einkar fallegt 4 herbergja parhús með bílskúr á einni hæð með sérafnotareit til suðurs við Fríðugötu 7 í nýju hverfi í Þorlákshöfn. Búið að setja mulning í planið á framan og þökuleggja lóðina, steypt ruslatunnuskýli á framanverðu.
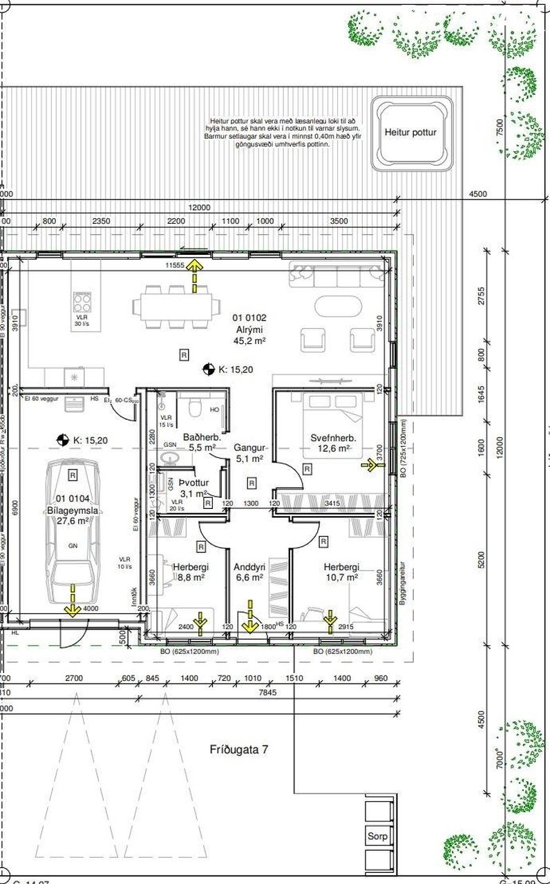
Eignin er 142 fm þar af er bílskúr 31,2 fm samkvæmt Þjóðskrá Íslands. Íbúðin samanstendur af þremur svefnherbergjum, forstofu, stofu, borðstofu, eldhúsi, þvottahúsi og baðherbergi.
Húsið er byggt úr timbri á steyptri plötu og klætt að utan með lituðu áli. Þak er klætt með aluzink.
Frábær staðsetning í nýju hverfi Þorlákshafnar þar sem stutt er í alla helstu þjónustu, skóla og leikskóla, íþróttaaðstöðu og falleg útivistarsvæði.
-Það er nýbúið að byggja nýjan og glæsilegan leikskóla 100m frá húsinu.
-Stór svefnherbergi.
-Stórt alrými.
-Innangengt inn í bílskúr.
-Sér afnotaflötur.
-Hægt að setja heitan pott.
-Extra lofthæð 2.8 m
Nánari lýsing:
Forstofa: Er með parket á gólfi og hvítum fataskáp.
Eldhús: Er með fallegri innréttingu með miklu skpápaplássi , eyja með góðum skúffum og borðplötu sem nær út fyrir innréttinguna sem hægt er að sitja við, innbyggður ísskápur, uppþvottavél, bakarofn í vinnuhæð, spanhelluborð, parket á gólfi.
Stofa / borðstofa: Parket á gólfi og er mjög rúmgóð með útgengi út í garð.
Hjónaherbergi: Parket á gólfi og stórum fataskáp.
Svefnherbergi 2: Rúmgott með hvítum fataskáp, parket á gólfi.
Svefnherbergi 3: Rúmgott með hvítum fataskáp, parket á gólfi.
Baðherbergi:Flísar á gólfi og og fibo baðplötur á veggjum. Falleg innrétting ljósaspegill, upphengt salerni, walk in sturta með dökku gleri.
Þvottahús: Flísar á gólfi og með fallegri innréttingu og miklu skápaplássi, þvottavél og þurrkari í vinnuhæð.
Bílskúr: Er mjög rúmgóður, stærð 31,2fm.
Nýr leikskóli verður opnaður í Ágúst 2025 og er staðsettur í næstu götu
Nánari upplýsingar gefur Pétur Ásgeirsson löggiltur fasteignasali í síma 893-6513 / petur@remax.is
Gjöld sem kaupandi þarf að standa straum af vegna kaupanna:
1. Stimpilgjald af kaupsamningi - 0,8%(einstaklingar) 1.6% (lögaðilar) af heildarfasteignamati.
2. Þinglýsingargjald af kaupsamningi, veðskuldabréfi, mögulegu veðleyfi o.fl. - kr. 2.700 af hverju skjali.
3. Lántökugjald lánastofnunar - almennt 45-75 þús.kr. Nánari upplýsingar á heimasíðu lánastofnana.
4. Umsýslugjald til fasteignasölu kr. 69.900 mvsk.

Fáðu nýja innsýn á Húsasjá
- Verðmat fasteignar
- Sölusaga og verðþróun
- Samanburður sambærilegra eigna




















