Hringhamar 8
02-0205 · 221 Hafnarfirði



132 dagar á sölu
59.900.000 kr
878.299 kr/m²
Miklaborg kynnir: Vel skipulagðar og vistvænar 40-155 fm íbúðir í Hamranes hverfinu í Hafnarfirði. Flestar íbúðir falla undir Hlutdeildarlán hjá HMS.
- Burðarvirki hússins er CLT burðarkerfi frá Element, sem er krosslímt gegnheilt timbur og er sagður heilsueflandi og umhverfisbætandi byggingarmáti.
- ÍÍbúðirnar munu vera BREEAM vottaðar og stefnt að “Excellent” einkunn. Væri það í fyrsta sinn á Íslandi sem íbúðarbygging næði þeirri einkunn!
- Sérstæð loftræsting frá Swegon fyrir hverja íbúð, sem tryggir loftgæði og innivist. Gólfkerfi frá Granab í Svíþjóð sem tryggir góða hljóðvist.
- Innréttingar frá VOKE3 og tæki frá Electrolux. Hágæða baðherbergi eru forframleidd og koma frá Green Box í Danmörku.
- Lagnaleiðir lagðar að bílastæðum fyrir rafhleðslu, gert ráð fyrir að hægt sé að leggja að stæðum.
Verð frá: 45 milljónum.
Nánari upplýsingar veitir Ingimundur Ingimundarson löggiltur fasteignasali í síma 867-4540 eða ingimundur@miklaborg.is
Nánari upplýsingar er að finna hér á heimasíðu verkefnisins
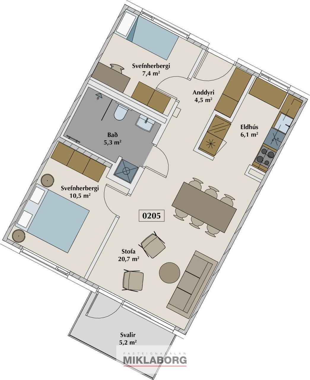
NÁNARI LÝSING: Björt og vel skipulögð 68,2 fm 3ja herbergja íbúð á 2.hæð, þar af geymsla 3,7 fm í kjallara. Komið inn í anddyri með skápum og þaðan gengið inn í alrými. Eldhús er með fallegri innréttingu frá Voke3, sem skilast með innbyggðum ísskáp, uppþvottavél og örbylgjuofn. Eldhús er opið inn í bjarta stofu. Útgengt er á suður svalir. Baðherbergi er með góðri innréttingu, upphengdu salerni og þröskuldslaus sturtuklefi. Tengi fyrir þvottavél á baðherbergi. Tvö góð svefnherbergi með skápum.
Íbúðin afhendist fullbúin en án gólfefna.
Nánari upplýsingar veitir:
Ingimundur Ingimundarson löggiltur fasteignasali í síma 867-4540 eða ingimundur@miklaborg.is
Stefán Jóhann Stefánsson löggiltur fasteignasali í síma 659-2634 eða stefan@miklaborg.is
Kjartan Ísak Guðmundsson löggiltur fasteignasali í síma 663-4392 eða kjartan@miklaborg.is
Bára Gunnlaugsdóttir löggiltur fasteignasali í síma 899-8809 eða bara@miklaborg.is

Fáðu nýja innsýn á Húsasjá
- Verðmat fasteignar
- Sölusaga og verðþróun
- Samanburður sambærilegra eigna




