Sólbakki 2D
01-0102 · 740 Neskaupstað



160 dagar á sölu
50.750.000 kr
650.641 kr/m²
BYR fasteignasala kynnir í einkasölu SÓLBAKKI 2D ÍBÚÐ 102, Neskaupstað. Ný þriggja herbergja íbúð á NEÐRI HÆÐ, TIL AFHENDINGAR VIÐ KAUSAMNING.
Sér inngangur, *** Möguleiki á að kaupa bílskúr, sem mun rísa beint á móti húsinu*** Smellið hér fyrir staðsetningu.
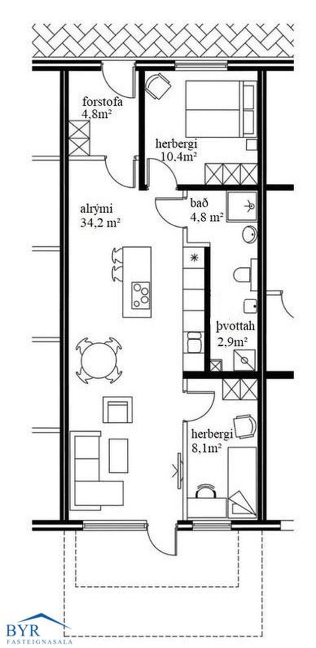
ÍBÚÐ 102 NEÐRI HÆÐ. Íbúðin er 78,0 m², þar af geymsla 3,6 m² samkvæmt skráningu HMS. Sér inngangur inn í íbúðina.
Skipulag íbúðar: Forstofa, alrými með stofu, borðstofu og eldhúsi, tvö herbergi, baðherbergi og þvottahús.
Í sameign: Sér geymsla, hjóla- og vagnageymsla.
Allar nánari upplýsignar hjá BYR fasteignasala | byr@byrfasteignasala.is | 471 2858 |
Nánari lýsing:
Forstofa með þreföldum fataskáp, flísar á gólfi.
Alrými með stofu, borðstofu og eldhúsi. Útgengt er frá stofu á steypta verönd með skjólveggjum.
Eldhús með Brúnás innréttingu, eyja. Spanhelluborð á eyju, ofn í vinnuhæð og stálvaskur með einnar handar blöndunartækjum.
Gert er ráð fyrir innbyggðri uppþvottavél í innréttingu, framhlið fylgir með, op fyrir ísskáp er 186 cm á hæð.
Ofan við eyju er tenging fyrir háf og ljós (fylgir ekki).
Herbergi I, hjónaherbergi, fimmfaldur fataskápur.
Herbergi II, tvöfaldur fataskápur.
Baðherbergi með flísum á gólfi, sturta, vaskinnrétting og speglaskápur, standandi salerni. Veggir sturtuhorns baðherbergis er flísalagt.
Þvottahús er inn af baðherbergi, pláss fyrir tvær vélar í innréttingu og vaskinnrétting.
Sér geymsla ásamt sameiginlegri vagna- og hjólageymslu er á neðri hæð hússins.
Allar innréttingar eru frá Brúnas með eikaráferð, efri skápar í eldhúsi eru hvítir að lit. Speglaskápur á baðherbergi er frá Ikea.
Íbúðin er kynnt með rafmagnsofnum. Í forstofu og baðherbergi er rafmagnsgólfhiti.
Veggir íbúðar eru málaðar í hvítum lit. Hljóðdúkur í loftum, nema á baðherbergi.
Reykskynjarar, slökkvitæki og læstur lyfjaskápur fylgja íbúðinni.
Sólbakki 2 er 11 íbúða tvílyft hús. Útveggir eru forsteyptir. Gólfplötur eru staðsteyptar.
Þak er hefðbundið uppstólað risþak, með báruklæðningu. Útihurðar, gluggar og svalahurðar eru timbur/ál með tvöföldu K-gleri.
Gangstétt er hellulögð, gróðurbeð grófjöfnuð án gróðurs, aðrir hlutar lóðar eru þökulagðir. Stétt við inngang að íbúðum á neðri hæð er steypt.
Lóð er sameiginleg 1541,6 m² leigulóð í eigu Fjarðarbyggðar.
Skráning eignar samkvæmt fasteignayfirliti HMS:
Fasteignanúmer 253-0530. Sólbakki 2D- 102.
Stærð: Íbúð 74.4 m². Geymsla 3.6 m² Samtals 78.0 m².
Brunabótamat: 48.400.000 kr.
Fasteignamat: 36.100.000 kr.
Byggingarár: 2024.
Byggingarefni: Forsteypt.
ALLAR NÁNARI UPPLÝSINGAR Á SKRIFSTOFU s. 471-2858 | byr@byrfasteignasala.is
Elín Káradóttir, löggiltur fasteignasali og eigandi – elin@byrfasteignasala.is
Hrönn Bjargar Harðardóttir, löggiltur fasteignasali / stílisti - hronn@byrfasteignasala.is
Opið alla virka daga milli kl. 09:00-16:00.
Um skoðunarskyldu:
Lög um fasteignakaup nr. 40/2002 er kveða á um ríka skoðunarskyldu kaupenda á fasteignum.
Byr fasteignasala skorar því á væntanlega kaupendur að kynna sér vel ástand fasteigna fyrir kauptilboðsgerð og leita til þar til bærra sérfræðinga um nánari skoðun.
Gjöld sem kaupandi þarf að greiða af vegna kaupanna:
1. Stimpilgjald af kaupsamningi - 0.8% af heildarfasteignamati fyrir einstaklinga / 1.6% fyrir lögaðila
2. Þinglýsingargjald af kaupsamningi, veðskuldabréfi, o.fl. - kr. 3.800 af hverju skjali.
3. Lántökugjald lánastofnunar – sjá gjaldskrá viðkomandi lánveitanda.
4. Umsýslugjald til fasteignasölu kr. 69.900 m.vsk.
5. Ef um nýbyggingu er að ræða greiðir kaupandi skipulagsgjald, 0,3% af brunabótamáti, þegar það er lagt á.
www.byrfasteign.is | Miðvangur 2-4, 700 Egilsstaðir | Byr fasteignasala

Fáðu nýja innsýn á Húsasjá
- Verðmat fasteignar
- Sölusaga og verðþróun
- Samanburður sambærilegra eigna













