Álhella 11E
01-0105 · 221 Hafnarfirði



516 dagar á sölu
119.000.000 kr
385.737 kr/m²
RE/MAX, Bjarný Björg Arnórsdóttir Lgf & Sveinn Gíslason Lgf kynna:
Vandað og fullbúið atvinnuhúsnæði á góðum stað í Hafnafirði. Húsið er steypt og er klætt samlokueiningum á útveggjum og þaki. Húsið skiptist í 10 séreiningabil og eitt sameiginlegt inntaksrými. Bilin eru skráð sem geymsluhús með möguleika á að breyta í atvinnuhúsnæði.
Samkvæmt deiluskipulagi er gert ráð fyrir grófum iðnaði á svæðinu.
Nánari upplýsingar gefur :
Bjarný Björg Arnórsdóttir löggiltur fasteignasali í síma 694-2526 / bjarny@remax.is
Sveinn Gíslason lögmaður/löggiltur fasteignasali sími 859-5559 / sveinn@remax.is
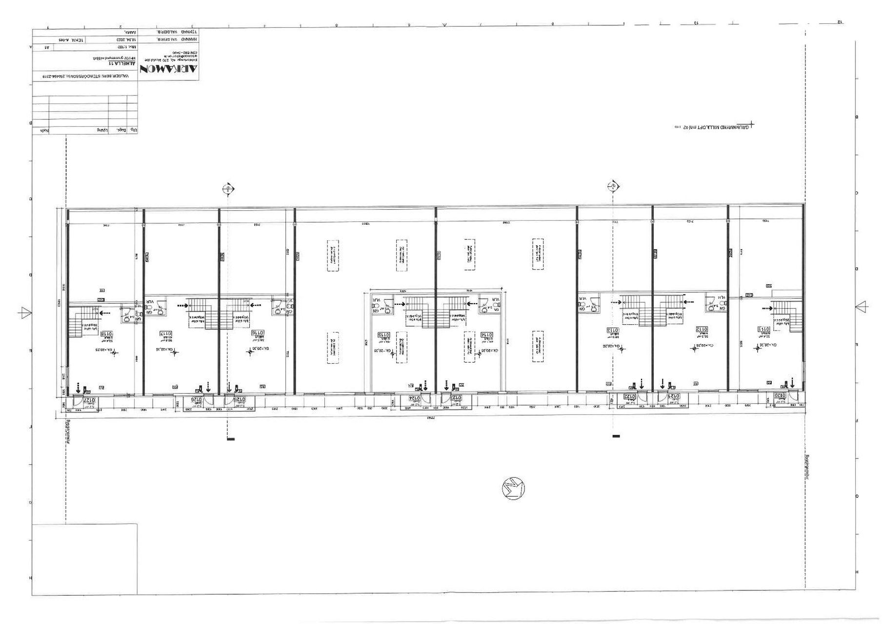
Bilin eru sértaklega breið með mikilli lofthæð og hönnuð með það í huga að stórar vinnuvélar komist inn. Hver eining hefur skilgreint séreignasvæði auk sameignar á lóð skv. byggingalýsingu í samþykktum teikningum. Bilin eru með mikilli lofthæð, 7,5m í mæni, 18,5 m djúpt og 7,150m breitt (stærri bilini) 9m djúpt og 7,150m breitt (minni bilin). Innkeyrsluhurðar eru 5 x 5 m á hæð og 4 x 4m með gönguhurð að framan.
Nánari lýsing:
- Bilið er 308,5 fm. Grunnflötur er 254,4 fm og milliloft 54,1 fm.
- Eignina er hægt að fá afhenta án millilofts ef kaupandi óskar eftir því í samráði við byggingaraðila.
- Húsið er uppsteypt klætt með samlokueiningum frá Límtré Vírnet.
- Þak er límtrésþak klætt samlokueiningum frá Límtré/Vírnet.
- Gluggar og gönguhurðir eru timbur/álgluggar frá Gluggatækni. Gluggar eru glerjaðir með tvöföldu verksmiðjugleri.(K-gler)
- Aksturshurðir er samlokuhurðir frá Límtré/Vírnet. Stærð innkeyrsluhurða er 5x5 m og 4x4 m á hæð.
- Svalir eru steyptar með slípuðu yfirborði. Svalahandrið úr galvanhúðuðu stáli verður uppkomið og frágengið.
- Olíugildra verður fullfrágengin og tengd fráveitukerfi bæjarins.
- Lóð verður skilað jafnaðri og malbikaðri, með kantsteini og gróðri. Niðurföll í lóð verða fullfrágengin og tengd fráveitu bæjarins. Athygli er vakin á að lóðin er að hluta til í séreign hvers eignarhluta og að hluta til sameign allra, s.b.r. eignaskiptasamning.
- Rafmagntafla í séreign verður komin en raflagnir að öðru ekki. Þó verður raflögn komin í salerni ásamt ljósakúpli. Lágmarks vinnulýsing í aðalrými. Rafmagnstafla skilast fullfrágengin skv. Teikningu og tenglar við töflu fyrir 32A,16A og tveir 13A.
- Innihurðir eru yfirfeldar eikarhurðir frá Birgisson (eða samb.), uppkomnar og fullfrágengnar.
- Stigi milli hæða er léttur stigi úr límtré og stáli.
- Samkvæmt deiluskipulagi þá má vera með iðnað í flokki B3 í Álhellu 11.
- Sér gámastæði fylgir bilinu.
Sjá nánar skilalýsingu byggingaraðila.
Skipulagsgjald:
Kaupandi greiðir skipulagsgjald þegar það verður lagt á. Skipulagsgjaldið er 0,3% af væntanlegu brunabótamati. ATH. VSK – kvöð er á húsnæðinu.
Gjöld sem kaupandi þarf að standa straum af vegna kaupanna:
1. Stimpilgjald af kaupsamningi - 0,8% af heildarfasteignamati hjá einstaklingum. (Sé um fyrstu kaup að ræða er stimpilgjald af kaupsamningi 0,4%)
2. Stimpilgjald af kaupsamningi - 1,6% af heildarfasteignamati hjá lögaðilum.
3. Þinglýsingargjald af kaupsamningi, veðskuldabréfi, veðleyfi o.fl. 2.700 kr. af hverju skjali.
4. Lántökugjald lánastofnunar - sjá heimasíður lánastofnanna.
5. Umsýslugjald til fasteignasölu 69.900. kr. m.vsk.
Í lögum um fasteignakaup nr. 40/2002 er kveðið á um ríka skoðunarskyldu kaupenda á fasteignum. Vill RE/MAX því skora á væntanlega kaupendur að kynna sér vel ástand fasteigna fyrir kauptilboðsgerð og leita til þar til bærra sérfræðinga um nánari skoðun.

Dýpri greining á Húsasjá
- Verðmat fasteignar
- Sölusaga og verðþróun
- Samanburður við sambærilegar eignir













