Stekkholt 59
Lóð · 210 Garðabæ



10 dagar á sölu
164.900.000 kr
764.133 kr/m²
Betri Stofan og Guðbjörg Guðmundsdóttir löggiltur fasteignasali kynna: Einstaklega vel skipulagt raðhús með innbyggðum bílskúr, við Stekkholt 59, í Hnoðraholti, Garðabæ. Eignin er skráð 215,8 fm. og skiptist í þrjú svefnherbergi, sjónvarpshol, 2 baðherbergi, stofu, borðstofu, eldhús, þvottahús, anddyri og bílskúr. Frá stofu er gengið út á góðar suðaustur svalir.
Eignin skilast tilbúin til innréttinga að innan skv. skilalýsingu. Að utan skilast húsin frágengin, einangruð að utan og klædd álklæðningu, Velfaq ál/tré gluggar.
Lóð skilast grófjöfnuð samkvæmt skilalýsingu.
Nálgist skilalýsingu og nánari upplýsingar hér:
Guðbjörg Guðmundsdóttir í síma 8995533 gudbjorg@betristofan.is
Nánari lýsing:
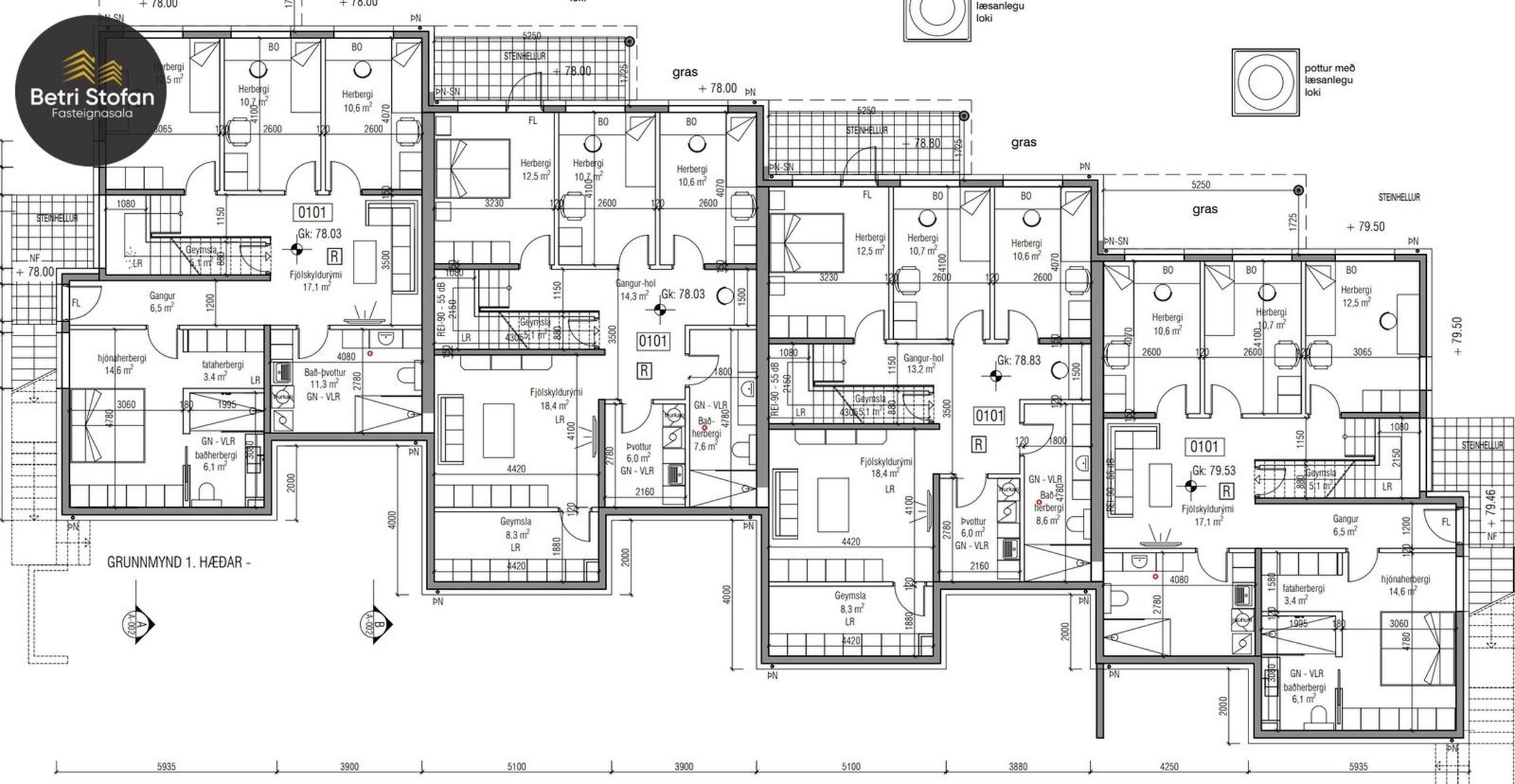
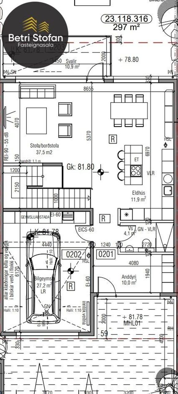
Stekkholt 59 er fallegt raðhús í nýrri fjögurra húsa raðhúsalengju sem nú er í byggingu í Hnoðraholti Garðabæ. Frá götu er aðkoma að efri hæð hússins þar er innbyggður bílskúr, stórt anddyri, stofa, eldhús, borðstofa og baðherbergi. Úr stofu er gengið út á góðar svalir til suðausturs.
Á neðri hæð er hjónaherbergi, tvö rúmgóð barnaherbergi, yfir 10fm., sjónvarpshol, rúmgott baðherbergi, þvottahús og geymsla.
Um er ræða glæsileg og vel skipulögð raðhús í nýju og skemmtilegu hverfi í Garðabæ. Hnoðraholt er vel staðsett nýtt hverfi þaðan sem stutt er í alla helstu þjónustu og gott aðgengi er að útivistasvæðum Garðabæjar svo sem heiðmörk, Vífilstaðavatni og golfvelli GKG.
Nánari upplýsingar veitir Guðbjörg Guðmundsdóttir , í síma 8995533, tölvupóstur gudbjorg@betristofan.is.
Gjöld sem kaupandi þarf að standa straum af ef að kaupum verður:
1. Stimpilgjald af fasteignamati fasteignar er 0.8%, en 0,4% fyrir fyrstu kaup og 1,6% fyrir lögaðila.
2. Þinglýsingargjald: kaupsamningi, skuldabréfi, veðleyfi, afsali o.s.frv. er kr. 3.800 af hverju skjali.
3. Lántökukostnaður samkvæmt verðskrá viðkomandi lánastofnunar.
4. Umsýslugjald til fasteignasölu skv. gjaldskrá.
Skoðunarskylda kaupanda:
Í lögum um fasteignakaup nr. 40/2002 er kveðið á um ríka skoðunarskyldu kaupenda á fasteignum. Betri Stofan fasteignasala bendir væntanlegum kaupendum á að kynna sér vel ástand fasteigna við skoðun og fyrir tilboðsgerð og ef þurfa þykir að leita til sérfræðinga um nánari ástandsskoðun.

Dýpri greining á Húsasjá
- Verðmat fasteignar
- Sölusaga og verðþróun
- Samanburður sambærilegra eigna














