Dynskálar 51
01-0107 · 850 Hellu



476 dagar á sölu
39.800.000 kr
275.433 kr/m²
Loftur Erlingsson löggiltur fasteignasali s. 896 9565 og Hús fasteignasala kynna:
-- Fjárfestingartækifæri á Hellu. --
Tvö nýleg 144fm iðnaðarbil í útleigu við Dynskála 51 á Hellu.
Í öðru er starfrækt þvottahús en vélaverkstæði í hinu. Góðar leigutekjur.
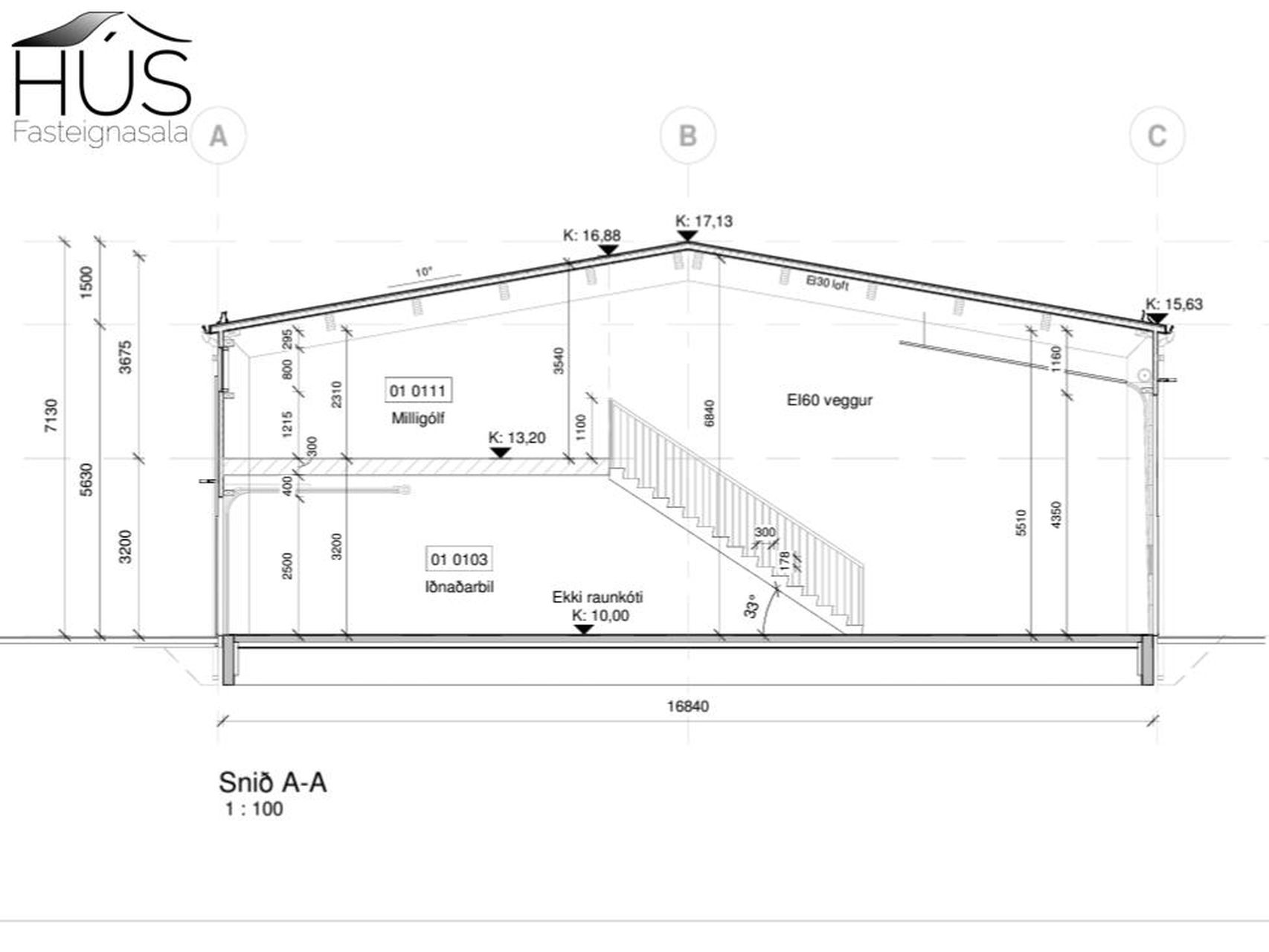
Innkeyrslu- og gönguhurðir á báðum hliðum, gólfflötur í hverju bili er 102fm og á millilofti 42,5fm, samtals 144,5fm. Innanmál gólfflatar samkvæmt teikingum 16,81m x 5,83m.
Stærri innkeyrsludyr eru 4,35m á hæð og 3,5m á breidd, þær minni 2,5m á hæð og 3,0m á breidd.
Mænishæð er 7,13 frá gólfplötu í efri brún mænis. Við útvegg er lofthæð 5,63m frá gólfplötu upp á efri brún þaks.
Milligólfið er í 3,20m hæð frá gólfplötu, lofthæð á millilofti um 2,3m-3,5m.
Uppbygging húss: Húsið er byggt ofan á steypta sökkla. Burðarvirki er límtré. Allir útveggir og þak hússins eru klædd með steinullareiningum, svo og milliveggir. Gólfplata vélslípuð. Neysluvatnslagnir eru lagðar undir gólfplötu.
Innkeyrsluhurðir í góðum gæðum og með rafmótoropnun. Gönguhurðir og gluggar eru úr viðhaldsfríu PVC plasti með tvöföldu einangrunargleri. Gólfniðurföll er fyrir innan allar innkeyrsluhurðir og frárennslisstútar fyrir salerni og skolvask innar.
Rafmagn: Aðaltafla með mælum fyrir hverja starfseiningu er staðsett í inntaks-/tæknirými við norðurgafl hússins. Greinatafla í hverju bili fyrir sig, með einum þriggja fasa tengli við hliðina og gert er ráð fyrir tengibúnaði vegna hleðslu rafbíla í töflu. Full lýsing (LED) og hitablásari til upphitunar.
Virðisaukaskattskvöð að upphæð rúmlega 4,0millj.kr. hvílir á hvoru bili fyrir sig sem kaupandi yfirtekur.
Lóðin er malbikuð, bílastæði beggja vegna hússins og aðkoman frá Dynskálum.
Loftur Erlingsson löggiltur fasteignasali veitir allar nánari upplýsingar og sýnir eignina.
S. 896 9565 loftur@husfasteign.is
Gjöld sem kaupandi þarf að standa straum að vegna kaupanna:
1. Stimpilgjöld af kaupsamningi - 0,8 % af heildarfasteignamati, (0,4% fyrstu kaup) lögaðilar 1,6%
2. Þinglýsingargjald af kaupsamningi, veðskuldabréfi, mögulegu veðleyfi o.fl. kr. 3.800.- af hverju skjali.
3. Lántökugjald lánastofnunnar. Nánari upplýsingar t.d. á heimasíðum lánastofnanna.
4. Umsýslugjald til fasteignasölu sbr. kauptilboð.
5. Skipulagsgjald að lokinni lokaúttekt, 0,3% af brunabótamati.
Skoðunarskylda: Í lögum um fasteignakaup nr. 40/2002 er kveðið á um ríka skoðunarskyldu kaupenda á fasteignum. Vill Hús fasteignasala því skora á væntanlega kaupendur að kynna sér vel ástand fasteigna fyrir kauptilboðsgerð og leita jafnvel til þar til bærra sérfræðinga um nánari skoðun.

Fáðu nýja innsýn á Húsasjá
- Verðmat fasteignar
- Sölusaga og verðþróun
- Samanburður sambærilegra eigna










