Hrísmói 2
01-0101 · 603 Akureyri



81 dagar á sölu
138.500.000 kr
770.300 kr/m²
Fasteignasalan Byggð 464-9955 - Einkasala
Hrísmói 2 - Nýbygging
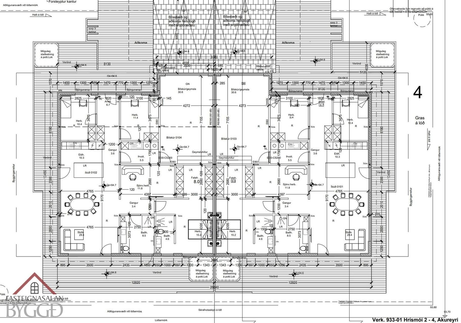
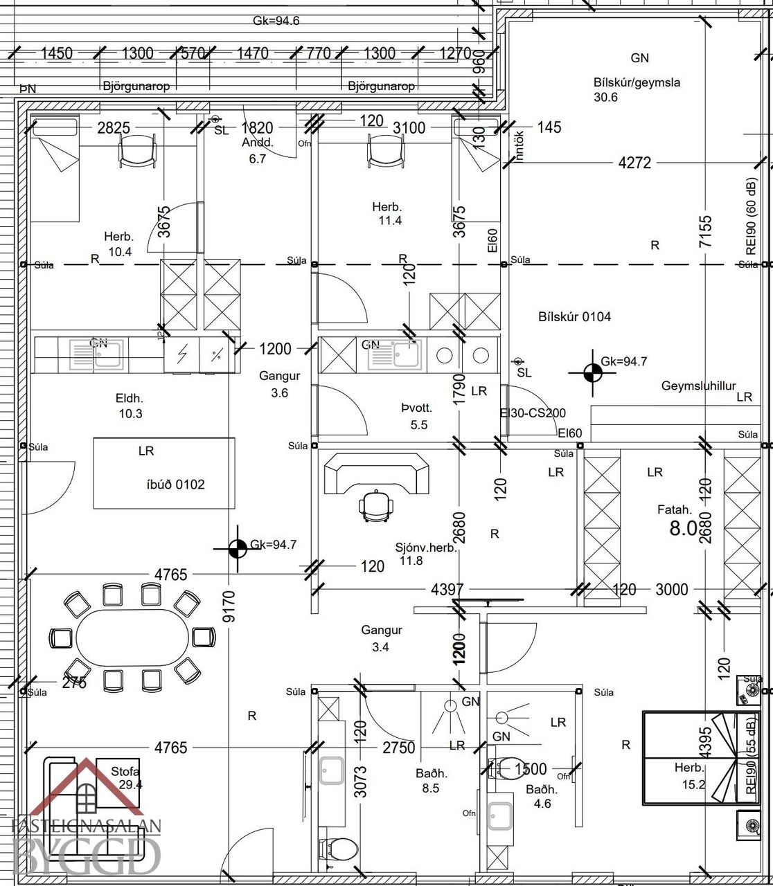
Virkilega vel skipulögð fjögurra herbergja parhúsíbúð á einni hæð með tveimur baðherbergjum og sambyggðum bílskúr í nýju Móahverfi á Akureyri. Eignin er samtals 179,8 fm. þar af er bílskúr 33,7 fm. og gert ráð fyrir tveimur bílastæðum fyrir framan hús.
**Möguleiki er að kaupa eignina tilbúna undir innréttingar **
Eignin skiptist í anddyri, þrjú svefnherbergi, tvö baðherbergi, fataherbergi, sjónvarpsherbergi, þvottahús, stofu og eldhús auk bílskúrs.
Komið er inn í anddyri með fataskápum á gangi. Tvö af þremur svefnherbergjum eru við anddyri, þar er gert ráð fyrir skápum. Eldhús og stofa eru í opnu rými og gert ráð fyrir eyju í eldhúsi og útgengt út á verönd um eldhús og stofu. Sjónvarpsherbergi er í miðju húsinu og baðherbergi þar sem gert er ráð fyrir sturtu og útgengt er út á verönd, er við hlið stofu. Hjónasvítan er afar rúmgóð með um 8 fm. fataherbergi auk baðherbergis þar sem gert er ráð fyrir sturtu.
Þvottahús tengir bílskúr og íbúðarhluta saman en bílskúrinn er mjög rúmgóður eða 33,7 fm..
Möguleiki er að hafa upptekin loft en þak er einhallandi. Þá verður steypt stétt allan hringinn í kringum húsið og lagnir að framan og aftan fyrir heitan pott.
Byggingarlýsing hér fyrir neðan:
Byggingin er einnar hæðar parhús úr timbri með einhalla þaki. Byggingin er hönnuð í notkunarflokki 3 samkv. byggingarreglugerð og uppfyllir ákvæði fyrir algilda hönnun. Tvö bílastæði verða staðsett fyrir framan hvora íbúð í samræmi við grunnmynd.
Sökklar eru steinsteyptir í sökkulkubba frá Polynorth. Undir steypta 120 mm gólfplötu er 2x75 mm plasteinangrun minnst 24 kg/m3 eða sambærilegt. Útveggir hússins eru gerðir úr 50x150 mm afréttri timburgrind og einangraðir með 150 mm steinull. Þak er gert úr sperrum úr timbri sem hvíla á stálbitum og einangrað með 200 mm steinull. Að utan er húsið klætt með loftaðri álklæðningu yfir veggjadúk en veggur við útidyr klæddur standandi ólitaðri lerkiklæðningu. Þak er klætt með tvöföldum tjörupappa á tilheyrandi undirlagi. Þakkantur með álflasningu. Þakhalli 3°. Innveggir eru með timburgrind klæddir 13 mm gifsplötum og krossvið á trégrind, fylltir steinull. Gólfefni, parketog flísar í votrýmum. Steinn á bílskúrsgólfi.
Litur á þaki er svargrár, veggir eru dökkgráir, hurðir og gluggar eru klæddir svörtu áli að utan en hvíttir að innan.
Upphitun er með gólfhitun í öllum gólfum en auk þess eru veggofnar í baðherbergjum. Neysluvatnslagnir eru rör í rör í einangrun í gólfi og veggjum og er varmaskiptir á neysluvatni hámarkshitastig 55-60°C.
Öll rými eru loftræst með opnanlegum gluggum, en í eldhúsi er einnig vélrænt útsog (VL). Í hvorri íbúð er loftskiptakerfi, staðsett í þvottahúsi. Í öllum rýmum með neysluvatnslögnum er gólfniðurfall, merkt GN á grunnmynd. Geymsla er í enda bílskúrs og er í sama brunahólfi og hann.
Í útihurðir og stofuglugga er sett öryggisgler samkv. gr. 8.5.2 í byggingarreglugerð og Rb blað Rb(31).121.1. Í útihurð er bréfalúga 25x260 mm. Læstur lyfjaskápur er í eldhúsi. möguleg staðsetning potta á lóð er sýnd ágrunnmynd. Stýring á pottum er með tvöfaldri yfirhitavörn.
Hljóðkrafa veggja á milli íbúða er 55dB R´w samkvæmt kröfu ÍST-45 og eru milliveggir með aðskildri grind með 25 mm bili milli byrða, sjá nánar á sérteikningum. Hæð lóðar við lóðarmörk verður gerð í samráði við nágranna og ákvæði skipulags. Lóð er þökulögð en hellulögð eða steypt á verönd og bílastæðum. Hæð lóðar á lóðarmörkum er í samræmi við skipulag. Varðandi algilda hönnun þá eru þröskuldar mest 25 mm háir og ljósmál hurða er minnst 80 sm. Sturtur eru flísalagðar með Kaupandi greiður skipulagsgjald þegar það verður lagt á, 0,3% af brunabótamati eignar.
Gjöld sem kaupandi þarf að standa straum af vegna kaupanna:
1. Stimpilgjald af kaupsamningi - 0.8% af heildarfasteignamati / 1.6% fyrir lögaðila. (0.4% við fyrstu kaup einstaklinga m.v. að lágmarki 50% eignarhlut).
2. Þinglýsingagjald af kaupsamningi, veðskuldabréfi, veðleyfi o.fl.- kr. 2.700 af hverju skjali.
3. Lántökugjald lánastofnunar -almennt 0,5-1,0% af höfuðstól skuldabréfs (nánari upplýsingar m.a. á heimasíðum lánastofnanna).
4. Umsýsluþóknun til fasteignasölu, sbr.kauptilboð.
Frekari upplýsingar:
bjorn@byggd.is
greta@byggd.is
berglind@byggd.is
olafur@byggd.is
Skipagötu 16 á 2. hæð.
S:464 9955

Dýpri greining á Húsasjá
- Verðmat fasteignar
- Sölusaga og verðþróun
- Samanburður sambærilegra eigna

