Hringhamar 35
01-0309 · 221 Hafnarfirði



633 dagar á sölu
74.000.000 kr
755.102 kr/m²
BÓKIÐ EINKASKOÐUN Í SÍMA 899-3335 EÐA LARA@FASTLIND.IS, ALLAR ÍBÚÐIR.
**AFHENDING VIÐ KAUPSAMNING** LIND fasteignasala kynnir nýjar og glæsilegar íbúðir í fimm hæða húsi við Hringhamar 35 í nýju hverfi í Hamranesi í Hafnarfirði. Flestum íbúðum fylgir stæði í bílageymslu. Vandaðar, sérsmíðaðar innréttingar frá Bræðrunum Ormsson, tæki frá AEG. Myndavéladyrasími í öllum íbúðum. Íbúðirnar afhendast fullbúnar án gólfefna en flísar eru á votrýmum. Húsið er steinsteypt, einangrað að utan og klætt með álklæðningu. Allir gluggar eru timbur-álgluggar frá Byko. Glæsilegar íbúðir í nýju hverfi í Hafnarfirðinum þaðan sem skólar og leikskólar eru í göngufæri og stutt er í alla helstu þjónustu. Fallegar gönguleiðir allt í kring.
Allir kaupendur og seljendur hjá LIND fasteignasölu fá Vildarkort Lindar sem veitir 30% afslátt hjá fjölmörgum fyrirtækjum.
NÁNARI UPPLÝSINGAR UM ALLAR ÍBÚÐIRNAR HJÁ:
Láru Þyri, löggiltum fasteignasala í síma 899-3335 eða lara@fastlind.is
SJÁ UPPLÝSINGAVEF FYRIR HRINGHAMAR 35-37 HÉR.
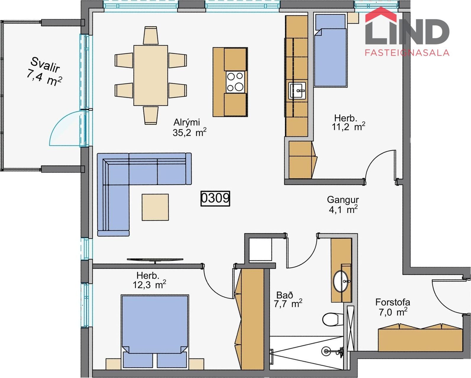
Íbúð 309:
Þriggja til fjögurra herbergja íbúð á 3. hæð með suðvestursvölum. Íbúðin afhendist fullbúin með gólfefnum.
Stærð: 98 fm, þar af geymsla 9,2 fm.
Forstofa: Fataskápur.
Eldhús: Vönduð innrétting frá Arens með eldunareyju, ljúflokubúnaður á skúffum og skápum, tengi fyrir uppþvottavél.
Stofa: Eldhús og stofa eru í opnu rými. Útgengi úr stofu á suðvestursvalir (7,4 fm).
Tvö svefnherbergi, bæði með fataskáp.
Baðherbergi: Flísar á gólfi og hluta veggja, upphengt salerni, vönduð innrétting með ljúflokubúnaði. Tengi fyrir þvottavél er á baðherbergi.
Sérgeymsla (0022) í sameign ásamt sameiginlegri hjóla- og vagnageymslu.
Hringhamar 35-37 eru tvö fimm hæða hús sem standa ofan á steyptum, sameiginlegum kjallara með geymslum og bílastæðum. Samtals eru 46 íbúðir í húsunum.
Húsið er steinsteypt, eingangrað að utan með steinull og klætt að stærstum hluta með álklæðningu, timburklæðning er inná flestum svölum. Gluggar eru eftirísettir áltré gluggakerfi frá Byko. Stigahús eru teppalögð en andyrishús flísalögð með hálkufríum flísum. Innréttingar og skápar eru frá Arens og eru með ljúflokunarbúnaði. Eldhústæki eru frá Bræðrunum Ormsson.
Byggingaraðili er Dverghamrar ehf., traustur verktaki síðan 1986. Fyrirtækið hefur lagt áherslu á byggingu íbúðar- og iðnaðarhúsnæðis og hefur byggt upp yfir 37 ára reynslu á því sviði.
Byggingastjórar fyrirtækisins starfa eftir vottuðu gæðastjórnunarkerfi þar sem lögð er rík áhersla á fagleg vinnubrögð. Framkvæmdar eru reglulegar úttektir á verkþáttum framkvæmdarinnar þar sem tryggt er að unnið sé í samræmi við verklýsingar og að skilað sé traustri og góðri vöru á réttum tíma.
Arkitekt hússins er Orri Árnason hjá Zeppelin arkitektar. Raflagnahönnun er unnin af Agnari Sveinssyni. Lagnahönnun og burðarþolshönnun er unnin af verkfræðistofunni New Nordic Engineering.
ATH: Ljósmyndir á vef sýna myndir af íbúð 509 sem er með sama skipulagi og íbúð 309.
Allar nánari upplýsingar veitir:
Lára Þyri Eggertsdóttir, löggiltur fasteignasali/B.A. í lögfræði í síma 899-3335 eða lara@fastlind.is
Gjöld sem kaupandi þarf að standa straum af vegna kaupanna:
1. Stimpilgjald af kaupsamningi - 0,8% af heildarfasteignamati, lögaðili greiðir 1,6%
2. Þinglýsingargjald af kaupsamningi, veðskuldabréfi, mögulegu veðleyfi o.fl. - kr. 3.800 af hverju skjali.
3. Lántökugjald lánastofnunar. Nánari upplýsingar á t.d. heimasíðu lánastofnana.
4. Umsýslugjald til fasteignasölu 74.900.- með vsk.
5. Kaupandi greiðir skipulagsgjald, 0,3% af brunabótamati, þegar það verður lagt á.

Dýpri greining á Húsasjá
- Verðmat fasteignar
- Sölusaga og verðþróun
- Samanburður við sambærilegar eignir





















