Axlarás 54B
01-0101 · 221 Hafnarfirði



155 dagar á sölu
146.000.000 kr
682.881 kr/m²
Auður Magnúsdóttir löggiltur fasteignasali og Lind fasteignasala kynna nýtt og vandað endaraðhús á tveimur hæðum með inngangi að ofanverðu við Axlarás 54B í Áslandi Hafnarfirði. Eignin er skráð 213,8 fm og skiptist í forstofu, eldhús, stofu, fjögur svefnherbergi, tvö baðherbergi, þvottahús, sjónvarpsherbergi og tvær geymslur.
Heimasíða verkefnisins má finna hér
Byggingaraðili: Þarfaþing hf.
Aðalhönnuður: Arkís arkitektar ehf.
Eigninni verður skilað á byggingarstigi 3/4 rúmlega tilbúið til innréttinga. Sjá skilalýsingu hér.
*Gólf eru tilbúin undir gólfefni.
*Allir veggir og loft innan íbúða eru sandsparslaðir og málaðir en lokaumferð skilin eftir.
*Innveggir aðrir en steyptir eru hlaðnir úr Ytong hleðslusteini, sparslaðir og málaðir í ljósum lit án lokaumferðar.
*Loft í alrými eru tilbúin undir loftadúk.
*Gólfhiti hefur verið lagður og lagnakistur klárar án stjórnstöðvar.
*Búið er að leggja í steypu allar lagnir fyrir vélræna loftræsingu í hvert herbergi og gert ráð fyrir loftræsikerfi með varmahjóli til orkusparnaðar.
*Þvottahús skilast spörtluð og máluð án lokaumferðar, gólf tilbúin undir flísalögn.
*Baðherbergi skilast með spörtluðum loftum og hluta veggja aðrir veggir og gólf eru tilbúin undir vatnsvörn og flísalögn, að undanskyldum sturtubotni.
Lóð: lóðin verður fullfrágengin með burstuðu Lunawood sólpöllum og girðingum. Aðgengi verður hellulagt með snjóbræðslu samkvæmt lagnateikningum. Gróðurbeð verða grófjöfnuð en gróður fylgir ekki. Ídráttur fyrir rafbílahleðslu verður lagður.
Nánari lýsing:
2.hæð
Forstofa: Rúmgóð forstofa. Þakgluggi sem veitir birtu inní rýmið. Úr anddyri er gengið inní geymslu.
Geymsla: Innaf forstofu, tvöföld útihurð. 10,6 fm
Borðstofa/stofa: Rúmgott og bjart alrými. Stórr gluggi sem veitir fallega birtu inní alrýmið, hátt til lofts.
Eldhús: opið við borðstofu/stofu. Útgengi út á sólpall.
Snyrting:
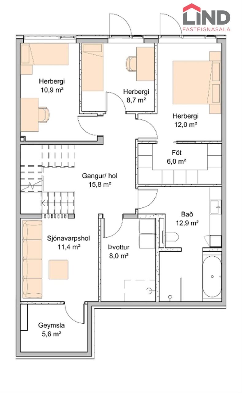
Herbergi: 8,7 fm
1.hæð
Sjónvarpshol: 11,4 fm, Inna sjónvarpsholi er geymsla/lagnarými.
Geymsla: 5,6 fm.
Baðherbergi:
Þvottahús: sér þvottahús.
Herbergi: 12,0 fm, fataherbergi 6,0 fm. Útgengi út á sólpall.
Herbergi: 8,7 fm. Útgengi út á sólpall.
Herbergi: 10,9 fm.
Nánari upplýsingar veitir Auður Magnúsdóttir Löggiltur fasteignasali, í síma 8482666, tölvupóstur audur@fastlind.is.
-----------------------------------------------------------------------
Gjöld sem kaupandi þarf að standa straum af vegna kaupanna:
1. Stimpilgjald af kaupsamningi - 0.8% af heildarfasteignamati / 1.6% fyrir lögaðila
Fyrstu kaup - 0,4% af heildarfasteignamati
2. Þinglýsingagjald af kaupsamningi, veðskuldabréfi, veðleyfi o.fl.- kr. 2.700 af hverju skjali.
3. Lántökugjald lánastofnunar
4. Umsýsluþóknun til fasteignasölu, sbr.kauptilboð.

Fáðu nýja innsýn á Húsasjá
- Verðmat fasteignar
- Sölusaga og verðþróun
- Samanburður sambærilegra eigna



















































