Lambamýri 2
03-0105 · 225 Garðabæ



13 dagar á sölu
72.900.000 kr
977.212 kr/m²
Guðný Ösp lgf., s. 665-8909, og fasteignasalan TORG kynnir vel skipulagða þriggja herbergja íbúð með stæði í bílakjallara við Lambamýri 2
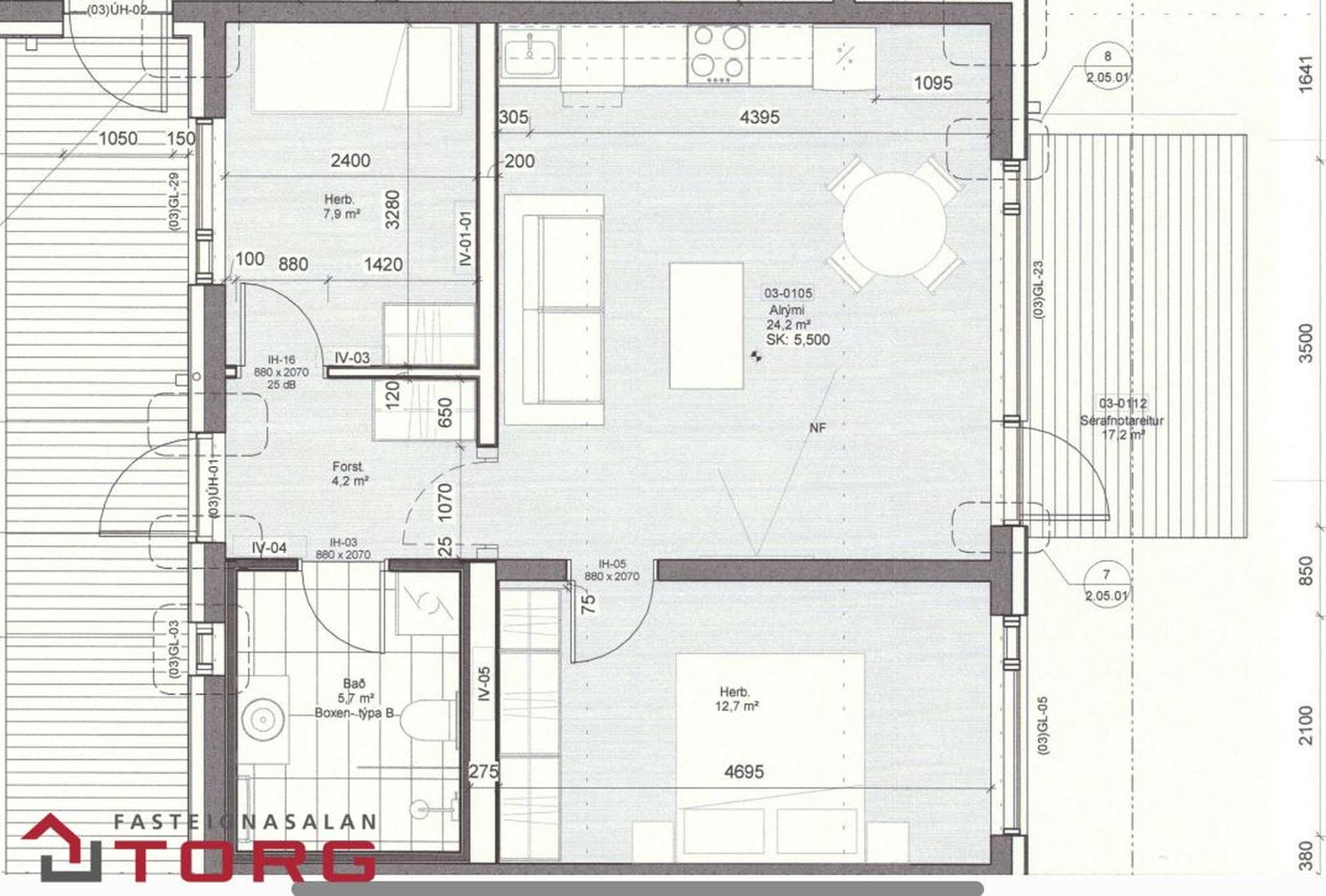
Eignin er samtals skráð á fasteignayfirliti HMS 74,6 m2 en þar af er geymsla 8,5 m2.
Umrædd eign er nýleg, falleg og björt og er staðsett á 1. hæð með sérafnota reit sem snýr í norð-vestur, með fallegu útsýni í átt til Bessastaða. Gengið er inn um sér inngang sem er sunnan megin við húsið.
Nánari lýsing:
Forstofa: flísar á gólfi og fataskápur.
Herbergi I: parket á gólfi og fataskápur.
Baðherbergi: flísar á gólfi og veggjum, upphengt salerni, sturta, handlaug með innréttingu og pláss fyrir þvottavél og þurrkara.
Stofa: parket á gólfi, opið og bjart rými, þar sem útgengt er á hellulagðan sérafnotareit sem snýr í norð-vestur með fallegu útsýni í átt til Bessastaða.
Eldhús: parket á gólfi, mikið skápapláss, ofn í vinnuhæð, innbyggður ísskápur og uppþvottavél, gott borðpláss og vinnulýsing. Eldhús og stofa saman í opnu og björtu rými.
Hjónaherbergi II: parket á gólfi og rúmgóðir fataskápar.
Geymsla: staðsett í sameign í kjallara, skráð 8,5 m2.
Íbúðin inniheldur loftskiptikerfi sem blæs fersku upphituðu lofti inn í íverurými og dregur loft út af baðherbergjum, og eldhúsi.
Stæði í bílakjallara: staðsett í bílakjallara með rafhleðslustöð, gott aðgengi en unnt er að taka lyftu upp á 1. hæð í sameign í stigagangi og ganga þaðan út að sér inngangi íbúðar á 1. hæð.
Eignin er vel staðsett á Álftanesi, í göngufæri við skóla, leikskóla og þá er sundlaug og íþrótta hús í um það bil fimm mínótna göngufjarlægð. Næg gestastæði eru á bílaplani sem er staðsett fyrir utan húsið. Þá eru göngustígar frá húsinu í átt að Bessastöðum og að fallegum gönguleiðum í átt að fjörunni.
Allar nánari upplýsingar veitir: Guðný Ösp Ragnarsdóttir, lgf., s. 665-8909 eða gudny@fstorg.is
Gjöld sem kaupandi þarf að standa straum af vegna kaupa á fasteign: Stimpilgjald af kaupsamningi: 0.8% af fasteignamati eignar fyrir einstaklinga en 1.6% fyrir lögaðila en 0.4% ef um fyrstu íbúðarkaup er að ræða.
Þinglýsingargjald: kaupsamningi, skuldabréfi, veðleyfi, afsali o.s.frv. er kr. 2.700 af hverju skjali. Umsýslugjald fasteignasölu, samkvæmt gjaldskrá.
Skoðunarskylda kaupanda: Í lögum um fasteignakaup nr. 40/2002 er kveðið á um ríka skoðunarskyldu kaupenda á fasteignum. Fasteignasala bendir væntanlegum kaupendum á að kynna sér vel ástand fasteigna við skoðun og fyrir tilboðsgerð og ef þurfa þykir að leita til sérfræðinga um nánari ástandsskoðun. Söluyfirlit er samið af fasteignasala í samræmi við ákvæði laga nr. 70/2015. Þær upplýsingar sem fram koma í söluyfirliti þessu eru sóttar í opinberar skrár, til seljanda sjálfs og eftir atvikum til húsfélags. Seljandi veitir upplýsingar um eign í samræmi við upplýsingaskyldu laga um fasteignakaup nr. 40/2002. Fasteignasali sannreynir að þær upplýsingar séu réttar með sjónskoðun á eigninni. Fasteignasali getur ekki fullyrt um ástand og eiginleika þeirra hluta fasteigna sem ekki eru aðgengilegir og sjást ekki berum augum, t.d. lagnir, dren, skólp og þak.

Fáðu nýja innsýn á Húsasjá
- Verðmat fasteignar
- Sölusaga og verðþróun
- Samanburður sambærilegra eigna


















