Hringbraut 120
01-0408 · 101 Reykjavík



557 dagar á sölu
199.900.000 kr
1.292.178 kr/m²
Guðlaugur J. Guðlaugsson löggiltur fasteignasali hjá RE/MAX fasteignasölu kynnir í einkasölu:
Nýjan og glæsilegan íbúðarkjarna á gamla Steindórsreitnum í 101 Reykjavík (Grandatorg.is) sem skartar þremur flottum byggingum við Sólvallagötu með alls 84 íbúðum. Allar íbúðir í húsinu eru tilbúnar til afhendingar við kaupsamning.
Íbúðirnar umlykja flestar fallegan inngarð þar sem líf og samfélag rennur saman og skapar nánd milli íbúa. Í hverju skrefi var hugað að þægindum, notagildi og stíl sem fellur vel að umhverfi við Sjávarsíðuna.
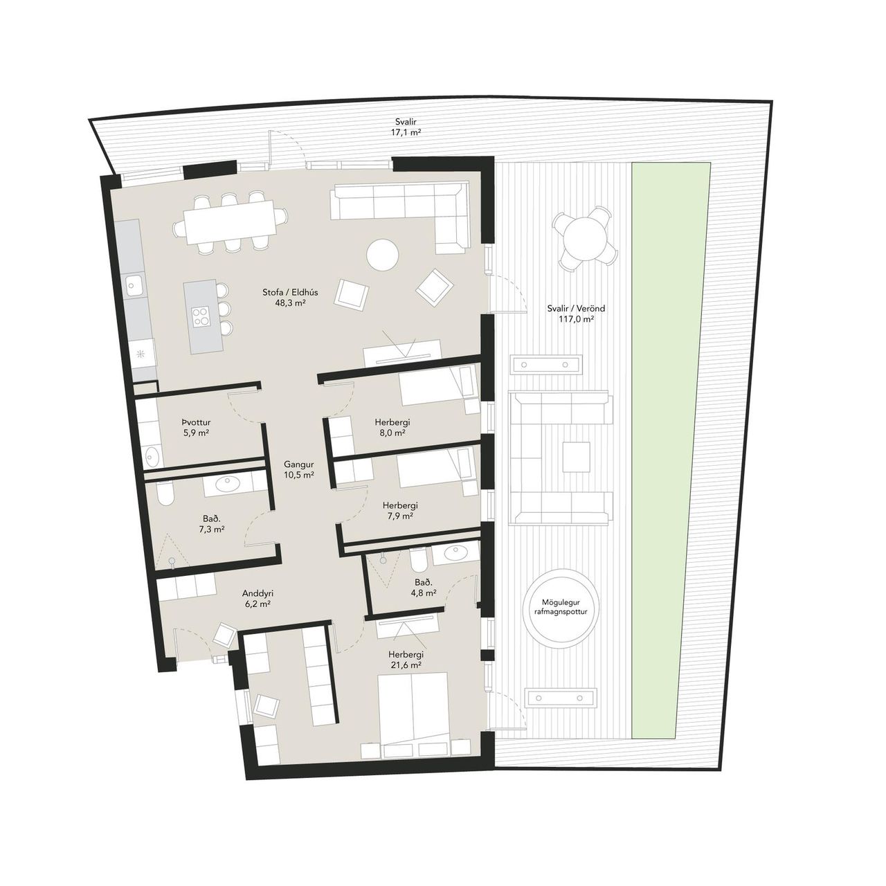
Nánar um eign 01-0408 á Sólvallagötu 79: Eignin er fjögurra herbergja herbergja íbúð á 4. hæð merkt 01-0408, birt stærð 141,9 fm. Eigninni tilheyrir tvær geymslur í kjallara merkt 0036, birt stærð 7,5 fm. og geymsla merkt 0091, birt stærð 5,3 fm.( sú geymsla er staðsett beint inn af stæði B57) Eigninni tilheyra svalir/verönd merktar 0422 og 0426. Birt heildarstærð séreignar er 162,2 fm. (um er að ræða endaíbúð sem er næst sjávarsíðunni með stórum svölum/verönd, þar sem gert er ráð fyrir heitum potti)
Íbúðinni fylgja tvö sér merkt stæði í bílageymslu, merkt B57 og B13
Allar íbúðir í L-laga húsinu sem snýr að Sólvallagötu eru afhendar með gólfefnum / harðparket á gólfi að undaskildum votrýmum, þ.e. inn á baðherbergi og inn í þvottahúsi þar sem það á við og í forstofu á sumum íbúðum, þar verða 60 x 60 flísar. Innbyggður kælir með frystir og innbyggð uppþvottavél í innréttingum fylgir líka með öllum þeim íbúðum. Það sama á við um studio íbúðir á 1. hæð í bogadregnahúsinu og allar íbúðir á 2. hæð í bogadregnahúsinu sem snýr að Hringbraut.
Aðrar íbúðir á 3. 4. og 5. hæð í bogadregna húsinu skilast án þess að innbyggð tæki fylgja með og án gólfefna að undaskildum votrýmum, þ.e. inn á baðherbergi og inn í þvottahúsi þar sem það á við, þar verða 60 x 60 flísar.
Bókaðu skoðun hjá Gulla í síma 661-6056 eða með tölvupósti á netfangið gulli@remax.is
Sjá má skilalýsingu, verðlista á íbúðum og verðlista á bílastæðum ( til kaups eða leigu ) og nánari upplýsingar um húsið inn á heimasíðu verkefnisins: Grandatorg.is
Margar íbúðir með fallegt og gott útsýni til sjávar- og fjalla.
Fjölbreytt val um íbúðir. Allt frá studió íbúðum yfir í fjögurra herbergja íbúðir.
Stærðir eru frá 49,4 fm. – 157,1 fm.
Verð eru frá kr. 59.900.000 kr.
Allar innréttingar eru sérsmíðaðar hjá Gerher í Litháen sem er þjónustað af HBH Byggir ehf.
Um er að ræða vandaða framleiðslu úr melamin efni frá Egger sem er sérstaklega endingagott og slitsterkt. Votrými eru flísalögð. Hurðir eru frá Harðviðarval.
Eftirfarandi íbúðir í kjarnanum skilast með Quarts borðplötum. Íbúðir nr. 201, 301, 310, 315, 316, 317, 318, 319, 401, 408, 409, 410, 411, 412, 413, 506 og 507
Eftirfarandi íbúðir í kjarnanum eru með teppi á steyptum stiga milli hæða. Íbúðir 315, 316, 317, 318, 319
Nánar um húsið, möguleika á bílastæðum og hverjir standa að verkinu.
Bílakjallari / Eigendur á Grandatorgi hafa möguleika á að kaupa bílastæði eða leigja gegn sanngjörnu gjaldi.
Það eru samtals 86. bílastæði í bílakjallara sem verða seld eða leigð eftir vali kaupanda, eitt eða fleiri eftir þörfum viðkomandi, 8. af þeim stæðum eru með aukageymslu fyrir framan. Í þeim tilvikum verða bílastæðið og geymslan seld saman.
Verð á bílastæðum til kaups er sem hér segir:
Hefðbundið bílastæði, verð kr. 6,0 m.
Stæði með aukinni breidd, verð kr. 7,0 m.
Markmiðið með vali um kaup eða leigu á bílastæði er til að stuðla að réttlátri úthlutun bílastæða.
Nánari upplýsingar um áskriftakerfið má finna í verðskrá og reglum bílastæðahússins inn á grandatorg.is
Atvinnurýmin í bogadregna húsinu á Sólvallagötu 79 sem liggur við Hringbraut verða tilbúin til afhendingar frá og með 15. september 2024.
Hitakerfi:
Íbúðir í bogadregna húsinu sem liggur við Hringbraut eru upphitaðar með gólfhitakerfi. Aðrar íbúðir við Sólvallagötu 79 eru upphitaðar með hefðbundnum miðstöðvarofnum.
Gluggar:
Álklæddir timburgluggar frá Kömbum. Tvöfalt einangrunargler í gluggum.
Lóð afhendist fullfrágengin. Hitalögn verður í helstu gönguleiðum, þ.e. stígur milli Hringbrautar og Sólvallagötu við lóðir Framnesvegar, og meðfram Hringbrautarhúsinu í inngarð. Grassvæði verða frágengin og gróðurbeð grófjöfnuð, gróður fylgir ekki með skv. lóðarteikningu. Á leiksvæði barna verður hægt að setja upp leiktæki. Helstu gönguleiðir og aðgengi að anddyrum snjóbræddar.
Að verkinu standa eftirtaldir aðilar:
Byggingaraðili er Reir Verk ehf. sem er öflugt byggingarfélag sem vinnur að fjölbreyttum fasteignaverkefnum ásamt því að vinna að ýmsum byggingaverkefnum á eigin vegum. Fyrirtækið leggur áherslu á að veita heildarlausnir í byggingaverkefnum, góða þjónustu og vandaða vöru.
Arktitekt og aðalhönnuður er +Arkitektar
Burðarþol, Verkfræðistofa Þráinn & Benedikt ehf.
Lagnir, Verkfræðistofa Þráinn & Benedikt ehf.
Raflagnir, Voltorka
Seljandi, Steindór ehf.
Til áréttingar: Upplýst er um að lóðin verður byggingasvæði í einhvern tíma eftir að eignir eru afhendar og að lokaúttekt getur tafist þar til lóðin og öll mannvirki innan lóðar eru fullkláruð. Seljandi mun ábyrgjast lokaúttekt á eigninni en afsal kann að fara fram áður en lokaúttekt á eigninni/heildareigninni fæst.
Nánari upplýsingar veitir: Guðlaugur J. Guðlaugsson/Gulli löggiltur fasteignasali í síma 661-6056 / gulli@remax.
Vegna mikillar eftirspurnar vantar mig allar tegundir eigna á skrá. Hafið samband og ég mun verðmeta eign þína þér að kostnaðarlausu.
Gjöld sem kaupandi þarf að standa straum af vegna kaupanna:
1. Stimpilgjald af kaupsamningi 0,8%, ( 0,4% ef um fyrstu kaup er að ræða ) og 1.6% (ef um lögaðila er að ræða) af heildar fasteignamati.
2. Þinglýsingargjald af kaupsamningi, veðskuldabréfi, mögulegu veðleyfi o.fl. - kr. 2.700 af hverju skjali.
3. Lántökugjald lánastofnunar - Nánari upplýsingar á heimasíðum lánastofnana.
4. Umsýslugjald til fasteignasölu kr. 69.900.-

Dýpri greining á Húsasjá
- Verðmat fasteignar
- Sölusaga og verðþróun
- Samanburður við sambærilegar eignir












































