Engjaland 4
01-0104 · 800 Selfossi



649 dagar á sölu
88.800.000 kr
757.679 kr/m²
NÁNARI UPPLÝSINGAR FÆRÐU HJÁ GUÐNÝJU ÞORSTEINS Í SÍMA 7715211 EÐA GUDNYTH@REMAX.IS
SMELLTU HÉR OG SJÁÐU KYNNIGU Á ÞESSUM EINSÖKU EIGNUM
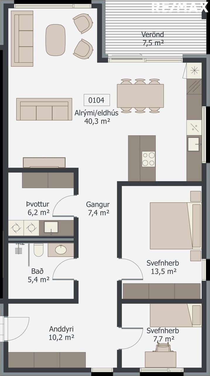
RE/MAX ásamt GUÐNÝJU ÞORSTEINS löggiltum fasteignasala kynnir í einkasölu: Engjaland 4, íbúð 104, björt og falleg þriggja herbergja enda íbúð á jarðhæð með sér inngangi í lyftuhúsi með bílastæði í bílastæðakjallara í vandaðri nýbyggingu fyrir 55 ára og eldri. Íbúðin er tilbúin til afhendingar, fullfrágengin með gólfefnum. Frekari upplýsingar um bygginguna er að finna á Engjaland.is
Eignin samanstendur af: Forstofu, tveimur svefnherbergjum, baðherbergi, þvottahúsi, eldhúsi og stofu sem eru í samliggjandi flæðandi rými, ásamt útgangi út á verönd. Einkabílastæði í bílakjallara fylgir íbúðinni ásamt geymslu. Gólfefni eru vínilparket og flísar í votrýmum.
Samkvæmt Fasteignamati Ríkisins er íbúðin samtals 117,2m2 þar af er geymsla í sameign 9,7m2. Verönd er 7,5m2.
Nánari lýsing:
Forstofa: Er með fataskápum sem ná upp í loft.
Herbergi I: Gæti notast sem gestaherbergi eða skrifstofa.
Herbergi II: Er rúmgott með fataskápum sem ná upp í loft.
Baðherbergi: Er flísalagt með steini á borði, vaski með skúffum undir, upphengdu salerni, rúmgóðri "walk in" sturtu.
Þvottahús: Er með þvottavéla-innréttingu, skápum ásamt skolvaski.
Eldhús/borðstofa: Undir efri skápum er innfræst led- lýsing, á borðplötum í er steinn sem heitir Meteor Ice frá S. Helgasyni. Í innréttingunni eru vönduðum tæki af gerðinni AEG frá Ormsson, blástursofn, innbyggð uppþvottavél ásamt innbyggðum kæliskáp með frysti. Á eyju er span helluborð með fallegum háfi yfir. Borðstofan er rúmgóð í opnu og björtu rými með útgangi út á verönd.
Stofa/alrými: Er í stóru og björtu alrými
Verönd: Er séreign og er 7,5m2.
Geymsla: Er 9,7m2 - nr.0008.
Bílastæði: Er merkt B02 í upphituðum bílastæðakjallara.
Íbúðinni fylgja ýmis þægindi:
Í íbúðinni er sérstakt loftræstikerfi sem bætir loftgæði og tryggja rétt loftskipti. Innfelld lýsing í öllum rýmum. Litaval á innréttingum er virkilega fallegt og milt. Lagt er fyrir rafhleðslustöð í bílageymslu. Allar íbúðir eru með sérmerkt bílastæði þar af fjórar íbúðir með sérmerkt bílastæði fyrir utan bygginguna og 10 íbúðir með sérmerkt stæði í bílakjallara byggingarinnar. Á bílaplani fyrir utan bygginguna eru 19 bílastæði þar af tvö sérmerkt fyrir hreyfihamlaða.
Þetta er björt og falleg eign með öllum helstu þægindum nútímans
Byggingaraðili: RENY ehf
Byggingarstjóri: Húsaverk ehf
Iðn- og lýsingahönnuður: Sólveig Andersen
Hönnun húss og lóðahönnun: Pro-Ark teiknistofa
Verkfræðihönnun: Verkfræðistofan Hnit
Raflagnahönnun: Rafhönnun ehf
Kaupandi greiðir 0,3 % skipulagsgjald sem er innheimt þegar endanlegt brunabótamat liggur fyrir.
Ítarlegri upplýsingar veitir Guðný Þorsteins. í s:771 5211 eða gudnyth@remax.is
Í lögum um fasteignakaup nr. 40/2002 er kveðið á um ríka skoðunarskyldu kaupenda á fasteignum. Vill Re/Max því skora á væntanlega kaupendur að kynna sér vel ástand fasteigna fyrir kauptilboðsgerð og leita til þar til bærra sérfræðinga um nánari skoðun.
Gjöld sem kaupandi þarf að standa straum af vegna kaupanna:
1. Stimpilgjald af kaupsamningi - 0.8% af heildarfasteignamati / 1.6% fyrir lögaðila. (0.4% við fyrstu kaup einstaklinga).
2. Þinglýsingargjald af kaupsamningi, veðskuldabréfi, veðleyfi o.fl.- kr. 2.700 af hverju skjali.
3. Lántökugjald lánastofnunar - skv. gjaldskrá lánastofnunar
4. Umsýsluþóknun til fasteignasölu, 69.900 kr. m.vsk.

Fáðu nýja innsýn á Húsasjá
- Verðmat fasteignar
- Sölusaga og verðþróun
- Samanburður sambærilegra eigna














