Engjaland 2
01-0204 · 800 Selfossi



648 dagar á sölu
92.000.000 kr
771.165 kr/m²
Hús fasteignasala kynna í einkasölu glæsilega nýja, 119,3 fm, þriggja herbergja endaíbúð á 2.hæð að Engjalandi 2, Selfoss, nánar tiltekið eign merkt 02-04, ásamt bílastæði í bílakjallara B1. Eignin er sérlega vönduð nýbygging fyrir 55 ára og eldri. Íbúðin afhendist fullbúin með gólfefnum. Eignin er tilbúin til afhendingar við undirritun kaupsamnings.
Nánari upplýsingar, skilalýsingar og þrívíddarteikningar er hægt að nálgast hér:https://vefir.onno.is/golverk/engjaland-2/
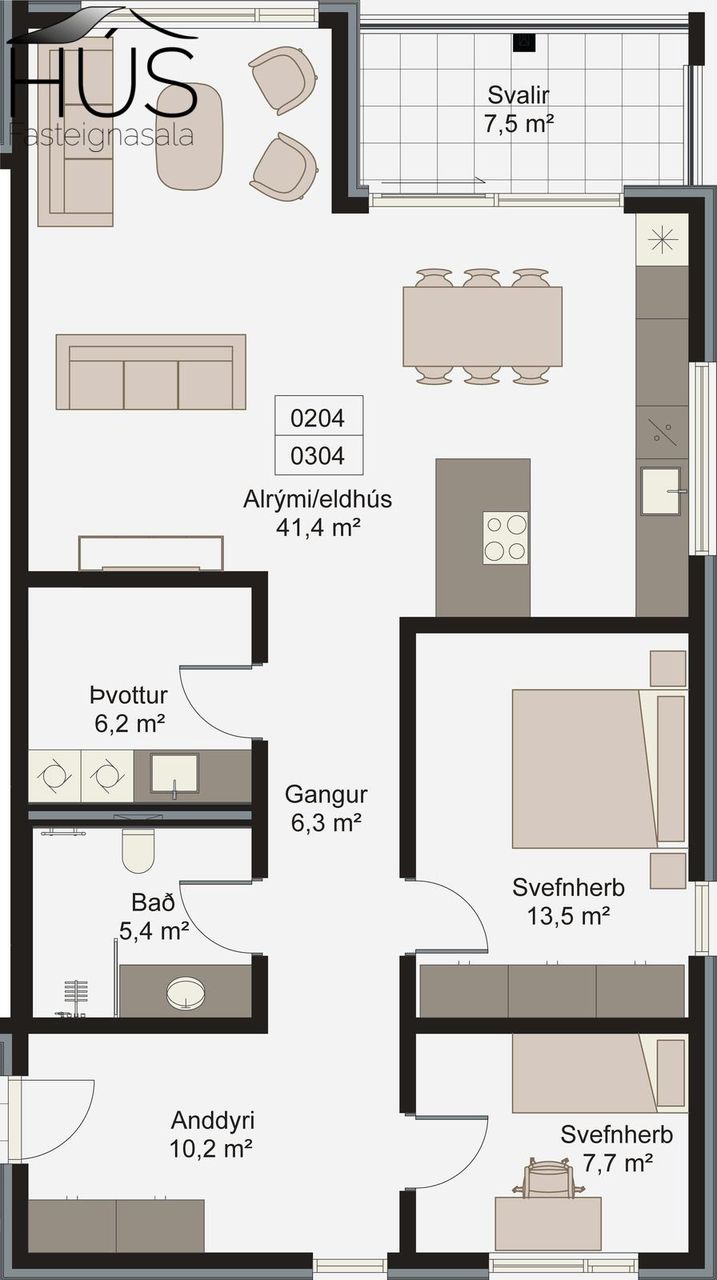
Lýsing íbúðar:
Íbúðin 0204 er 107,5 fm á 2.hæð og geymsla 0012 er 11,8 fm í kjallara auk bílastæðis í bílakjallara merkt B1.
Gengið er inn í íbúðina af lokuðum svalagangi í gegnum stigahús. Rafmagnsopnun á útihurðum í sameign. Myndavélasími er í anddyri.
Forstofa: Með skápum.
Hjónaherbergi: Með skápum sem ná upp í loft.
Baðherbergi: Þar er sturta með þreplausu aðgengi og innbyggðum tækjum. Innrétting er á baði og upphengt salerni.
Svefnherbergi: Með skápum sem ná upp í loft
Eldhús og borðstofa: Vönduð innrétting með tanga. Innfeld uppþvottavél og ísskápur. Innbyggður blástursofn og spanhelluborð með innbyggðri viftu. Vönduð tæki, Miele og Elica frá Eirvík. Borðplata úr steini. Úr borðstofu er útgengi um rennihurð út á svalir.
Stofan: Er björt og rúmgóð
Svalir: Með svalalokun. Svalir eru 8,0 fm
Þvottahús: Með innréttingu m.a. fyrir þvottavél og þurrkara.
Gólf votrýma eru flísalögð sem og veggir baðherbergja. Önnur gólf eru með harðparketi.
Sérbílastæði í upphituðum bílakjallara. Lagt er fyrir hleðslustöð.
Almenn lýsing hússins:
Engjaland 2 er 14 íbúða fjölbýlishús á 4 hæðum ásamt bílakjallara. Húsið er fyrir 55 ára og eldri.
Í kjallara hússins eru séreignageymslur, inntaksrými, svæði fyrir hjólageymslu auk bílgeymslu fyrir þær íbúðir sem hafa aðgang að þeim en 10 rúmgóð bílastæði eru í bílgeymslu hússins. Á jarðhæð eru sorpgeymslur og anddyri í stigahúsi fyrir íbúðir. Aðgengi að öllum íbúðum er í gegnum stigahús á jarðhæð.
Í anddyri eru póstkassar fyrir allar íbúðir ásamt myndavélasíma sem er tengdur í allar íbúðir. Á 1-3 hæð eru alls fjórar íbúðir á hverri hæð sem allar eru útbúnar svölum með svalalokun. Á gönguhurðum í sameign eru sjálfvirk hurðaropnun á rofa.
Íbúðum er skilað fullbúnum með gólfefnum á öllum rýmum. Gólf votrýma eru flísalögð og veggir baðherbergja eru flísalagðir. Önnur gólf innan íbúða eru með harðparketi.. Íbúðirnar afhendast með vönduðum eldhústækjum frá Eirvík, blástursofni, spanhelluborði með innbyggðri viftu, innbyggðri uppþvottavél og innbyggðum kæli- og frystiskáp. Baðherbergi eru með þreplausu sturtuaðgengi og eru sturtutæki innbyggð hitastýrð blöndunartæki. Sér loftræsikerfi með varmaupphitun og inn- og útblæstri er í hverri íbúð. Að vera með sér loftræsikerfi skapar jafnara loftflæði um íbúðina, minnkar rakasöfnun og myndar betri loftgæði. Aukin lofthæð er í öllum íbúðunum.
Svalir
Svalir eru afhentar með steyptu yfirborði og svalalokun á 1-3 hæð en með svalahandriðum á 4 hæð
Byggingaraðili er Gól ehf. Kt: 430502-5060
Aðalhönnuður er Pro-Ark ehf.
Frágangur utanhúss
Húsið er uppsteypt, einangrað að utan og klætt með loftræstri flísaklæðningu í ljósum lit. Stigahús er klætt með álklæðningu í dökkum lit. Aðkoma að íbúðum er um svalagang sem er skermdur af með glervegg með opnunum samkvæmt útfærslu brunahönnuðar. Svalir íbúða 1,2 og 3 hæðar eru lokaðar af með svalalokun. Svalir 4.hæðar eru með handriði. Gluggar eru timburgluggar með álkápu að utanverðu Ideal Combi. Rennihurðar eru út á svalir allra íbúða og eru úr áli frá Reyners. Útihurðir með rafdrifinni opnun eru úr áli. Þakefni er ábræddur tjörudúkur.
Sameign.
Í stigahúsi er lyfta sem gengur frá kjallara upp á allar hæðir. Stigahús er hvítmálað með teppum á stigum en flísalagt á stigapöllum framan við lyftur og innganga. Á öllum inn- og útgangshurðum í stigahúsi er rafdrifin hurðaropnum. Í andyri á 1 hæð eru póstkassar fyrir allar íbúðir auk dyrasíma með myndavél tengdum öllum íbúðum.
Í kjallara er upphituð bílageymsla fyrir hluta íbúða þar sem bílastæði eru rýmri en venja er. Í kjallara eru einnig tæknirými og geymsla fyrir allar íbúðir. Geymslur og geymslugangar skilast með máluðum veggjum, loftum og gólfum auk lýsingar í hverri geymslu. Geymslur eru loftræstar með sameiginlegri loftræsisamstæðu og er innblástur með varmaupphitun.
Við hvert bílastæði er lagt fyrir hleðslustöð. (Hleðslustöðin sjálf fylgir ekki) Afmarkað svæði er í geymslu/bílgeymslu fyrir hjól.
Lóð
Lóð afhendist fullfrágengin. Bílastæði eru malbikuð og garður með grasi. Gangstígar framan við hús eru steyptir með kústaðri áferð. Snjóbræðsla er í rampi, bílastæðum hreyfihamlaðra og göngustígum framan við hús.
Kaupandi hefur kynnt sér skilalýsingu seljanda.
Kaupandi greiðir skipulagsgjald 0,3% af brunabótamati þegar komið er er brunabótamat á eignina.
Skilalýsing og nánari upplýsingar hjá fasteignasölum:
Steindór Guðmundsson, í s 8621996, steindor@husfasteign.is
Snorri Sigurfinnsson s. 8648090, snorri@husfasteign.is
Hafsteinn Þorvaldsson s. 8918891, hafsteinn@husfasteign.is
Loftur Erlingsson s. 8969565, loftur@husfasteign.is
Ragna Valdís Sigurjónsdóttir s.846 6581, ragna@husfasteign.is

Dýpri greining á Húsasjá
- Verðmat fasteignar
- Sölusaga og verðþróun
- Samanburður sambærilegra eigna






