Áshamar 52
03-0311 · 221 Hafnarfirði



22 dagar á sölu
66.400.000 kr
828.964 kr/m²
Helga Pálsdóttir Löggiltur fasteignasali og Lind fasteignasala kynna einstaklega fallega og bjarta þriggja herbergja íbúð á þriðju hæð í góðu fjölbýlishúsi með lyftu við Áshamar 52, Hafnarfirði. Eignin er skráð samkvæmt FMR 80,1 fm þar af er geymsla 2,6 fm. Íbúðin er laus fljótlega eftir kaupsamning. Bjalla 311
Byggingaraðili: GG verk
Hönnuður hússins: Guðni Pálsson - GP Arkitektar ehf.
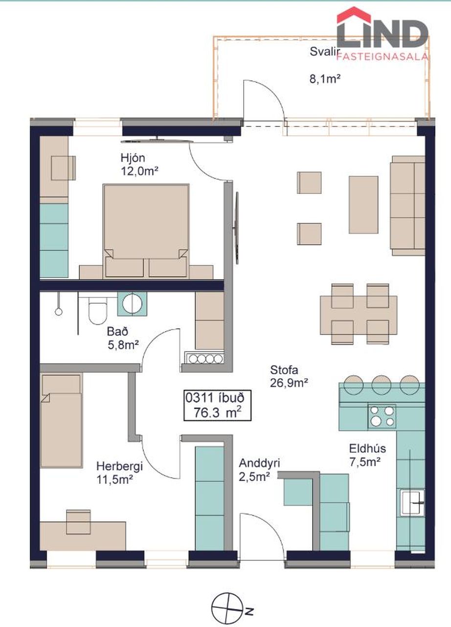
Íbúð 311: 80,1 fm, þriggja herbergja íbúð á 3. hæð. Eignin skiptist í forstofu,eldhús, borðstofu, stofu, tvö svefnherbergi og baðherbergi með þvottaaðstöðu.
*Viðarparket á alrými.
*Gólfhiti.
*Sérsmíðaðar innréttingar frá Axis.
* Allar gardinurnar eru sérsniðnar frá Casalísa
Nánari lýsing:
Forstofa: Fallegar flísar, fataskápur.
Eldhús: Viðarparket á gólfi, hvít eldhúsinnrétting, innbyggður ísskápur, frystir og uppþvottavél. Bakaraofn í vinnuhæð, spanhelluborð og háfur.
Borðstofa/stofa: í opnu rými, viðarparket á gólfi, útgengi út á svalir.
Hjónaherbergi: Viðarparket á gólfi, fataskápur, skrifborðsplata.
Herbergi: Viðarparket á gólfi, innbyggður fataskápur.
Baðherbergi: Flísar á gólfi og veggjum að hluta, upphengt salerni, walk-in sturta, stór spegill með fallegum ljóskúplumfrá Lumex í spegli . Þvotta aðstaða og tengi fyrir þvottavél og þurrkara.
Svalir: 7,8 fm, svalir sem snúa til vesturs.
Geymsla: í sameign, 2,6 fm.
Hleðslustöðvar eru á bílaplani.
Nánari upplýsingar veita:
Helga Pálsdóttir Löggiltur fasteignasali, í síma 822-2123, tölvupóstur helga@fastlind.is.
Auður Magnúsdóttir, Löggiltur fasteignasali, í síma 848-2666, tölvupóstur audur@fastlind.is.
-----------------------------------------------------------------------
Gjöld sem kaupandi þarf að standa straum af vegna kaupanna:
1. Stimpilgjald af kaupsamningi - 0.8% af heildarfasteignamati / 1.6% fyrir lögaðila
Fyrstu kaup - 0,4% af heildarfasteignamati
2. Þinglýsingagjald af kaupsamningi, veðskuldabréfi, veðleyfi o.fl.- kr. 2.700 af hverju skjali.
3. Lántökugjald lánastofnunar
4. Umsýsluþóknun til fasteignasölu, sbr.kauptilboð.

Fáðu nýja innsýn á Húsasjá
- Verðmat fasteignar
- Sölusaga og verðþróun
- Samanburður sambærilegra eigna







































