Áshamar 20
03-0205 · 221 Hafnarfirði



516 dagar á sölu
84.900.000 kr
778.899 kr/m²
Betri Stofan fasteignasala kynnir nýtt glæsilegt fjögurra hæða lyftuhús við Áshamar 20-22 í Hamranesi, Hafnarfirði. Um er að ræða tveggja, þriggja og fjögrra herbergja íbúðir þar sem hverri íbúð fylgir sér bílastæði í lokaðri bílageymslu.
Bókið skoðun: Þórir Skarphéðinsson lögmaður og löggiltur fasteignasali í síma 844 9591 / thorir@betristofan.is
Hlynur Bjarnason löggiltur fasteignasali í síma 697 9215 / hlynur@betristofan.is
Telma Rut Frímannsdóttir, Aðstoðarmaður fasteignasala í síma 772-3555 - eða telma@betristofan.is
Heimasíða verkefnisins: Áshamar 20-22
Íbúðirnar skilast fullbúnar með gólfefnum. Votrými skilast flísalögð.
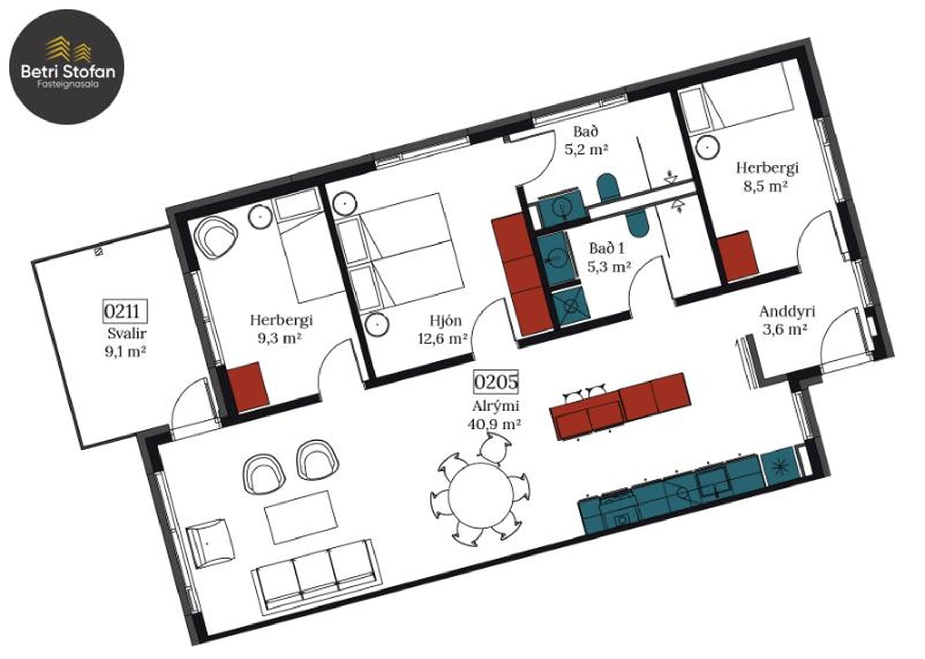
Íbúð 205: Fjögurra herbergja íbúð. 109 fermetrar. Bílastæði merkt B060
Afhending íbúða er mars/apríl 2025.
Allur frágangur, uppbygging og orkunotkun hússins tekur mið af leiðbeinandi stigakröfum Svansins.
Nánar um íbúðirnar
Innréttingar frá HTH, annars vegar spónlagðar og hinsvegar með hvítu yfirborði lögðu Melamini.
Eldhústæki: Allur búnaður er frá AEG. Spanhelluborð með 4 hellum, blástursofn með stáláferð, gufugleypir/eyjuháfur eftir því sem við á. Stáleldhúsvaskur með einu hólfi. Hitastýrð einnar handar blöndunartæki frá Grohe.
Baðherbergi: Vegghengt salerni, speglaskápur fyrir ofan vask, sturta með flísalögðum sturtubotni. Allur búnaður er frá Grohe.
Svefnherbergi: Fataskápar eru í svefnherbergjum.
Geymslur fylgja öllum íbúðum.
Merkt bílastæði í bílageymslu fylgir öllum íbúðum.
Lagnaleið fyrir mögulega rafhleðslutengingu er við hvert bílastæði.
Sjá skilalýsingu: Skilalýsing
Byggingaraðili húsins er Eykt ehf.
Eykt ehf er traustur verktaki til fjölda ára: Sjá nánar um verktakan (www.eykt.is)
Hönnun:
Arkitekt: T.ark – Teiknistofan Arkitektar
Burðarþol og lagnir: Teknik Verkfræðistofa
Raflagnir: Voltorka
Lóð: Landhönnun
Kaupandi greiðir skipulagsgjald af endanlegu brunabótamati eignarinnar.
Frábær staðsetning þar sem stutt er í helstu þjónustu, skóla, leiksskóla, verslun og falleg útivistarsvæði.
Nánari upplýsingar veita:
Þórir Skarphéðinsson lögmaður og löggiltur fasteignasali í síma 844 9591 / thorir@betristofan.is
Hlynur Bjarnason löggiltur fasteignasali í síma 697 9215 / hlynur@betristofan.is
Telma Rut Frímannsdóttir, Aðstoðarmaður fasteignasala í síma 772-3555 - eða telma@betristofan.is
Gjöld sem kaupandi þarf að standa straum af ef að kaupum verður:
1. Stimpilgjald af fasteignamati fasteignar er 0.8%, en 0,4% fyrir fyrstu kaup og 1,6% fyrir lögaðila.
2. Þinglýsingargjald: kaupsamningi, skuldabréfi, veðleyfi, afsali o.s.frv. er kr. 3.800 af hverju skjali.
3. Lántökukostnaður samkvæmt verðskrá viðkomandi lánastofnunar.
4. Umsýslugjald til fasteignasölu skv. gjaldskrá.
Skoðunarskylda kaupanda:
Í lögum um fasteignakaup nr. 40/2002 er kveðið á um ríka skoðunarskyldu kaupenda á fasteignum. Betri Stofan fasteignasala bendir væntanlegum kaupendum á að kynna sér vel ástand fasteigna við skoðun og fyrir tilboðsgerð og ef þurfa þykir að leita til sérfræðinga um nánari ástandsskoðun.

Dýpri greining á Húsasjá
- Verðmat fasteignar
- Sölusaga og verðþróun
- Samanburður sambærilegra eigna