Áshamar 16
02-0503 · 221 Hafnarfirði



681 dagar á sölu
69.000.000 kr
859.278 kr/m²
MÖGULEIKI Á HLUTDEILDARLÁNI FRÁ HMS - NÁNAR UM ÞAÐ HÉR
Íbúðirnar skilast fullbúnar með gólfefnum
Hraunhamar kynnir: Glæsilega nýbyggingu á frábærum stað í Hamraneshverfinu í Hafnarfiði, þar sem stutt er í alla helstu þjónustu.
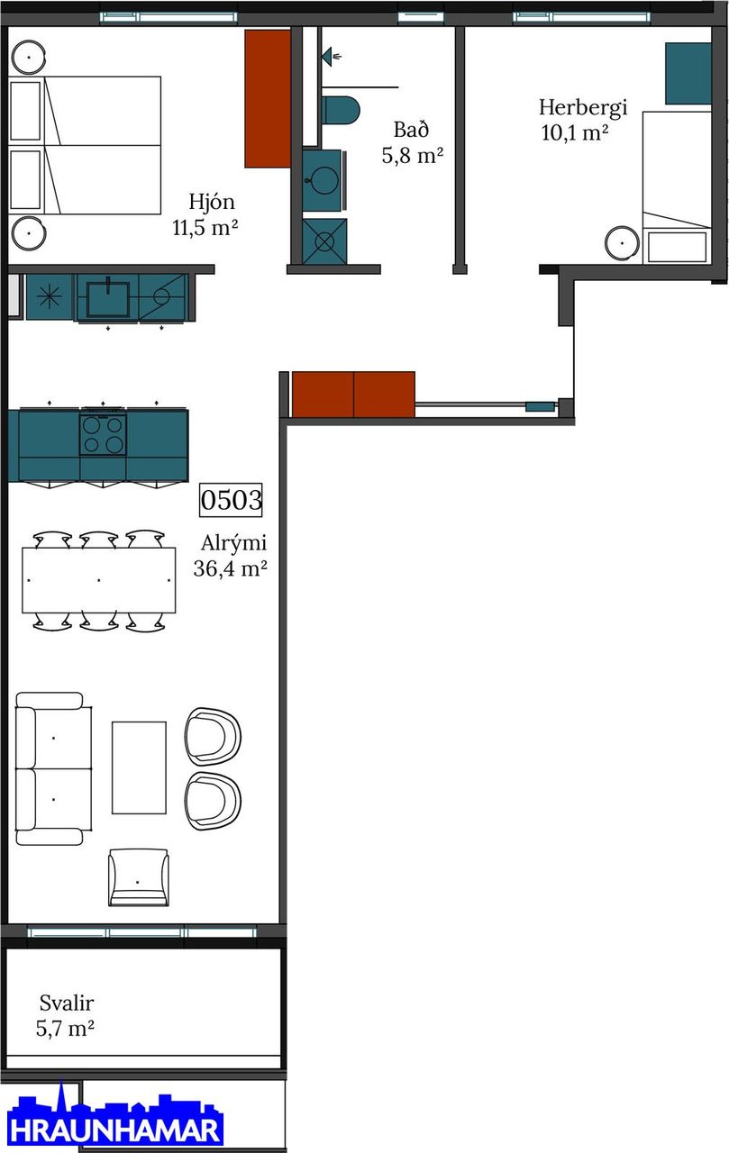
Íbúð 503 er þriggja herbergja íbúð á efstu hæð, skráð 80,3 fermetrar með geymslu. Auk þess fylgir stæði með í lokaðri bílageymslu.
Afhending við kaupsamning.
Sjá nánar um íbúðina hér.
Íbúðirnar afhendast fullbúnar án gólfefna en votrými verða flísalögð.
Húsið er klætt að utan með álklæðningu, og ál/timbur gluggar.
2ja, 3ja og 4ra herb.
Stærð frá 58,0 fm til 124,3 fm.
Verð er frá 51,5 millj.
Áshamar 12-18 verður byggt eftir ströngum eftirlitsstaðli Svansins.
Sjá frekari upplýsingar um Svansvottun nýbygginga með því að smella hér.
Um er að ræða virkilega skemmtilega þriggja herbergja íbúð á 5. hæð (Efstu) með svölum.
Nánari lýsing skv. teikningu:
Forstofa með fataskáp.
Gott opið rými, þar sem eldhús og stofa eru samliggjandi.
Eldhús með smekklegri innréttingu frá HTH og vönduðum eldunartækjum.
Björt stofa og borðstofa og þaðan er útgengt á svalir sem snúa til suðurs.
Hjónaherbergi með fataskápum
Gott svefnherbergi með fataskáp.
Flísalagt baðherbergi með innréttingu, upphengdu salerni og sturtu.
Geymsla í kjallara.
Sér stæði í bílageymslu.
Áshamar 12-18 er hluti af klasabyggingu þar sem skemmtilegur garður mun tengja húsin saman.
Eykt ehf er byggingaraðili hússins sem er reynslumikið og traust byggingarfyrirtæki með áratuga reynslu.
Hægt er að nálgast skilalýsingu og fá nánari upplýsingar hjá Hraunhamri fasteignasölu.
Bókið skoðun hjá sölumönnum Hraunhamars:
Hlynur Halldórsson, löggiltur fasteignasali, s. 698-2603, hlynur@hraunhamar.is
Glódís Helgadóttir, löggiltur fasteignasali, s. 659-0510, glodis@hraunhamar.is
Helgi Jón Harðarson, sölust. s. 893-2233, helgi@hraunhamar.is
​​​​​Einar Örn Ágústsson, löggiltur fasteignasali, s. 888-7979, einar@hraunhamar.is
Skoðunarskylda:
Í lögum um fasteignakaup nr. 40/2002 er kveðið á um ríka skoðunarskyldu kaupenda á fasteignum. Hraunhamar fasteignasala vill benda væntanlegum kaupendum á að kynna sér vel ástand fasteigna fyrir kauptilboðsgerð og ef þurfa þykir að leita til sérfræðinga fyrir nánari ástandsskoðun.
Gjöld sem kaupandi þarf að standa straum af vegna kaupanna:
1. Stimpilgjald af kaupsamningi, fyrstu kaup (0,4%), almenn kaup (0,8%), lögaðilar (1,6%) af heildarfasteignamati.
2. Þinglýsingargjald af kaupsamningi, veðskuldabréfi, mögulegu veðleyfi o.fl. – kr. 3.800 kr. af hverju skjali.
3. Lántökugjald lánastofnunar er skv. verðskrá viðkomandi lánastofnunar.
4. Umsýslugjald til fasteignasölu skv. þjónustusamningi
Hraunhamar er elsta fasteignasala Hafnarfjarðar, stofnuð 1983.
Hraunhamar, í farabroddi í rúm 40 ár ! – Hraunhamar.is
Smelltu hér til að fá frítt söluverðmat.

Dýpri greining á Húsasjá
- Verðmat fasteignar
- Sölusaga og verðþróun
- Samanburður sambærilegra eigna













