Áshamar 18
02-0204 · 221 Hafnarfirði



775 dagar á sölu
69.000.000 kr
843.521 kr/m²
MÖGULEIKI Á HLUTDEILDARLÁNI FRÁ HMS - NÁNAR UM ÞAÐ HÉR
BÓKIÐ SKOÐUN - SÝNUM SAMDÆGURS
Hlynur s.698-2603, Glódís s. 659-0510, Einar s. 888-7575
Hraunhamar kynnir: Glæsilega nýbyggingu á frábærum stað í Hamraneshverfinu í Hafnarfiði, þar sem stutt er í alla helstu þjónustu.
Afhending við kaupsamning.
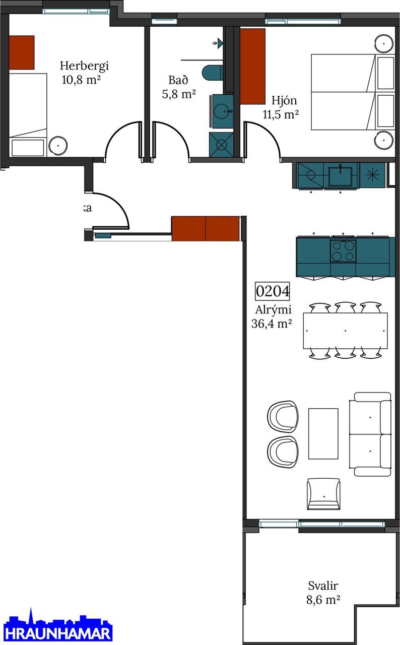
Íbúð 204 er þriggja herbergja íbúð, skráð 81,1 fermetrar með geymslu. Auk þess fylgir stæði með í lokaðri bílageymslu.
Sjá nánar um íbúðina hér. Sjá söluvef íbúða hér.
Íbúðirnar afhendast fullbúnar án gólfefna en votrými verða flísalögð.
Húsið er klætt að utan með álklæðningu, og ál/timbur gluggar.
_________________________
2ja, 3ja og 4ra herb.
Stærð frá 58,0 fm til 124,3 fm.
Verð er frá 51,5 millj.
_________________________
Áshamar 12-18 verður byggt eftir ströngum eftirlitsstaðli Svansins.
Sjá frekari upplýsingar um Svansvottun nýbygginga með því að smella hér.
Afhending við kaupsamning
Nánari lýsing skv. teikningu:
Forstofa með fataskáp.
Gott opið rými, þar sem eldhús og stofa eru samliggjandi.
Eldhús með smekklegri innréttingu frá HTH og vönduðum eldunartækjum.
Björt stofa og borðstofa og þaðan er útgengt á svalir sem snúa til suðurs.
Gott svefnherbergi með fataskáp.
Hjónaherbergi með fataskápum.
Flísalagt baðherbergi með innréttingu, upphengdu salerni og sturtu.
Geymsla í kjallara.
Sér stæði í bílageymslu.
Áshamar 12-18 er hluti af klasabyggingu þar sem skemmtilegur garður mun tengja húsin saman.
Eykt ehf er byggingaraðili hússins sem er reynslumikið og traust byggingarfyrirtæki með áratuga reynslu.
Smelltu hér til að sjá skilalýsingu.
Bókið skoðun hjá sölumönnum Hraunhamars:
Hlynur Halldórsson, löggiltur fasteignasali, s. 698-2603, hlynur@hraunhamar.is
Glódís Helgadóttir, löggiltur fasteignasali, s. 659-0510, glodis@hraunhamar.is
Helgi Jón Harðarson, sölust. s. 893-2233, helgi@hraunhamar.is
​​​​​Einar Örn Ágústsson, löggiltur fasteignasali, s. 888-7979, einar@hraunhamar.is
Skoðunarskylda:
Í lögum um fasteignakaup nr. 40/2002 er kveðið á um ríka skoðunarskyldu kaupenda á fasteignum. Hraunhamar fasteignasala vill benda væntanlegum kaupendum á að kynna sér vel ástand fasteigna fyrir kauptilboðsgerð og ef þurfa þykir að leita til sérfræðinga fyrir nánari ástandsskoðun.
Gjöld sem kaupandi þarf að standa straum af vegna kaupanna:
1. Stimpilgjald af kaupsamningi, fyrstu kaup (0,4%), almenn kaup (0,8%), lögaðilar (1,6%) af heildarfasteignamati.
2. Þinglýsingargjald af kaupsamningi, veðskuldabréfi, mögulegu veðleyfi o.fl. – kr. 3.800 kr. af hverju skjali.
3. Lántökugjald lánastofnunar er skv. verðskrá viðkomandi lánastofnunar.
4. Umsýslugjald til fasteignasölu skv. þjónustusamningi
Hraunhamar er elsta fasteignasala Hafnarfjarðar, stofnuð 1983 og fagnar því 40 ára afmæli á árinu 2023.
Hraunhamar, í farabroddi í 40 ár ! – Hraunhamar.is
Smelltu hér til að fá frítt söluverðmat.

Dýpri greining á Húsasjá
- Verðmat fasteignar
- Sölusaga og verðþróun
- Samanburður sambærilegra eigna

