Úugata 36
01-0101 · 270 Mosfellsbæ



222 dagar á sölu
153.700.000 kr
642.559 kr/m²
Miklaborg kynnir: BÓKIÐ SKOÐUN - SÝNI SAMDÆGURS - TILBÚIÐ TIL AFHENDINGAR! Glæsilegt og vel skipulagt raðhús í nýlegu og fjölskylduvænu hverfi í Mosfellsbæ. Um er að ræða nýbyggt FULLKLÁRAÐ raðhús. Fullkomið heimili fyrir fjölskylduna. Raðhúsið er samtals 239,2 m2 og þar af er bílskúr 27,9 m2. Örstutt í leik- og grunnskóla. Reykjalundaskógur, Helgafell og Reykjafell í næsta nágrenni. Nánari upplýsingar veita Friðjón Örn Magnússon, lögg. fasteignasali í síma 692-2704 eða fridjon@miklaborg.is og Ólafur Finnabogason, lögg. fasteignasali í síma 822-2307 eða olafur@miklaborg.is
Nánari lýsing
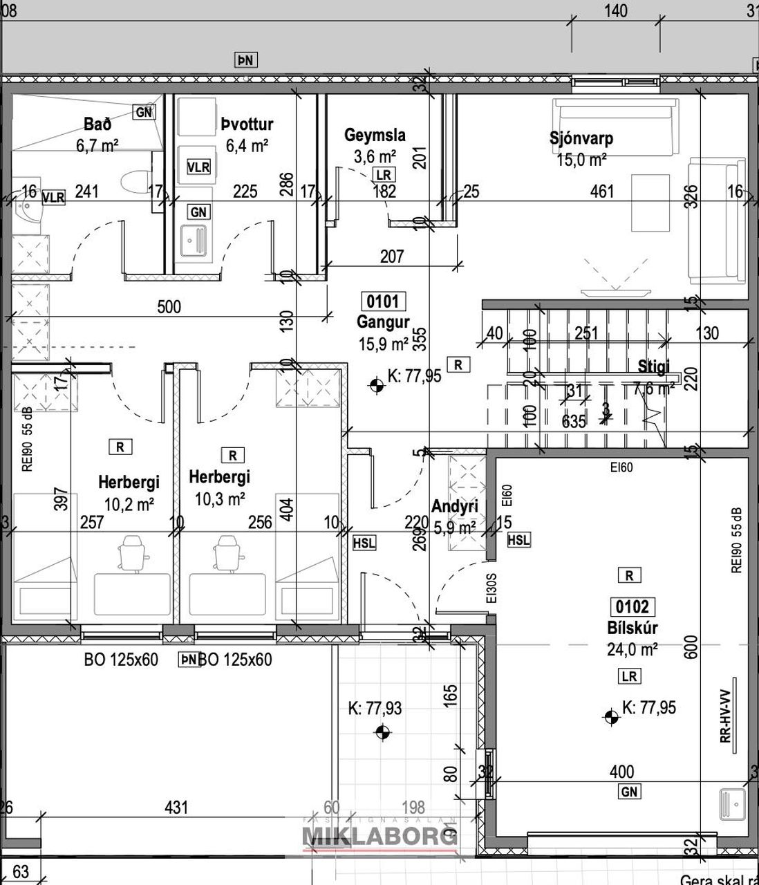
Um er að ræða nýbyggt tvílyft miðjuraðhús með innbyggðum bílskúr sem verður afhent tilbúið til tréverks, fullklárað og frágengin lóð. Húsið er staðsteypt. Útveggir einangraðir að utanverðu með steinull, klætt með álkæðningu. Þakplatan er steypt. Gluggar eru verksmiðjuframleiddir ál / timbur gluggar. Gler er tvöfalt K-gler. Húsið er upphitað með gólfhitalögnum.
Fullkomið heimili fyrir fjölskylduna. Raðhúsið er samtals 239,2 m2 og þar af er bílskúr 27,9 m2. Fjögur svefnherbergi, sjónvarpshol, tvö baðherbergi, þvottahús, geymsla, eldhús, stofa og borðstofa, útengt á stórar svalir frá borðstofu sem snúa í suðvestur, bílskúr. ATH ! Myndir að innan eru tölvugerðar.
Örstutt í leik- og grunnskóla. Reykjalundaskógur, Helgafell og Reykjafell í næsta nágrenni.
Nánari upplýsingar veita Friðjón Örn Magnússon, lögg. fasteignasali í síma 692-2704 eða fridjon@miklaborg.is og Ólafur Finnabogason, lögg. fasteignasali í síma 822-2307 eða olafur@miklaborg.is

Fáðu nýja innsýn á Húsasjá
- Verðmat fasteignar
- Sölusaga og verðþróun
- Samanburður sambærilegra eigna











































