Úugata 26
01-0101 · 270 Mosfellsbæ



90 dagar á sölu
148.900.000 kr
622.492 kr/m²
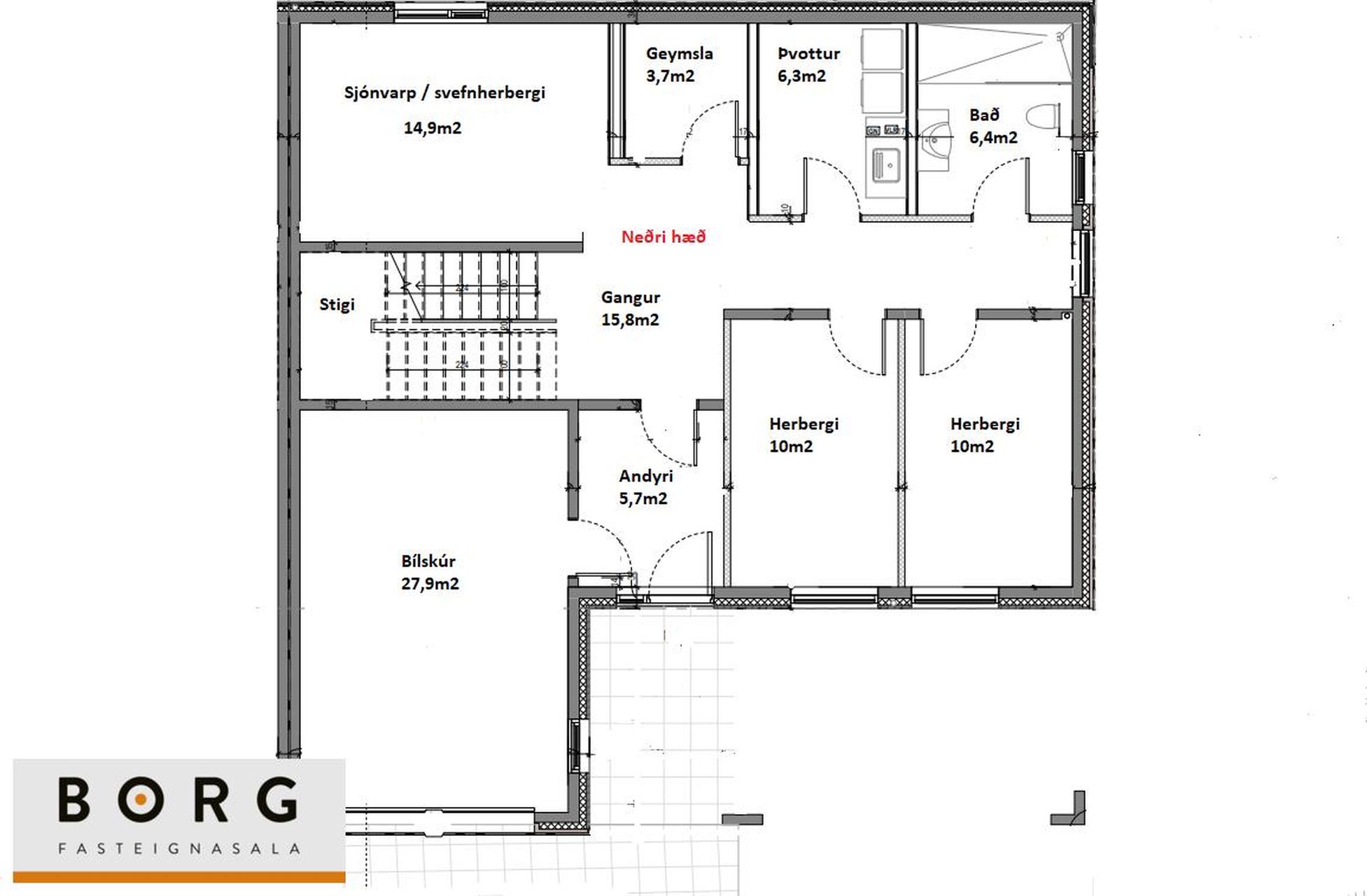
Borg fasteignasala kynnir: Nýtt forsteypt endaraðhús á tveimur hæðum við Úugötu 26 í Mosfellsbæ. Fimm rúmgóð herbergi, tvö stór baðherbergi. Eldhús og stofa í stóru alrými með útgengi út á stórar suð-vestur svalir. Sjónvarpsherbergi er skráð á teikningar en nýtist auðveldlega sem fimmta svefnherbergið. Þvottahús og geymsla. Stór bílskúr. Húsið er samtals 239,2 fm og þar af er bílskúrinn um 28 fm.
Húsið verður afhent tilbúið til innréttinga að innan (byggingarstig 3).
Húsið verður fullbúið að utan, álklæðning á bakhlið, timburklæðning að hluta til að framan. Að innan eru allir milliveggir komnir upp. Búið að sparsla og grunna alla veggi eina umferð. Allt rafmagn tengt, allar vatnslagnir og loftræsting. Handir komið á stiga. Bílskúrshurð með sjálfvirkum opnara. Að framan er lóðin fullbúin; búið að helluleggja bílaplan og tyrfa lóðina. Að baka til er búið að leggja grasþökur. Sjóbræðsla er tilbúin til tengingar.
Byggingarstjóri er tilbúinn að vinna áfram með væntanlegum kaupendum.
Upplýsingar veitir Davíð Ólafsson fasteignasali í síma 897-1533 eða david@fastborg.is
Seljandi greiðir heimtaugagjöld fyrir rafmagn og hita, en kaupandi greiðir 0,3% skipulagsgjald sem er innheimt við endanlegt brunabótarmat.

Dýpri greining á Húsasjá
- Verðmat fasteignar
- Sölusaga og verðþróun
- Samanburður við sambærilegar eignir








