Axlarás 64A
01-0101 · 221 Hafnarfirði



155 dagar á sölu
163.900.000 kr
766.604 kr/m²
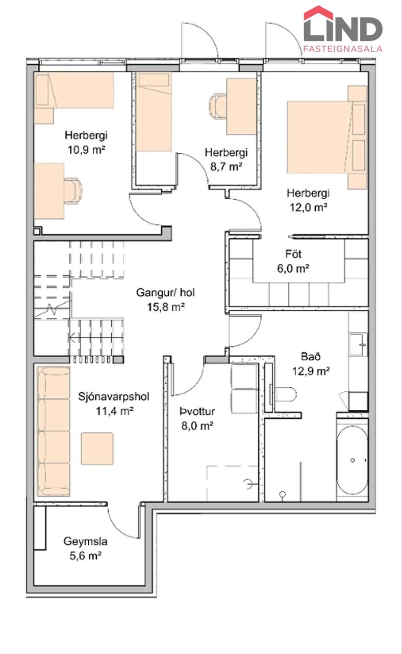
Auður Magnúsdóttir löggiltur fasteignasali og Lind fasteignasala kynna nýtt og vandað endaraðhús á tveimur hæðum með inngangi að ofanverðu við Axlarás 64A í Áslandi Hafnarfirði. Eignin er skráð 213,8 fm og skiptist í forstofu, eldhús, stofu, fjögur svefnherbergi, tvö baðherbergi, þvottahús, sjónvarpsherbergi og tvær geymslur.
Heimasíða verkefnisins má finna hér
Byggingaraðili: Þarfaþing hf.
Aðalhönnuður: Arkís arkitektar ehf.
Eignin skilast fullbúin án gólfefna. Gólf í forstofu, baðherbergjum, þvottahúsi og geymslum eru flísalögð. Sjá skilalýsingu hér.
Nánari lýsing:
2.hæð
Forstofa: Rúmgóð forstofa með góðu skápaplássi. Þakgluggi sem veitir fallegri birtu inní rýmið. Skápar eru sérsmíðaðir frá Selós. Úr anddyri er gengið inní geymslu.
Geymsla: Innaf forstofu, flísar á gólfi, tvöföld útihurð. 10,6 fm
Borðstofa/stofa: Rúmgott og bjart alrými. Stórir gluggar sem gefa fallega birtu inní rýmið, hátt til lofts. Loftadúkur með innfeldri lýsingu. Auka lagnaleiðir voru lagðar að öllum gluggum, svo auðvelt sé að snjallvæða húsið.
Eldhús: opið við borðstofu/stofu. Rúmgott eldhús með góðu skápaplássi. Eldhúsinnrétting frá Selós, borðplötur eru 20 mm þykkar út Dekton steini með undirlímdum vaski. Eldhústæki eru frá Ormsson af gerðinni AEG. Innbyggður ísskápur, frystir, uppþvottavél fylgir. Bakaraofn og helluborð með innbyggðum háf. útgengi út á sólpall.
Snyrting: Flísar á gólfi og vegg að hluta. Upphengt salerni. Innrétting frá Selós, matt beige að lit. Borðplata úr Dekton stein.
Herbergi: með fataskáp, 8,7 fm
1.hæð
Sjónvarpshol: 11,4 fm, Inna sjónvarpsholi er geymsla/lagnarými.
Geymsla: 5,6 fm.
Baðherbergi: Flísar á gólfi og vegg að hluta. Rúmgóð sturta með sturtu gleri ásamt baðkari. Innrétting frá Selós. Borðplötur eru sér smíðaðar úr Dekton stein 20mm þykkar með undirlímdum vaski.
Þvottahús: sér þvottahús. Flísar á gólfi. Innrétting frá Selós, matt beige að lit. Auka sturta í þvottahúsi.
Herbergi: 12,0 fm, fataherbergi 6,0 fm. Útgengi út á sólpall.
Herbergi: með fataskáp. 8,7 fm. Útgengi út á sólpall.
Herbergi: með fataskáp. 10,9 fm.
Lóð: lóðin verður fullfrágengin með burstuðu Lunawood sólpöllum og girðingum. Aðgengi verður hellulagt með snjóbræðslu samkvæmt lagnateikningum. Gróðurbeð verða grófjöfnuð en gróður fylgir ekki. Ídráttur fyrir rafbílahleðslu verður lagður.
*Gólfhiti.
*Flísar frá Ebson ehf
*Loft í alrými eru dúkaloft frá Parka.
*Innréttingarnar eru af vandaðri gerð frá Selós, liturinn á öllum skápafrontum er ljósdrappaður.
*Borðplötur eru úr Dekton stein frá Cosentino/Rein steinsmiðja.
*Innihurðar eru hvítar yfirfelldar í yfirhæð (220cm) af gerðini Dana frá Parka ehf.
*Vélræn loftræsting með varmahjóli. Loftræsi samstæða er staðsett í geymslu.
*Auka lagnaleiðir voru lagðar að öllum gluggum, svo auðvelt sé að snjallvæða húsið.
*Gert er ráð fyrir tengimöguleika fyrir heitan pott á báðum hliðum hússins.
Nánari upplýsingar veitir Auður Magnúsdóttir Löggiltur fasteignasali, í síma 8482666, tölvupóstur audur@fastlind.is.
-----------------------------------------------------------------------
Gjöld sem kaupandi þarf að standa straum af vegna kaupanna:
1. Stimpilgjald af kaupsamningi - 0.8% af heildarfasteignamati / 1.6% fyrir lögaðila
Fyrstu kaup - 0,4% af heildarfasteignamati
2. Þinglýsingagjald af kaupsamningi, veðskuldabréfi, veðleyfi o.fl.- kr. 2.700 af hverju skjali.
3. Lántökugjald lánastofnunar
4. Umsýsluþóknun til fasteignasölu, sbr.kauptilboð.

Fáðu nýja innsýn á Húsasjá
- Verðmat fasteignar
- Sölusaga og verðþróun
- Samanburður sambærilegra eigna


















































