Axlarás 35
01-0101 · 221 Hafnarfirði



281 dagar á sölu
139.900.000 kr
588.805 kr/m²
Eitt hús eftir.
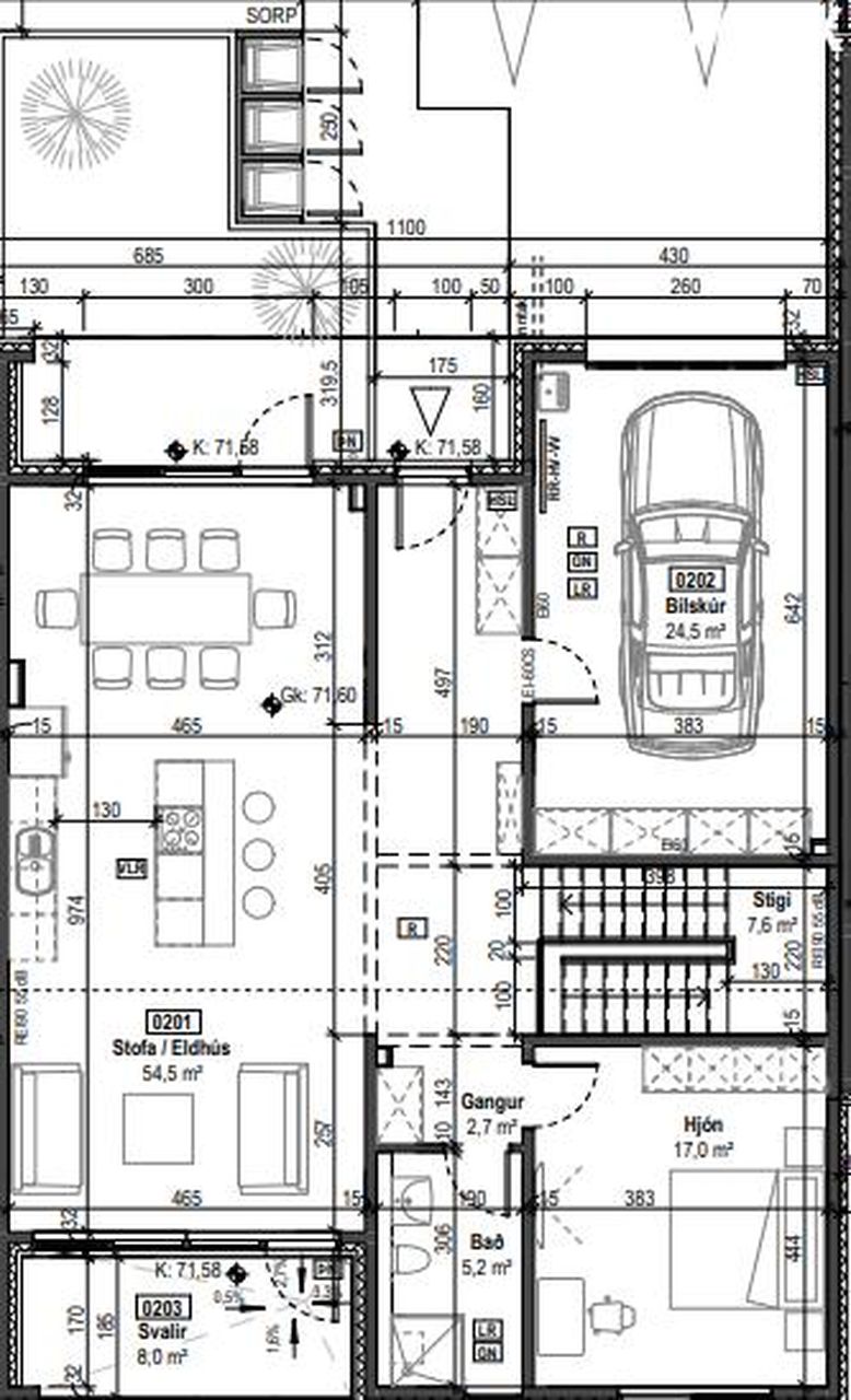
Pétur Ásgeirsson löggiltur fasteignasali hjá RE/MAX fasteignasölu kynnir: Glæsilegt 237,6,fm raðhús á tveimur hæðum með bílskúr við Axlarás 35 í Áslandi Hafnarfirði. Frábær staðsetning í suður hlíðum Ásfjalls sem er vinsælt og fjölskylduvænt svæði með fjölbreyttum möguleikum til útivistar (Hvaleyrarvatn og Helgafell í bakgarðinum. Eignin er skráð íbúð 209,5 fm og bílskúr 28,1 fm og skiptist í stofu, eldhús, sex svefnherbergi, 2 baðherbergi, sjónvarpsherbergi og þvottahús. -
Allar inni myndir eru teknar í Axlarás 35.
Húsið skilast á byggingarstigi 3 tilbúið til innréttinga.
Húsið skilast samkvæmt skilalýsingu.
* Hægt að hafa 6 svefnherbergi.
* Glæsilegt útsýni.
* Stórar svalir.
* Sérafnotareitur bæði að framan og aftan.
* Mjög hátt til lofts.
* Stórt alrými.
* Mjög stór bílskúr.
Við hönnun hússins er lögð áhersla á að njóta útsýnis og sólar, meðal annars með stórum svölum, þá er lögð áhersla á að sjónrænt myndi húsið heildarsvip og að samræming sé í efnis og litavali.
Húsið er forsteypt einingahús frá Steypustöðinni/ Loftorku ehf.Húsið stendur neðan við götu. Eignin er seld á byggingarstigi 3(stig 5 skv. eldri staðli). Fullgerð bygging að utan og tilbúin til innréttingar samkvæmt staðli ÍST 51. Við hönnun hússins er lögð áhersla á að njóta útsýnis og sólar, meðal annars með stórum svölum, þá er lögð áhersla á að sjónrænt myndi húsið heildarsvip og að samræming sé í efnis og litavali.
Húsið er forsteypt einingahús frá Steypustöðinni/ Loftorku ehf.Húsið stendur neðan við götu. Eignin er seld á byggingarstigi 3(stig 5 skv. eldri staðli). Fullgerð bygging að utan og tilbúin til innréttingar samkvæmt staðli ÍST
Til viðbótar við byggingarstig 3 verður hluta af lóðarfrágangi lokið, hellulögn með snjóbræðslu. Steyptir stoðveggir og stigi með handriði
Burðarvirki:
Burðarvirki hússins eru úr forsteyptum einingum, útveggir úr samlokueiningum.
Sökklar, botnplata: Staðsteypt járnbent steinsteypa.
Útveggir:For steyptar samlokueiningar, járnbent steinsteypa.
Gólfplötur/ loftaplötur: For steyptar Filigranplötur / staðsteypt / járnbent steinsteypa.
Útveggir:
Húsið er einangrað að utan með pússaðri áferð, veggir verða málaðir í ákveðnum jarðlit.
Innveggir:
Burðarveggir og innveggir eru forsteyptir járnbentir veggir, skilast sparslaðir og málaðir, grunnur+1umferð.
Loft:
Forsteyptar fíligran loftplötur eru slípaðar og sandspartlaðar, grunnaðar og málaðar eina umferð.
Þak:
Flatt þak staðsteypt með vatnshalla að niðurföllum. Á þakplötunni er einangrun,
þakdúkur og sjávarmöl samkvæmt teikningu hönnuðar.
Niðurföll eru tengd regnsvatnslögnum. Þök og þakbrúnir skilast fullgerðar og
frágengnar með endalegri yfirborðsáferð, ásamt rennum og niðurföllum.
Svalir.
Svalir/ svalagólf eru úr for steyptri járnbentri steinsteypu. Svalagólf eru með sléttri áferð. Svala loft eru steypt með sléttri áferð,.
Handrið á svölum er dökkt gler.
Gluggar:
Gluggar eru ál/tré-gluggar, karmar úr furu, klæddir að utan með áli. Opnanleg fög eru ál/ tré, en hurðakarmar svalahurða og sameignahurða eru úr fura. Allir opnanlegir rammar skulu vera topphengdir. Gler: Gler verður 1. flokks með 5 ára ábyrgð frá framleiðanda. Gluggar eru frá gluggatækni.
Lóð:
Að utan skilast hellulögð, með snjóbræðslu að hluta.
Gólf:
Skilast tilbúin undir gólfefni.
Loftræsing:
Húsið er með loftskipti kerfi þ.e rafknúin loftræsing, loftræsting er í hverju herbergi.
Raflagnir.
Lýsing: vinnuljós eru tengd í hverju herbergi. Rofar og tenglar fylgja ekki.
Loftræsi-, vatns- og þrifalagnir: loftræsi-, vatns- og þrifalagnir fylgja frágengnar skv. teikningum.
Rafmagns og sjónvarpslagnir: rafmagns- síma- og fjarskiptalögn fylgir . Tenglar fylgja ekki, en öllum ídrætti er lokið.
Hitalagnir.
Gólfhiti er á báðum hæðum í húsinu
Kaupandi greiðir skipulagsgjald þegar. Það verður innheimt (0,3% af væntanlegu brunabótamati).
Nánari upplýsingar gefur Pétur Ásgeirsson löggiltur fasteignasali í síma 893-6513 / petur@remax.is
Vegna mikillar eftirspurnar vantar mig allar tegundir eigna á skrá. Hafðu samband og ég mun verðmeta eign þína þér að kostnaðarlausu.
Gjöld sem kaupandi þarf að standa straum af vegna kaupanna:
1. Stimpilgjald af kaupsamningi - 0,8%(einstaklingar) 1.6% (lögaðilar) af heildarfasteignamati.
2. Þinglýsingargjald af kaupsamningi, veðskuldabréfi, mögulegu veðleyfi o.fl. - kr. 2.700 af hverju skjali.
3. Lántökugjald lánastofnunar - almennt 45-75 þús.kr. Nánari upplýsingar á heimasíðu lánastofnana.
4. Umsýslugjald til fasteignasölu kr. 69.900 mvsk.

Fáðu nýja innsýn á Húsasjá
- Verðmat fasteignar
- Sölusaga og verðþróun
- Samanburður sambærilegra eigna





















