Axlarás 3
01-0101 · 221 Hafnarfirði



149 dagar á sölu
176.900.000 kr
824.709 kr/m²
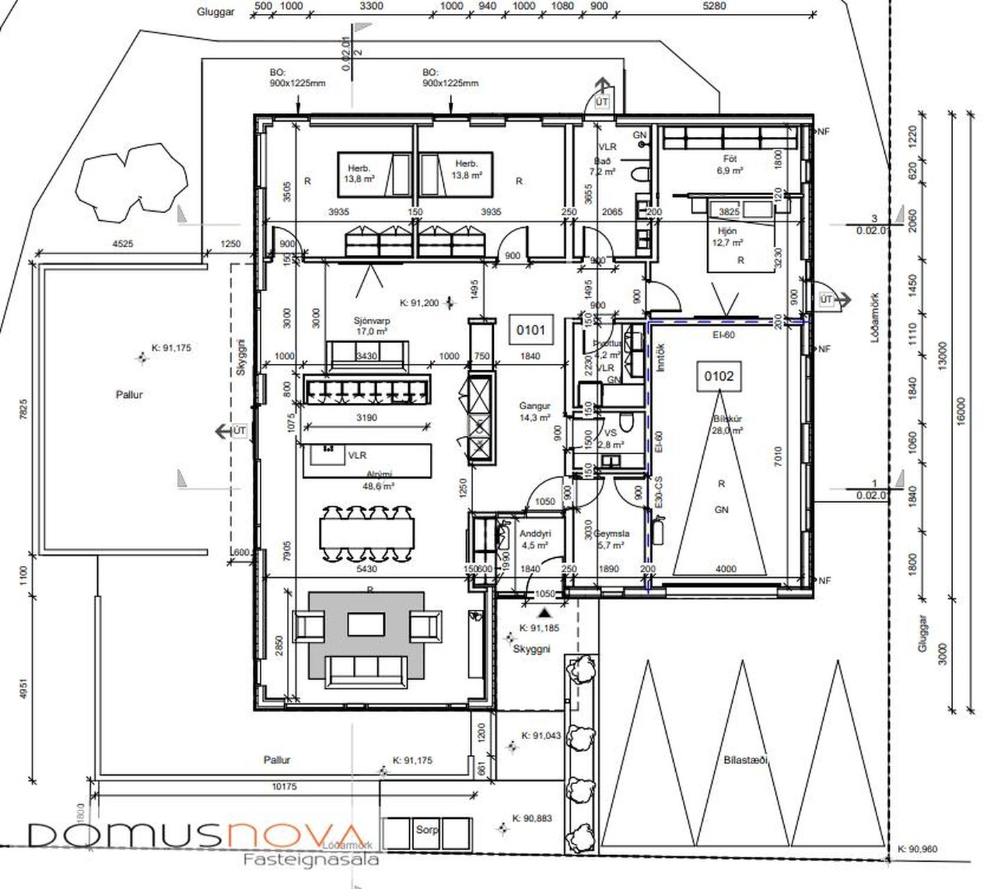
Domusnova fasteignasala kynnir til sölu glæsilegt einbýlishús á einni hæð í Áslandi 4 til sölu. Sérstaklega vel vandað í hönnun, efnisvali og tæknilausnum. Auglýst verð miðast við að húsið skilast fullbúið að utan sem innan ásamt öllum lóðarfrágangi. Birt stærð samtals 214,5m2 og þar af er bílskúr 32,8m2. Lóðin er 675m2. Fallegt útsýni er frá húsinu í átt að Helgafelli og yfir Reykjanesfjallgarðinn. Húsið er teiknað af Sigurði Hallgrímssyni arkitekt og traustur byggingaraðili byggir húsið. Innréttingar og heimilistæki í hágæðaflokki.
*Húsið er með Free@home snjallkerfi (stýring á ljósum og gólfhita). Sjá hér
*Mikil lofthæð. Fallegt útsýni.
*Mjög öflug loftskiptavél (seld í Fálkanum) sem tryggir mikil loftgæði innanhús og virkar vel með gólfhita.
*Tvö baðherbergi.
*Gólfhiti.
Lýsing eignar:
Forstofa: Mjög rúmgóð flísalögð forstofa með stórum fataskáp í black oak lit frá Eirvík.
Eldhús/stofa: Saman í einu rými þar sem mikið er gert úr að birta dreifi sér vel, mikil lofthæð um 3.7m, hljóðdempandi loftdúkur er í alrými og herbergjum. Þýskar gæða innréttingar frá Hacker í Black Oak lit og öll tæki frá Miele og Liebherr (afgreitt af Eirvík). Tveir (side by side ) ísskápar í innréttingu með klakavél (Sjá ísskáp hér). Tveir ofnar í eldhúsi, hefðbundinn blástursofn og annar sem er örbylgju/bakaraofn (Miele). Helluborð með innbyggðum gufugleypi Sjá hér (Miele). Stór eyja í eldhúsi úr Quartz stein frá Granítsteinar. Steinninn mun fljóta niður báðar hliðar á eyjunni, einnig er steinn á borðplötu hjá vask og milli plötu og efri skápa, einnig inn í tækjaskáp. Gert er ráð fyrir parket eða vínil parket á gólfi. Gólfsíðir gluggar og víðsýnt með fallegu útsýni. Rennihurð með aðgengi út á timburverönd.
Sjónvarpshorn: Sér sjónvarpshorn er í húsinu.
Gestasalerni: Fallega hannað gestasalerni með innbyggðu klósetti og innréttingum frá Hacker. Grohe blöndunartæki.
Baðherbergi: Stór sturta með innbyggðum tækjum og glervegg, innréttingar frá Hacker, Grohe blöndunartæki. Hurð er á baði til að komast út í garð.
Þvottahús: Með góðu skápaplássi, vinnuborði og skolvask. Innréttingin frá Eirvík.
Svefnherbergi I: Stórt og rúmgott herbergi með fataherbergi (Hacker fataskápar) innan af samtals 19,6m2. Hólf er fyrir gardínur með óbeinni baklýsingu. Lofthæð um 2.94m. Hurð út í garð.
Svefnherbergi II: Stórt og rúmgott herbergi 13,8m2 með fataskápum frá Hacker. Gólfsíðir gluggar, gardínu hólf með baklýsingu. Lofthæð 2.94m.
Svefnherbergi III: Stórt og rúmgott herbergi 13,8m2 með fataskápum frá Hacker. Gólfsíðir gluggar, gardínu hólf með baklýsingu. Lofthæð 2.94m.
Geymsla: 5,7m2 geymsla er milli anddyri og bílskúrs.
Pallur/verönd: Fyrir aftan hús er búið að gera ráð fyrir heitum potti (pottur fylgir ekki). Húsið skilast með fullkláruðum timburpalli og hellulögn í kringum húsið (sjá teikningar).
Bílskúr: Rúmgóður bílskúr, innangengt úr húsi, epoxy á gólfi, Bílskúrshurð frá Héðins hurðum. Rafmagnsopnari á hurð.
Bílastæði: Fyrir framan húsið eru þrjú bílastæði, hellulögð með snjóbræðslu.
Annað:
*Allar innréttingar eru frá Hacker (Eirvík), heimilistæki eru frá Miele og Liebherr. Hurðir frá Ringo (Birgisson) og hreinlætistæki frá Grohe.
*Gert er ráð fyrir timburverönd og skjólveggjum.
*Gluggar eru frá Velfag með 3 földu gleri sem tryggir góða hljóðvist og varmanýtni, gluggar með opnanlegri loftrauf. Álklæðning er á húsinu frá Málmtækni í litnum Aged Oxid Copper.
*Allir innveggir eru með trefjagifsi sem tryggir bestu mögulegu hljóðvist og brunavörn.
*Kaupandi getur haft áhrif á val á gólfefnum, parket, flísar og litaval á málningu.
*Sjá upplýsingar HÉR um Ásland 4.
Niðurlag: Glæsilegt einbýlishús á einni hæð þar sem hvergi hefur verið til sparað. Húsið afhendist fullbúið að öllu leyti bæði að innan sem utan.
****'Áætluð afhending 15.apríl 2026****
Nánari upplýsingar veita:
Andri Hrafn Agnarsson löggiltur fasteignasali / s.6982127 / andri@domusnova.is
Skrifstofa / s.527-1717 / eignir@domusnova.is
Úr Byggingarlýsingu og greinagerð hönnuða:
Burðarvirki:
Allar undirstöður eru úr járnbentri steinsteypu (staðsteypt).
Burðarvirki í gólfplötu er 130mm steypa.
Allir burðarveggir eru hefðbundnir 45x145mm timbur veggir, T1 burðaviður (heflað).
Burðarvirki á þaki er hefðbundið krossloftað 45x245mm sperru þak, T1 burðaviður (heflað).
Timbur sperrur munu hvíla svo ofan á útveggjar burðargrind ásamt burðarveggjum að innan.
Útveggir:
Útveggir eru klæddir með loftræstri (25mm lektur) álpönnuklæðningu.
Allir útveggir verða hannaðir með öndunardúk, snjógildrum og músaneti.
Þak:
Þak typa 1 er sperru þak (uppbygging= heit þak) með vatnshalla a.m.k 4°, yfirborð verður með tvöföldum
ábræddum viðurkenndum þakpappa - val á undir og yfir pappa er skv. fyrirskrift arkitekts.
Þök eru annaðhvort loftuð með 4x32mm (með skórdýraneti) loftunarörum milli hverja sperru EÐA
krossloftun milli yfir og undir timbur-lektur á þaki, með þessari aðferð þarf að koma gufuopið
vatnsvarnarlag yfir sperrur, t.d Siga Majcoat eða sambærilegt.
Loftun úr hverju loftbili skuli vera amk. 1.000 mm2 fyrir hvern m2 þakflatar, sbr. gr. 10.5.5. í
byggingarreglugerð 112/2012
Gluggar og hurðir:
Allir gluggar og útihurðir eru hefðbundnir ál/timbur og glerjað með tvöföldu gleri, litur dökkur.
Allt gler sem nær niður að gólfi eða minna en 600mm uppí gler skal það vera öryggisgler og
uppbygging (Hert og/eða samlímt) aðlöguð aðstæðum.
Einangrun:
Botnplata er einangruð með 24kg/m3 100mm einangrunarplasti, veggir sökkla eru
einangraðir niður fyrir plötu með 75 mm einangrunarplasti að grunni. Útveggir eru
einangraðir með 145mm steinull milli stoða. Sperru þak er einangrað með 200mm þéttull
m/vindpappa. Í gluggum er tvöfalt einangrunargler, 12 mm loftrúm í föstum gluggum en 9
mm loftrúm í opnanlegum fögum og hurðum.
Uppfylla skal ÍST - 66 varðandi kólnunartölur og einangrun einstakra
byggingarhluta.
Innanhússfrágangur:
Klæðningar innanhúss eru a.m.k. í flokki 2.
Innveggir:
Innveggir eru úr timburstoðum og einfalt trefjagifs.
Í votrýmum eiga að koma vatnsvarðar plötur svo flísalögn.
Innihurðir:
Innihurðir eru hefðbundnar timburhurðir.
Hindrunarlaus umferðarbreidd allra útidyra byggingar skal vera minnst 0,83 m og hæð minnst 2,07 m
Hindrunarlaus umferðarbreidd allra dyra innanhúss skal vera minnst 0,80 m og hæð minnst 2,00 m
Útitröppur:
Gönguhlutfall útitrappa við inngang er uppstig 150mm, framstig 1500mm og ekkert innskot.
Gólfefni:
Á helstu gólfum verður parketlögn.
Flísar verða svo í öllum votrýmum og við anddyri.
Bílskúr verður gólfið epoxy málað.
Loft:
Dúkaloft
Byggingaraðili: Íbygg hf.
Nánari upplýsingar veita:
Andri Hrafn Agnarsson löggiltur fasteignasali / s.6982127 / andri@domusnova.is
Skrifstofa / s.527-1717 / eignir@domusnova.is
Um skoðunar- og aðgæsluskyldu:
Í lögum um fasteignakaup nr. 40/2002 er kveðið á um ríka skoðunarskyldu kaupenda á fasteignum. DOMUSNOVA fasteignasala bendir væntanlegum kaupendum á að kynna sér vel ástand fasteigna við skoðun og fyrir tilboðsgerð og ef þurfa þykir að leita til sérfræðinga um nánari ástandsskoðun.
Forsendur söluyfirlits:
Söluyfirlit er samið af fasteignasala í samræmi við ákvæði laga nr. 70/2015. Þær upplýsingar sem fram koma í söluyfirliti þessu eru sóttar í opinberar skrár, til seljanda sjálfs og eftir atvikum til húsfélags. Seljandi veitir upplýsingar um eign í samræmi við upplýsingaskyldu laga um fasteignakaup nr. 40/2002, og ábyrgist að þær séu réttar. Fasteignasali sannreynir að þær upplýsingar séu réttar með sjónskoðun á eigninni. Fasteignasali getur ekki fullyrt um ástand og eiginleika þeirra hluta fasteigna sem ekki eru aðgengilegir og sjást ekki berum augum, t.d. lagnir, dren, skólp og þak. Það sama á við um staðhæfingar seljanda eignar um viðhald og einstaka framkvæmdir.
Um ástand einstakra eignarhluta:
Efst í söluyfirlitli þessu er að finna dálka um ástand einstakra hluta eignarinnar. Eftirfarandi lykil er til skýringar á þeirri skráningu:
Nýtt - Eignin er nýbygging.
Upprunalegt - Seljandi veit ekki til þess að byggingarhluti hafi verið endurnýjaður.
Endurnýjað - Byggingarhlutinn hefur verið endurnýjaður í heild sinni á einhverjum tímapunkti.
Endurnýjað að hluta - Hluti byggingarhlutans hefur verið endurnýjaður á einhverjum tímapunkti.
Ekki vitað - Seljandi þekkir ekki til ástands og ekki er hægt að leggja mat á það með sjónskoðun.
Gjöld sem kaupandi þarf að standa straum af vegna kaupanna:Stimpilgjald af kaupsamningi sem er hlutfall af fasteignamati. Stimpilgjald er 0,8% fyrir einstaklinga (0,4% við fyrstu kaup) og 1,6% fyrir lögaðila.Þinglýsingargjald af kaupsamningi, veðskuldabréfum, veðleyfum o.fl. Þinglýsingargjald er kr. 2.700,- fyrir hvert skjal.Lántökugjald lánastofnunar. Um lántökugjald vísast í gjaldskrá viðkomandi lánveitanda.Umsýsluþóknun fasteignasölu skv. gjaldskrá.Ef um nýbyggingu er að ræða greiðir kaupandi skipulagsgjald, 0,3% af brunabótamáti, þegar það er lagt á.

Dýpri greining á Húsasjá
- Verðmat fasteignar
- Sölusaga og verðþróun
- Samanburður sambærilegra eigna






















