Norðurhella 13
01-0106 · 221 Hafnarfirði



45 dagar á sölu
51.900.000 kr
1.138.158 kr/m²
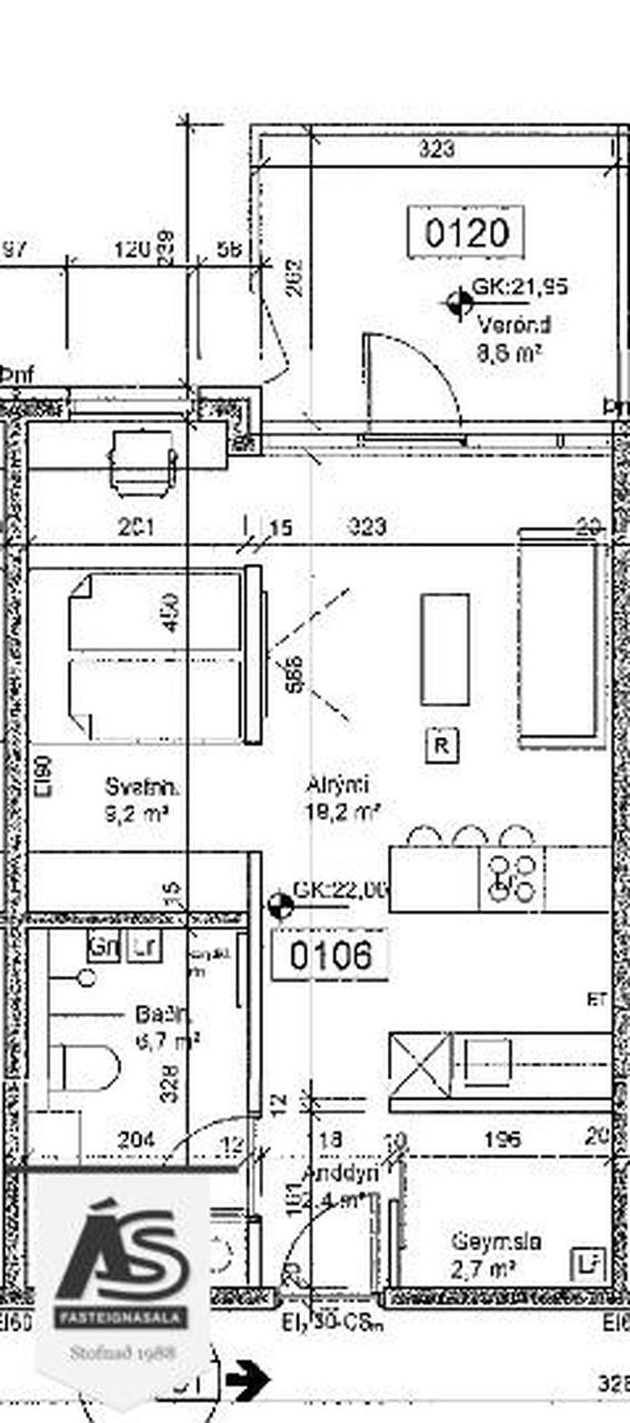
45,6 fm 2ja herbergja íbúð á jarðhæð með sérafnotafleti við Norðurhellu 13, 221 Hafnarfirði.
Allir skráðir fermetrar eru innan íbúðar skv. HMS.
Nánari lýsing: Anddyri með fatahengi. Eldhús, stofa og borðstofa í rúmgóðu alrými með útg. á c.a. 8,6 fm verönd með skjólveggjum. Eldhús með innbyggðum ísskápi og uppþvottavél, eyju með barstólaaðstöðu, helluborði og ofni. Svefnherbergi með skápum. Baðherbergi með walk-in sturtu, vegghengdu salerni, handklæðaofni og tengi fyrir þvottavél og þurrkara. Geymsla innaf anddyri sem er í dag notað sem fataherbergi.
Sameiginleg hjóla- og vagnageymsla er á lóðinni.
Frábær staðsetning þar sem helstu þjónustu má finna í göngufæri en þar má nefna matvörubúðir, líkamsræktir, apótek, íþróttasvæði Hauka, Ásvallalaug, grunn- og leikskóla og falleg útivistarsvæði.
Nánari upplýsingar veitir Arnór Daði Eiríksson löggiltur fasteignasali í s. 777-0939 / arnor@as.is og Aron Freyr Eiríksson löggiltur fasteignasali í s. 772-7376 / aron@as.is
Ás fasteignasala er rótgróið fyrirtæki sem hefur veitt alla almenna þjónustu í fasteignaviðskiptum frá árinu 1988.
www.facebook.com/asfasteignasala
www.instagram.com/as_fasteignasala
www.as.is

Fáðu nýja innsýn á Húsasjá
- Verðmat fasteignar
- Sölusaga og verðþróun
- Samanburður sambærilegra eigna

























