Hávegur 2
01-0104 · 200 Kópavogi



388 dagar á sölu
89.900.000 kr
873.664 kr/m²
Eignamiðlun kynnir:
DIGRANES: Hávegur 2,íbúð 01-04, 200 Kópavogi. Mjög vönduð 102.9 fm 4 herbergja íbúð í nýju glæsilegu lyftuhúsi í Kópavogi. Sérgeymsla í sameign og sérmerkt stæði í bílageymslu fylgir öllum íbúðum og möguleiki er að kaupa aukastæði í bílageymslu. HEIMASÍÐA SMELLIÐ HÉR
*TIL AFHENDINGAR VIÐ KAUPSAMNING *Bókið skoðun sýnum samdægurs !
BÓKAÐU SKOÐUN HJÁ DAÐA Í SÍMA 824-9096, HILMARI Í SÍMA 824-9098 EÐA ÞÓRARNI Í SÍMA 899-1882.
SJÁ NÁNAR UM EIGNINA Í SKILALÝSINGU. SMELLTU HÉR FYRIR SÖLUYFIRLIT
ALMENNT UM EIGNIRNAR: Á lóðinni Álftröð 1 í Kópavogi er JÁVERK ehf að byggja fjölbýlishús með 180 glæsilegum og vel skipulögðum íbúðum sem verða Svansvottaðar. Íbúðirnar eru afhentar fullbúnar án gólfefna með vönduðum innréttingum frá Selós, steinn á borðum. Flísalögð baðherbergi og þvottahús með Limestone MGM, 60x60 cm flísum frá Ebson bæði gólf og veggir að hluta. Hefðbundið ofnakerfi og ofnar eru í íbúðinni og jafnvægisstillt loftræsikerfi með varmaendurvinnslu er í hverri íbúð. Hefðbundið útsogskerfi er í geymslum.
INNRÉTTINGAR: Eldhúsinnréttingar eru sérsmíðaðar frá Selós. Skápar eru úr vönduðu stitsterku melamin efni. Vönduð heimilistæki eru í íbúðum sem eru frá AEG. Kæli-/frystiskápur og uppþvottavél eru innbyggð í innréttinguna og spanhelluborð. Dekton – Rem steinborðplötur eru í öllum eldhúsum og Silestone – Nolita steinborðplötur eru á böðum. Gólfhiti er í gólfi baðherbergis auk handklæðaofns. Bílastæði í kjallara fylgja öllum íbúðum og möguleiki er á að kaupa viðbótarstæði.
GARÐUR: Sólríkur og skjólgóður inngarður með leiktækjum, gróðri og aðstöðu fyrir iðandi mannlíf. Glæsilegar íbúðir við Digranes með einstaklega góða staðsetningu fyrir barnafólk.
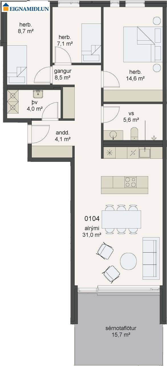
Nánar: Íbúð merkt 01-04 er með 3 svefnherbergjum, 1 stofu og 1 baðherbergi. Sérþvottahús er í íbúðinni. Geymsla í sameign fylgir. Íbúðinni fylgir stæði í bílakjallara merkt B-155.
Afhending íbúðanna: TIL AFHENDINGAR VIÐ KAUPSAMNING.
Nánar um íbúðirnar við Digranes: Bjartar og vel hannaðar íbúðir sem gert er ráð fyrir að verði afhentar fullbúnar án megingólfefna og með vönduðum innréttingum, vandaðar flísar eru á baðherbergjum og þvottahúsgólfi.
Fágun og gæði voru höfð að leiðarljósi við hönnun íbúðanna sem og að einnig var hugað að því að hver og ein íbúð hefur vélræn loftskipti sem tryggja aukin loftgæði.
Svansvottun: Mjög er vandað til allrar framkvæmdar. Allt byggingarefni og öll framkvæmd verkefnisins miðast við kröfur Svansins og stefnt er að því að fá allar íbúðir Svansvottaðar hjá Umhverfisstofnun við verklok. Sjá nánar um svansvottun hér: Svansvottun
SKIPULAGSGJALD: Kaupendur greiða skipulagsgjald 0,3% af endanlegu brunabótamati þegar það verður innheimt. ***
Ábyrg þjónusta í áratugi. Eignamiðlun var stofnuð 1957 og er elsta starfandi fasteignasala á Íslandi. Reynsla, heiðarleiki og þekking á fasteignamarkaðnum eru grunnur að farsælum viðskiptum.
Eignamiðlun Grensásvegi 11, 108 Reykjavík - Opið frá kl. 9-17 mánudaga til fimmtudaga og 9-16 á föstudögum.
Heimasíða Eignamiðlunar
Eignamiðlun á Facebook

Dýpri greining á Húsasjá
- Verðmat fasteignar
- Sölusaga og verðþróun
- Samanburður við sambærilegar eignir
























